上海浦东软件园三林园又有新动态!园区的载体规模与产业能级将进一步提升,即将新建总建筑面积超15万平方米的上海浦东软件园三林园17A-01A、17A-03A商办项目,该项目规划计方案正在公示中。
项目规划设计方案详情
■ 建设单位:
上海浦东软件园三林园发展有限公司
■ 项目名称:
上海浦东软件园三林园17A-01A、17A-03A
地块规划依据:关于同意《浦东新区三林外环外地区生态专项规划(含筠溪特色小镇专项规划)》的批复(沪府规[2016]146号)
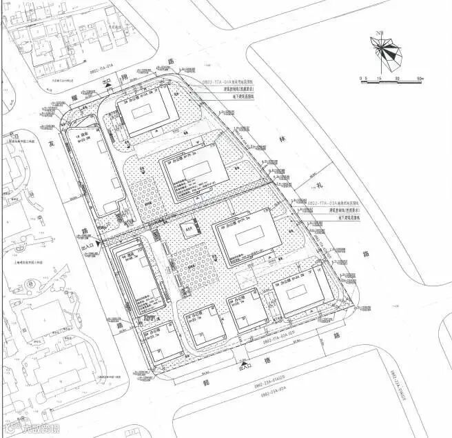
项目公示图
*点击图片查看高清大图
■ 项目位置:
项目基地位于上海市浦东新区三林懿德PDP0-0802单元08-17A-01A地块和08-17A-3A地块。
▷ 东至17A-02A地块
▷ 南至17A-02A地块
▷ 西至友源路
▷ 北至耀翔路
*混合用地建筑量:
C8大于等于百分之八十、C2小于等于百分之二十
建设内容
该地块拟建:
▷ 1幢商业楼
▷ 7幢4-17层办公楼
▷ 1幢酒店
▷ 1座地下机动车库(含人防)
*上海浦东软件园三林园一期
主要经济技术指标
0802-17A-01A用地面积:14781.67平方米
总建筑面积:约66932.69平方米
其中,地上建筑面积:约41185.1平方米
地下建筑面积:约25747.59平方米
建筑密度:35.0%
绿地率:30.0%
0802-17A-03A用地面积:19984.7平方米
总建筑面积:约90032.11平方米
其中,地上建筑面积:约55582.30平方米
地下建筑面积:约34449.81平方米
建筑密度:38.1%
绿地率:30.0%
公示详情
公示期限:截至1月27日
采取网上和现场同步公示的方式
现场公示地址:项目建设现场围墙
公示网址:http://planning.pudong.gov.cn
反馈意见的邮寄地址:浦东新区邹平路161号,邮编:200126,请在信函封面名称上注明“项目方案公示意见”。
*内容来源:浦东发布

