
4. 德国不同类型装配式建筑技术体系研究
工业化预制建造技术的优点:
工业化预制建造技术的优点是大量建造步骤可以在厂房里进行,不受天气影响,现场安装施工周期大幅缩短,非常适用于每年可以进行室外施工时间较短的严寒地区。另一方面优点是建筑构件部品在工厂加工制造,利用机械设备加工制造,工作效率高,精度和质量有保障。
工业化预制建造的缺点
成本高
在预制建筑出现的初期,工业化建筑产品成本低于传统古典建筑。而今天用预制混凝土大板形式建造的住宅和办公大楼的成本通常高于常规建造技术建造的建筑物。原因: 钢筋混凝土墙是比砌体墙更贵。预制梁、板结构上大都是简支梁而非连续梁,因而需要较多的用钢量。此外,预制件的连接点通常复杂,连接元素有些须采用昂贵不锈钢材料。如果使用了保温夹芯板构造,节点更加复杂,大板缝隙的密封处理也会导致额外的费用。大体量的预制板的运输导致更高的运输成本。
缺少个性化
工业化预制建造技术的缺点是任何一个建设项目,包括建筑设备、管道、电气安装、预埋件都必须事先设计完成,并在工厂里安装在混凝土大板里,只适合大量重复建造的标准单元。而标准化的组件导致个性化设计降低。
德国现代建筑工业化建造技术
主要可分为三大体系
预制混凝土建造体系
预制钢结构建造体系
预制木结构建造体系
4.1.1 预制混凝土大板体系
虽然上世纪中叶以后德国有大量混凝土预制大板建造的居住区项目,但这类项目今天看来大部分不太受欢迎,如今预制混凝土大板建造技术在德国已遭抛弃,从1990年代以后基本没有新建项目应用。
取而代之的是追求个性化的设计,应用现代化的环保、美观、实用、耐久的综合技术解决方案,满足使用者的需求。通过精细化的设计,模数化设计,使大量建筑部品可以在工厂里加工制作,并且不断优化技术体系,如可循环使用的模板技术,叠和楼板(免拆模板)技术、预制楼梯、多种复合预制外墙板。因地制宜,不追求高装配率。
4.1.2 预制混凝土叠合板体系
德国大量的建筑是多层建筑。现浇混凝土支模、拆模,表面处理等工作需要人工量大,费用高,而混凝土预制叠合楼板、叠合墙体作为楼板、墙体的模板使用,结构整体性好,混凝土表面平整度高,节省抹灰、打磨工序,相比预制混凝土实体楼板叠合楼板重量轻,节约运输和安装成本,因而有一定市场。有资料显示混凝土叠合预制板体系在德国建筑中占比达到50%以上。 采用这种装配结构体系,外立面形式比较灵活。由于德国强制要求的新保温节能规范的实施,建筑保温层厚度在20cm以上。从节约成本角度考虑,采用复合外墙外保温系统配合涂料面层的建筑居多。



图19--21采用预制混凝土叠合楼板、墙体体系建造住宅项目




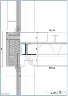
图22-25:由德国国家建筑技术研究院审核批准的一种混凝土叠合板建造体系的节点构造图。
4.1.3 预制混凝土外墙体系
2012年在柏林落成的Tour Total大厦,代表德国预制混凝土装配式建筑的一个发展方向。
建筑面积约28000平米,高度68米。外墙面积约10000平米,由1395个、200多个不同种类、三维方向变化的混凝土预制构件装配而成。每个构件高度7.35米,构件误差小于3mm,安装缝误差小于1.5mm。构件由白色混凝土加入石材粉末颗粒浇铸而成, 精确、细致地构件、三维方向微妙变化富有雕塑感的预制件,使建筑显得光影丰富、精致耐看。








图26-33柏林Tour Total大厦,预制混凝土装配式建筑
4.2 预制刚结构建造体系
4.2.1预制高层钢结构建造体系
高层、超高层钢结构建筑在德国建造量有限,大规模批量生产的技术体系几乎没有应用市场。同时高层建筑多为商业或企业总部类建筑,业主对个性化和审美要求高,不接受同质化、批量化、缺少个性的装配式建筑。另一方面,近年来高层、超高层钢结构建筑的承重钢结构、以及为每个项目专门设计的复杂精致的幕墙体系,都是采用工业化生产、到现场安装的建造形式。因此可以归纳到个性定制化装配式建筑。
法兰克福德国商业银行总部大楼是德国为数不多的高层钢结构建筑。钢制构件和金属玻璃幕墙采用工业化加工、现场安装方式建造。




图34-37法兰克福商业银行塔楼
获得德国2012年钢结构建筑奖的帝森克虏伯总部大楼,代表德国近年来钢结构建筑的一个发展方向。由于混凝土结构优异的防火、隔声、耐久、经济实用等性能,以及现代建筑技术能够成熟地利用混凝土结构优异的蓄热性能,来满足愈来愈高的建筑节能和室内舒适度要求,使混凝土或钢混结构成为德国高层建筑最主要的结构形式。建筑核心筒和楼板通常采用现浇混凝土形式、梁和柱采用钢材、钢混或混凝土形式,以满足承载、防火、隔声、热惰性等综合技术要求;建筑外墙、隔墙地面、天花等部品则大量采用预制装配系统。





图38-42帝森克虏伯总部大楼,钢混和钢结构建筑,楼板为现浇钢筋混凝土,以满足防火、隔声、热惰性等综合技术要求,外墙、隔墙、楼面、天花等采用预制装配系统。
2014年落成的欧洲央行总部大楼,一定程度上代表了德国高层办公建筑发展的特点。项目位于法兰克福,建筑高度185米。采用双塔形式,两栋塔楼之间形成一个巨大的室内中庭,中间用钢结构设置多层连接平台,布置绿化和交往空间。建筑结构为现浇钢筋混凝土,以满足承载、防火、隔声、热惰性等综合技术要求;高性能的全玻璃幕墙、隔墙、楼面、天花等采用预制装配系统。




图43-46 法兰克福欧洲央行总部大楼,建筑结构为现浇钢筋混凝土,以满足承载、防火、隔声、热惰性等综合技术要求;高性能的全玻璃幕墙、隔墙、楼面、天花等采用预制装配系统。
4.2.2预制多层钢结构建造体系
汉诺威VGH保险大楼采用一种模块化、多层钢结构装配式体系建造。由承重结构、外墙、内部结构和建筑设备组成。基本构件:楼板5.00x2.50m,厚度20cm(可加长到10.00),墙板3.00x1.25m,厚度15cm。楼板和墙板由U型钢框架和梯形钢板构成,表面防火板。楼面地面可采用架空双层地面构造。楼板和承重墙板之间采用螺栓固定,并用柔性材料隔绝固体传声。墙板之间可作为窗、门、百叶等。非承重隔墙采用轻钢龙骨石膏板墙体。








图47-55汉诺威VGH保险大楼,采用一种模块化、多层钢结构装配式体系建造
有特殊要求的多层建筑项目亦有采用预制装配形式建造。法兰克福SQUAIRE商业综合体,内部功能包括商业零售、餐饮、酒店、办公等。建筑位于法兰克福机场高铁站上方,因为需要横跨铁路线,因而建筑整体坐落在钢绗架之上,为减轻重量,建筑结构进行了多方面优化设计。钢结构和幕墙体系采用工业化生产现场安装形式建造。




图56-59德国法兰克福机场高铁站SQUAIRE商业综合体



