一.建筑设计总说明解读
有自己统一的建筑构造做法。
二.总平面解读
■ 一般场地设计标高应比周边道路标高高0.2M以上
■ 应优先考虑将垃圾站置于地下室或半地下室,当设在地面时,应利用绿化等措施对其进行遮挡,尽量减少对住户的干扰。

■ 柴油发电机的排烟处理,应按当地政府部门规定执行。低空排放时应避免排烟口高温气体伤人及对邻近住户的影响。高空排放时排烟道的高温及油渍不应对相邻住户产生影响(图)。


三. 设计统一技术要求解读
1.门窗
■ 凸窗窗台高一般取400,凸窗台板外缘凸出外墙面600。落地窗根部应做结构上反150高反槛(图)。
■ 二层以上外窗(外有阳台及平台者除外)以及一层室内外高差大于600的外窗,当窗台高度小于900时,应采取防护措施(图)。
■ 门洞不高于2400时,一律不用做上亮子。平开窗开启扇宽度≤650,高度≤1500。
■ 玻璃幕墙一般由专业公司进行二次设计,设计院对其图纸进行审核确认。但设计院应对玻璃幕墙的轮廓尺寸、分格及开启、玻璃与梃料的类型及颜色、装饰构件以及其它要求进行设计控制 。


通则:能上人(爬上去)站立的宽窗台,防护高度从台面算(无可踏说)
通则关于临空栏杆可踏面:宽大于等于220,且高小于等于450为可踏面
深圳市质监站:高度为450以上凸窗台是防护设施的组成部分(无意义)
看450高凸窗台如何设置防护栏杆? 结论还是按此贴窗设置防护栏杆为 好。

2.楼面
■ 应在说明及阳台详图中注明:门口处阳台完成面距室内楼地面高差为 30~50,顶层露台门口处完成面距室内楼地面高差为80~100,入户花园门口处完成面距室内楼地面高差为20~30。(不光控制结构降板)
3.墙身
■ 砖砌外墙上设有非空调位挑板时(如雨篷、遮阳板及装饰构件等),挑板根部应做250高砼防水反槛(图) 。

■ 砖墙一边为室内一边为屋面时,应做250高钢筋砼反槛,宽同墙(图)。

■ 砖墙窗台应做钢筋砼窗下口梁 ,玻璃幕墙落在屋面或砖墙上时,应做钢筋混凝土底座(图)。(这一点,常被忽略)
4.厨房
■ 住宅须设成品烟道,当别墅建筑竖直烟道对上层有影响时,不设烟道 的厨房,应在厨房外墙上预留φ150孔洞并安装薄壁镀锌钢套管,留洞 处为钢筋砼梁或墙时,应直埋φ150钢套管,留洞或套管高度应考虑排烟管在厨房吊顶范围内。
5.卫生间
■ 普通住宅卫生间应做大降板,最底层住宅下方为架空层等公共开放空间时,可不做大降板。
■ TH别墅类住宅卫生间一般宜做大降板。当卫生间下层为厅房或非本户空时,应依具体情况,与甲方协商。采用大降板、条型大降板以及欧洲墙 排等方式进行处理。
■ 有上下水的洁具及立管应考虑噪音对卧室的影响(如马桶),尽量避 开卧室墙面布置。
■ 卫生间应做排气扇,排气扇宜为吸顶式,梁上(在吊顶范围内)预埋 φ120钢套管。当住宅层高小于3000且卫生间为大降板时,吊顶内高度不足,可在吊顶下墙上安装排风扇,墙上预留φ150孔洞并安装薄壁镀锌钢套管,留洞处为钢筋砼梁或墙时,应直埋φ150钢套管(图)。
6.屋面
■ 当独立小屋面仅设有一处雨水口时,在雨水口旁边应设150×150的泄水孔(图)。


7.阳台露台
■ 如露台不降板,应在门口处做反槛,反槛高度应尽量小,最大宜为结构 至结构250~300,即门槛比门口处的室外完成面高80~100,比室内楼面高200~250,当不能满足时,应调整排水方案(图)。
■ 阳台栏杆栏板扶手顶面到阳台结构板上皮的高度,高层及中高层 ≥1200,多层及低层≥1150(遇有较大型阳露台,或地漏位于阳台门一侧需要反向找坡时,若有栏杆处面层总厚度超过80mm,应按超出数值 相应加高栏杆栏板高度);当阳台反沿为可踏面时,阳台栏杆栏板扶手顶面到阳台反沿结构板上皮的高度,高层及中高层≥1150,多层及低层 ≥1100(图)。
■ 有保温层的露台栏杆栏板,应严格复核找坡层及面层的厚度,保证栏杆栏板净高:高层及中高层≥1150,多层及低层≥1100。




8.公共空间
■ 楼梯间及前室防火门宽度统一为1100(个别情况受限制时,可为1050宽),当楼梯间门在一层作为住宅的公共出入口时,门洞宽应为1200 。
■ 水电井楼板的处理:一般水井及小于1㎡的电井楼板,采取整块楼板留空后浇的办法处理。大于1㎡的电井,一般由设备专业提供楼板留洞位置及 大小,建筑及结构图纸进行留洞表达。
9.外立面
■ 建筑外立面的表达不应有遗漏,例如凹槽,骑楼内部外墙面等部位。
10.室外
■ 散水设置:当硬化地面接建筑外墙时,硬化地面兼做散水;当绿化地面接建筑外墙时,应做暗散水,即散水面下沉300,上置绿化土(图)。

11.建筑设备

■ 燃气热水器应优先考虑设在与厨房相邻的生活阳台上,若无生活阳台 时,可放置在厨房内。
■ 洗衣机应优先考虑设在生活阳台上,无生活阳台时,可放置在公共卫生间内。
■ 电梯不做两方向扩大机房,只在进深方向扩大到4.2米左右即可,也可做小机房电梯。
■ 空调室内机不应直接吹向床头(图)。

■ 空调室外机位应考虑便于安装及维修的可能性,靠近窗洞口设置,尽量避免设在山墙面且旁边未设窗的情况。
■ 空调冷媒冷凝管穿外墙时,外墙预埋φ60PVC套管(穿梁及砼墙时,改为φ60钢套管)。当室内机为壁挂机时,套管中心设在梁下50处。若需 穿梁设置时,套管中心距楼层板底面不应小于350。当室内机为柜机时,套管中心距楼地面建筑完成面200,均向外倾斜5度。需详细标明套管平面及高度位置(图)。


■ 空调预留洞应靠近室内机位,室内外不允许暴露较长段空调管。
12.设备用房

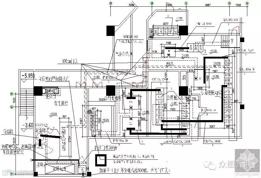
四.地下车库解读
■ 地下车库净高:深圳≥2.3米,其它≥2.2米。如有客货车及垃圾车等特殊车辆进入时,地下车库净高按相应规范执行。地下车库层高=净高+设备管线占用高度+梁高。(设备管线占用高度,当有风管、电桥架及喷淋 时,考 虑找坡及安装误差后,总高度一般最高取600)
■ 地下一层有开口露天段的汽车坡道,靠地面端应设截水沟及100MM高反坡,另一端应设排水沟。截水沟及排水沟所用金属蓖子必须能承受汽车 荷载(图)。





五 人防解读
■ 人防地下室应全埋。注意:当与人防地下室相连的非人防区地下室露出地面时,则认为人防地下室不满足全埋要求 (图)。

■ 防毒通道内应留出放置担架的空间(图)。

■ 平时通风管道不允许穿人防地下室的密闭及防护密闭墙(图)。


六 商业解读
■ 住宅底层商业考虑设餐饮时:商业不能与上方住宅相邻,住宅与商业之间 应设夹层;商业应预留集中排烟道,并采取高空排放,排烟道的高温与油渍不能对相邻住宅产生影响(图)。

■ 一层商业考虑做室内夹层时,夹层高度内应有通风采光窗。(经常被忽略)

第三章 结构
一. 结构降板和外围建筑梁高
■厅、房、室内过道等结构面比装修面低50。
公共楼梯间、电梯厅结构面与厅房结构面平。
厨房不带生活阳台时,结构至结构降板80。
厨房带生活阳台时,厨房不降板。
卫生间小降板为:结构至结构降板80。
卫生间大降板为:结构至结构降板300。
与厅房相连的阳台结构至结构降板80。
■结构外围梁的高度详见下表。
层高 梁高
2800 500
2900 500
3000 600
二、非受力构件
■空调板,凸窗侧板,挑板,采用钢筋混凝土结构,并与主体结构相连。
三、屋面板
■采用结构找坡,板底保持水平。
第四章 给排水
一.设计说明
n 实现给排水表达重点内容表格化。
n 为报建填表提供更准确信息。
二.室内给水技术要求
给水各分区最不利楼层所需供水压力按0.15MPa计算;供水压力大于0.35MPa的楼层,应设减压装置减压后供水。
高层住宅每隔两层设置清洁用给水点

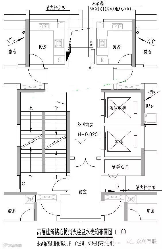
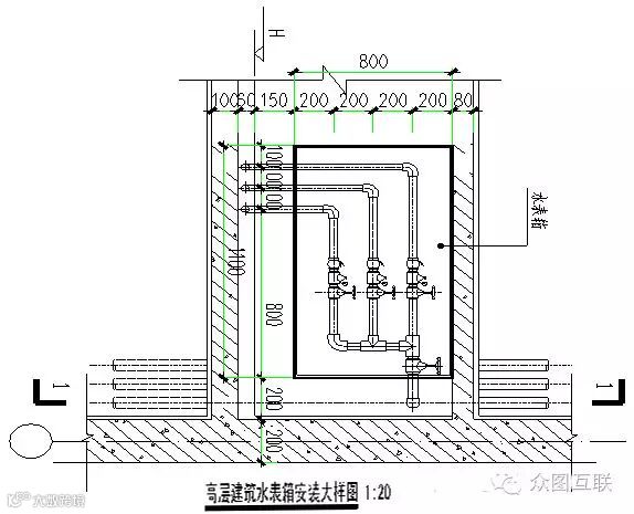
n TH、多层住宅水表应在底层合适的位置集中设置;高层住宅每层的分户水表应在每层的水管井中集中设置,如无法设置管井,则应设置水表箱,水表箱应暗装。



建筑面积大于200平方米的住宅,热水系统设计热水回水管道(热水器采用贮热式)。
私家屋面、私家花园、露台、庭院、入户花园应设给水龙头等处,应设置给水点。
商业(商铺、会所等)、学校、幼儿园用水与住宅用水分开计量。
《深圳市节能条例》规定,11层及11层以下住宅,应设计太阳能热水系统。其他地区根据地方要求执行。
二. 室内排水技术要求
公共功能的管道(包括消防、给水、雨水等立管)不得布置在业主私家的区域内;管道不得挡窗、挡门或与热水器排气口等冲突;排水立管、排水地漏应定位。(备注:如条件限制,雨水立管可设置在私家花园、阳台、露台等处)

当住宅外立面要求较高时,应将立管敷设在隐蔽位置或管井中。
严禁排水管道直接外露在卧室、客厅、餐厅、走道、玄关等处。
卫生间应设置排气扇,在外墙预留φ150洞口,排气扇附近应预留排气扇插座。
排水设施(洗手盆、大便器、浴盆排水口、淋浴地漏、地漏)应定位,以免相 同户型卫生间卫生设备布置不同。
生活阳台与厨房连通时,厨房不设地漏,此时排水横管在厨房地面上敷设;
生活阳台与厨房不连通时,厨房设地漏,此时排水横管在下层厨房内敷设;
热水器预留φ100洞口,洞口不得与排水管、给水管、燃气管打架。
洗衣机放置在生活阳台时,洗衣机位应不小于650mm宽预留位置,洗衣机不得影响开门、开窗,洗衣机地漏不得放置在洗衣机下。
燃气表、热水器放置在阳台时,不得放在淋雨处;燃气表、热水器的位置一同考虑,避免位置冲突。
排水管遇转换梁,应设置400厚面层供管道转换,转换层的厨房、卫生间排水,应单独排到下层,距离转换横管大于0。6米后,接入排水管。(不得在转换层内接入转换横管

带结构底板的庭院内花池、阳台花池沉箱必须考虑排水,可采用地漏或排水多孔管形式,排水口须紧贴结构板面层,外包土工布。
本户上层的屋面雨落管或阳台、露台、空调等排水管,不得散排到本户阳台、露台,应采用管道排至下层。

车库应设计洒水栓及排水沟;车库等地下室顶板如有覆土,除在覆土面上应设计地面排水之外,也应设计覆土内渗水的排水。

地下室底板下敷设的管道(重力排水),管径宜放大一号,以减少堵塞的可能;排水管布置应避开承台及地梁。

三 室外给排水技术要求
小区内排水管道,污水管道宜按标准坡度进行设计,雨水管宜按最小坡度进行设计,但应复核管道排水能力。除强弱电管线外其他管道避免在绿化带内敷设。
室外强电、弱电井应设置排水措施。当电井井底标高高于雨水井底标高且满足管顶平接条件时,电井向雨水井重力排水;当电井井底标高低于雨水井底标高时,在小区内井底标高最低的强电、弱电井内设置集水坑,当电井内积水时,用水泵提升,潜水泵为移动式。
设计师在进行室外给排水管网设计时应考虑煤气管等其它管线综合布置的可能性。
四 消防设计细则



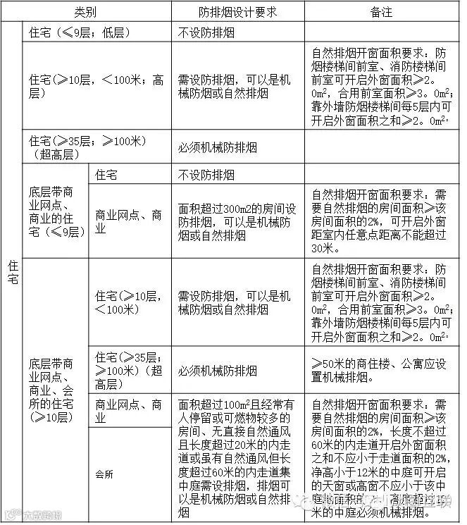
防排烟设计原则

第五章 电气
电气与建筑设计有“亲密关系”的四个方面—— “房、井、面、点”
一、房
电气的设备房间——变配电房、柴油发电机房、消防及监控控制机房、电信、网络及有线电视机房
配电房选址时,除按规范规定应考虑的各种因素外,还应考虑:当项目用地有明确的“居住”及“公共”等不同性质的用地时,在项目设计中应避免将居住建筑的设备用房,布置在“非居住用地上”。
变配电房位置应避免设置在住宅的正上、下方,否则应作屏蔽处理及防低频噪声措施。
设置在负荷中心。


u客户投诉变配电房的低频噪声
(二)柴油发电机房
设置在负荷中心
与变配电所相邻
设置气体灭火间

本图示为深圳市变配电所和发电机房电气布置的典型示例,它有以下特点:
公用用电与专用用电分设变压器供电。
公变高压房及变压器室设置里独立的房间,满足了深圳市供电局关于业扩管理制度的要求。
变配电房设置了400mm门坎,以防水及防鼠之用。公用配电高供低计,专用配电高供高计。
发电机房合理设置了通风、给排水设施。
变配电房、发电机房及设备布置合理、优化、经济。
(三)消防及监控控制室
指导书中未作具体要求,按规范要求执行:
建议设置于一层(架空层)。
设置于地下室应有直通室外的通道。
建筑面积50平方米左右。
(四)电信、网络、有线电视机房
指导书中未作具体要求,按规范要求执行:
设置于一层(无地下室)。
设置于地下室。
面积各10~15平方米左右。
二、井
(一)柴油发电机组废气排放井
指导书中未作具体规定,按规范及地方环保部门要求执行:
低空排放,设置竖井;
高空排放,核心筒部位设置竖井;
面积与发电机组的容量关联。
(二)配电竖井
指导书中未作具体规定,按规范要求执行:
多层不设置配电竖井;
高层设置竖井。建议强、弱电竖井分别设置,面积各1平方米左右;若条件受限制强、弱电竖井可合并,面积2平方米左右

三、面
安装面—— 户内配电箱、弱电箱、安防箱安装面
户内配电箱(弱电箱、安防箱)安装于入户门后或其它较隐蔽的次要部位

四、点
安装点—— 开关、插座、灯具安装位置
指导书中未作具体规定,按规范要求执行


推荐阅读

小编QQ客服一 3472255462
客服二 3371542049
来源于:筑龙设计论坛,如有侵权,请联系小编删除

