大数跨境
0
0

神马?这是一个14平米的房间??

神马?这是一个14平米的房间?? 众图科技
2016-12-01
0
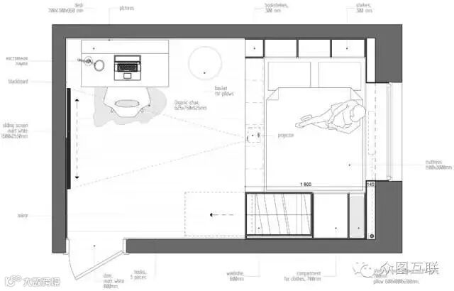
导读:这是一个14平米大的房间



这个14平米大的房间,是一位居住在莫斯科的14岁女孩卧室。INT2 architecture工作室的设计师希望为这个小女孩创造出舒适和时尚的环境。


最初这个小女孩的卧室有许多独立的物件,比如装满衣服的衣柜,书柜,单人床还有书桌。这些独立的物件让房间没有整体感。


为此,设计师将房间中一半的面积打造出一个包含床,书柜,衣柜的整体大家具。卧室的另外一半面积,面对床的墙上一半是镜子,一半是黑板,还有一个白色滑动面板——当其被移动到中间的时候,可以充当投影仪的屏幕。






















文章来源于网络,侵权







【声明】内容源于网络
0
0
众图科技
AI精益投资优化技术服务提供商!众图科技由湾区资深建造群体和硅谷智慧科技优秀专家联合创建,专注于人工智能在建筑行业应用。
内容 1457
粉丝 0
众图科技 AI精益投资优化技术服务提供商!众图科技由湾区资深建造群体和硅谷智慧科技优秀专家联合创建,专注于人工智能在建筑行业应用。
总阅读1.3k
粉丝0
内容1.5k