
她叫王嫣芸,
出生在湖北的90后姑娘。

从小,
命运对于她来说好像就没有公平过,
在她三岁的时候,父母离异,
留下她一个人由爷爷奶奶抚养,
家庭变故让她养成了倔强的性格。

高中为了考取中国人民大学,
常常通宵补习功课,每天只睡三个小时,
大学更是凭自己的能力赚到了四年的学费。

▲嫣芸参加《奇葩说》节目
今天年初,在《奇葩说》第三季上,
这个并不幸运的姑娘出现在大家的荧幕上,
在节目中勇敢的剖析自己,告诫大家,
虽然受到过一些人的质疑,
但更多的人被她的勇敢打动。

而与此同时,
她也遇到了人生的另外一个转折,
曾经和先生商量不打算要孩子的她,
与先生有了小宝宝,两人决定抚养下去。

但很快,他们发现事情不是那么简单,
随着孩子的出生,
许多问题需要他们重新考虑。

比如房子,
他们翻出了自己的积蓄,30万,
只够在北京五环外买一个厕所。

不过这还不是让嫣芸最烦恼的,
毕竟两个人都有能力,钱可以赚,
最让她忧心的还是雾霾。

从15年开始,北京雾霾连续爆表,
她和先生养成了带口罩的习惯,
在产房检查完后,她摸着肚子想道,
难道让孩子一出生就带着口罩吗?

她蓦然发觉,
她现在的选择决定着
未来孩子会和她过什么样的生活。

思虑许久,
她和丈夫来到了昆明,
享受了几天没有雾霾的蓝天白云后,
两人竟然在一片艺术区内,
看中了一间废旧的澡堂。

屋子是70年代废弃在路边一间澡堂,
几十年没人打理,四周堆满了垃圾,
朋友都说这房子太破了,但胜在租金便宜,
于是两人乐呵呵地把这个破澡堂租了下来。

在北京逼仄的空间里呆久了,
俩人看着整整300多㎡的空间,
开始规划自己未来的生活,
“要有超大的客厅!大家一块来开趴!”
“要有艺术家展览,请喜欢的朋友来玩。”
要有阳光,有一个大大的书架。

需求一个个冒出来,
但手头上只有30万,
朋友们都觉得不可能实现,
劝他们收收心。

▲老邹和嫣芸和设计师沟通房子的改造

但是,随着一次次和设计师沟通,
不断地计较细节,更改方案,
设计师重新规划了每一个区域,
竟然实现了他们的每一个想法。

而在拿到设计图的那天,
老邹就开始了劳工模式。

为了让嫣芸好好养胎,
原本拿画笔的手开始做木工,拿电钻。

遇上了工人不干活,偷懒,
还要一个个劝说。

但不管怎么样,28天后,
这间又破又烂的澡堂竟然真的
成为了他们理想中的艺术空间。

▲废弃澡堂变身艺术中心
每一个进到他们家的客人,
都会发出“wow”的一声惊叹。

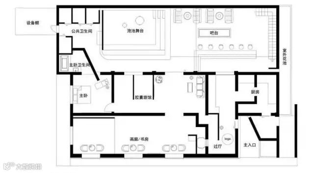
推门走进入,入眼是一片空旷,
原本封闭阴暗的大堂,
打通了墙壁,布置画桌,书架,
立马变成了工作,阅读,绘画的好地方。

再向前走走,空间变得通透,
设计师打破了原本割裂空间的墙壁,
联通了所有主体区域。

以前的公共洗澡区
变成了温馨的卧室,
清水泥加棉麻的配搭,
显得简单耐看。

卧室旁边留出一片空间,
做成了胶囊旅馆。

实现了嫣芸做艺术展览的愿望,
定期她和老邹会请喜欢的艺术家来住,
像老朋友一样聊天开趴。

既然要开party,
那吧台肯定是不能少,
留下了原本澡堂的一面墙,
加上原木的桌面和座椅,
别具一番风格。

澡堂泡澡的大池子也没动,
两人一合计总应该留点历史记忆吧,
于是把头顶的天花板打开,
放水时,就变成了游泳池。

不放水的时候就变身家庭影院,
抬头看,就是没有雾霾的蓝天白云,
闪烁的星星和银河。

而楼顶这么大面积的平台
两人也没浪费,
改成了一片屋顶花园,
屋子里待久了可以上来换换心情。

当然,即将出生的小宝宝也要考虑到,
专门的儿童游乐场自然是少不了,
300㎡的天地可以尽情地释放天性。

他们刚来昆明的时候,
经常有朋友问为什么要离开北京,
房子装好后,嫣芸就带他们来自己家,笑道,
30万在北京连一个卫生间都买不来,
来这能建一座理想国,多划算。

再过几个月,孩子马上就出生了,
嫣芸和老邹说,
或许这片天地没有北京那么便利,
却可以让“小意外”有一个可以拥抱蓝天白云的童年!

END
【 近 期 热 点 】
我很难过,也替你们难过。因为从今天起我们又丢了一个“国宝”。
罗罗带你看建筑——装bility式的岭南园林风万众期待丨创新·共享·互联设计发展峰会完整视频正式上线


