
项目基地位于巴塞罗那Santa Margarida de Montbui市郊,其地势平缓,绵延7000平米。建筑师的任务是将基地上一座已经损毁的农业用房改造成一座独栋家庭住宅。根据当地法规,尽管原建筑仅是一座小屋,但其性质为农舍,建筑师不得在建筑容积和立面开窗上做任何改变。

主入口前的下沉庭院,作为过渡区域连接室内外空间

泳池和下沉庭院,几何形态清晰多变

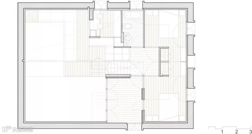
住宅的功能空间为一个个平台,围绕中央的承重核心交错布置。该核心如同一根巨大的柱子,其中包含了楼梯及各种设施,不同生活空间交汇于此。由于承重柱位于空间中央,缩短了跨度,因此建筑师可以采用更加轻薄的钢板,强调了沉重的支撑物和轻盈的被支撑物之间的对比,使空间更为丰富。

入口,厨房在入口边


台阶上的客厅,与露台相连

阶连接标高不同的功能空间,承重墙面为粗糙材质
材料的使用进一步加强了对比对照的设计想法,主要的承重元素均由粗糙厚重的材料组成,次级元素和室内隔断则采用轻质结构建造,更为轻盈光滑。建筑以土黄色为主色调,与环境相协调。


室内以土黄色为主色调,主承重结构材质粗犷,与墙地面和楼板形成鲜明对比

卫生间,主承重构件粗糙的材料与其他光滑材料形成鲜明对比,镜面使空间更显宽敞
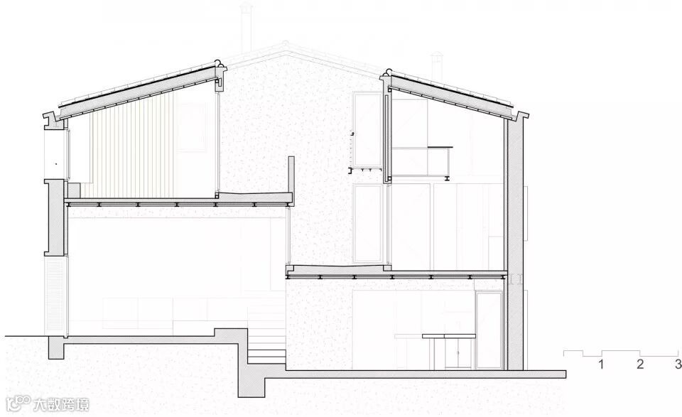
建筑师充分利用房屋的高度,设计了一系列高度不同的连续夹层,从底层的公共空间一直延伸到上层卧室,最终以一座伸向室外的阳台收尾,将麦田景观尽收眼底。

二层露台及上方伸向室外的阳台,眺望麦田景观
图纸
▼总平面图

▼二层平面图

▼三层平面图

▼剖面图

项目信息
项目名称:西班牙农舍改造项目
设计人:arquitectura-g (jonathan arnabat, jordi ayala-bril, aitor fuentes, igor urdampilleta)
位置:西班牙,巴塞罗那
改造面积:200平方米
设计时间:2015
完工时间:2016

