我经常对居住环境进行一种幻想,把自己置身于森林里,天空为楼板,树木为墙体,草木为地板,让日常起居行为游历在自然环境里。回到具体的项目上。该项目位于某一城市里城中村自建房的屋顶,处于村里的边缘位置,正得益于此,房子有两面临近自然景观。南面靠山,东面差点远眺珠江,西面俯瞰城中村的一角,算是城中村里难得的一块佳地。

项目在村里的区位图,处于城中村边缘
南面的小山丘为这里的一年四季提供常绿植物和小动物,鸟鸣声,蝉鸣声,蛙叫声,蛐蛐声,农户饲养的鸡鸣声,狗叫声等不断的在一天之内交替出现,这些事与物提供了与乡下相同的居住情景,这样的情景让我感觉熟悉与自然。除了情绪之外,更重要的是在与自然亲密接触的过程中能够更加强烈的感受到从早到晚时间上的变化,这些声音或者是光线总会准时出现在一天里的不同阶段。时间在充满秩序性的那一面,在与自然的交流中尤为明显的被感受到,我想24节气正是对这种秩序性的表达,不过我们经常是自觉与不自觉的在违背这样的规律,这正是在城市里工作体验最深刻的一种感受,这种体验让人压抑,甚至害怕,却又无奈。

从屋顶向西眺望

从屋顶看南面(腊肉是房东晒的)

从屋顶向东眺望
而项目在城中村里,也是一件非常迷人的行为,迷人在于这里的看似混乱,没有章法。我想它是一个很好的被观察的对象,因为外来力量的介入,使得这些城中村在短时间里发生的较大的变化,把很多需要通过漫长时间演变的现象被微缩在几个年头里,在短暂期间可以看到原有状态在外力下的破坏,再同外来人口一起逐渐形成新的状态。在还没形成稳定秩序的情况下,大家都在这里面用尽力量生活,希望做出点什么,生命也就这样彰显着它的张力。变化是这里的常态,体现在商业街里店铺的轮流更替,即便如此,也有一些小商家在这样环境里稳定下来,如同村里转弯角的一家面馆,一对夫妻在这开了第六个年头了,看到这对夫妻日复一日不间断的重复劳作一件事情,从早到晚,这种重复性,持续性的状态是美丽动人的,如同自然界里某一个自然规律一样。也正是带着这样的情绪和态度开始了这个设计的。这是个四层的砖混自建房,楼顶房东以前盖了一个隔热的钢构顶棚,红色树脂瓦面层,设计的条件图就是样的。

建筑外观,它拥有一条半户外的楼梯,这在村里是少见的

屋顶现状,向西而望

屋顶现状,为轻型钢构棚架

建筑现状模拟轴测图
在方案开始之初,我们就希望把几个生活功能块独立置身在屋顶上,尽量让日常生活里穿梭在几个功能块之间的行为像是发生在户外,而不仅仅局限在一个封闭的空间里。这应该就是对开头一种纯粹居住环境的想像的模仿吧。我们把日常行为分成起居,卫浴,厨房这三个功能块,每一个功能块一个独立盒子,盒子为木结构和阳光板作为围护结构。每个盒子都尽可能大的开放,起居室可以完全把围护结构打开,卫浴和厨房可以打开一半,争取让空间拥有足够的自由度。

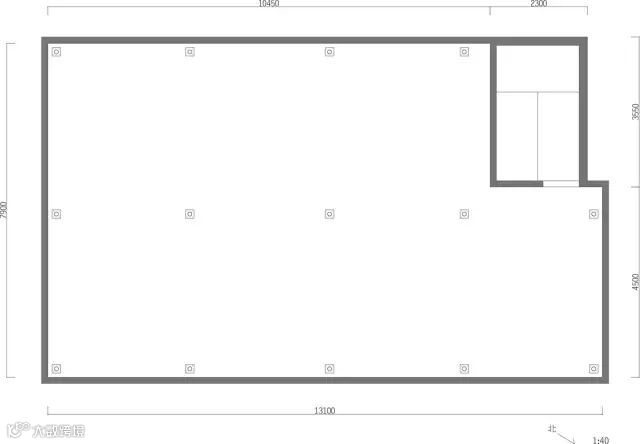
屋顶现状平面图

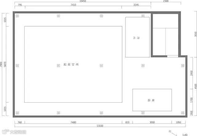
平面规划图

体块推敲图
而在主要材料上选择杉木头和阳光板。杉木是亲切与芳香的。而阳光板则是在于其透明性,如果把阳光板和窗帘结合起来使用无遗是美好的搭配,阳光板挡住了风留下了光,窗帘挡下了光留下了风,可以在视觉和体感上做到自由调配。最重要的是这两种材料价格亲民,易于加工。

中空阳光板
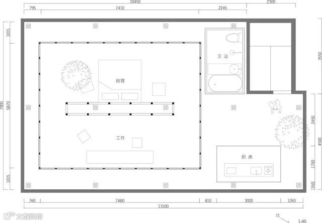
在空间布局上,我们把最佳的一块位置留给了起居功能,也是项目里着重刻画的一个重点,面积45平米左右,承担卧室与工作的功能,兼备些许收纳功能。我们希望起居室的外墙完全打开的状态时不应该出现柱子或者其他的东西,在天气好的情况可以无阻碍的沐浴在风和阳光里。所以结构的设计上采用中间核心筒,两边悬挑的飞翼形态。核心筒承担结构作用外同时承担收纳功能和分隔空间的功能,把起居室分为就寝空间和工作空间。卫生间里最浪漫的设计就是在于可以一边上厕所一边仰望星空。天气好的时候拉开窗帘,在半开放的卫生间里活动,如同行动在大自然里。厨房与起居室的两棵树是对置身大自然的假象的一种营造,想象着晚上睡觉前可以伸手去触摸树叶,清晨睁开眼的时候可以看到落叶就在你床上。

平面详细布置图

总体方案轴测图(起居空间关闭状态)

总体方案轴测图(起居空间打开状态)


从卧室看向卫生间

卫生间开启与闭合状态
起居空间的着重点在于结构上,我们把12根100mm x 100mm的杉木柱子做为核心承重柱子,结合横梁形成木框架核心筒,木框架再通过底部钢基础与房子楼板产生链接,再把悬挑的三角桁架往木框架上一品一品的组装。

结构模型

结构分解图

1:10的主体结构模型(1)

1:10的主体结构模型(2)

1:10的主体结构模型(3)
来自南京工业大学现代木结构研究中心孙小鸾担任本次木结构的咨询顾问,来自中铁咨询的黄忻言同事负责本次结构的具体计算。

木结构计算
起居空间的围护结构上采用木龙骨骨架,阳光板做面层,每一门扇都可旋转并在房子四周自由推拉,实现最大的开放层度。

起居空间的盒子四周门扇自由旋转和推拉
整个房子的收纳功能也集中在起居室这里,核心筒空腔做为使用频率较高的生活用品的收纳空间,例如衣物与书籍等等,同时使用软性卷帘对该空间进行启闭控制,随时保持空间的简洁。另外200mm高的钢基础地板的空腔也做为收纳空间,根据每一方格在地板所处位置来决定放置不同使用频率的物品。

收纳功能(1)

GIF
收纳功能(2)

GIF
收纳功能(3)
建筑总体轴测图

轴测图(1)

轴测图(2)

轴测图(3)
建筑立面状态

东立面(闭合状态)

东立面(开启状态)

西立面(闭合状态)

西立面(开启状态)

南立面(开启状态)
室内透视图

卧室角度

工作空间角度

工作空间向外看

就寝空间向外看
当设计方案被实施出来之后才叫建筑。
这是一次个人的建造行为,在接下来的这个月及下个月里,我们也努力推进落实这个事情,我们需要2-3个人帮忙一起盖房子。如果你对用双手建造房子感兴趣,并想参与到这个项目的建造过程的话可以豆油我,或者留言。我们希望最好是男生,因为这是一件体力活;最好是在广州大学城里;最好是学建筑的学生。
时间上:3月23号可以开始参与进来,预计4月份低完成,每天具体参与时间可详细再商酌。
具体工作内容为:1.搬运木材。2.简单二次加工,裁剪与木材钻孔。3.主体结构拼装。4.后期精细模型的制作与表达。
联系方式:
豆瓣:55699486
qq:82171744
邮箱:licong.lin@foxmail.com
来源 | 青年建筑

