所谓的混凝土,是一种建筑的原材料,它的价值在建筑行业里是最大的。因为只有它才是建筑的核心材料。
混凝土并不是一个全球化的工业品,不可能把技术工人、模板、原材料全部从一个地方运到另一个地方去修房子。混凝土的特点决定了必须因地制宜,因项目而异。他非凡技术的表现力成就了不少经典留世的建筑,这个案例分别从结构、空间、材质、色彩等方面来展现混凝土建筑的艺术特征。
▼
智利公司Felipe Assadi Arquitectos的新作品,位于智利中部的一个沿海城镇Zapallar,一座能俯瞰太平洋的倾斜场地,建了一座长长的混凝土房屋。

使用钢筋混凝土建造房屋,其中两根大梁横跨屋顶和一楼,两根主纵梁 :长41米,高1.4米,沿南北方向延伸,并在两端形成7米长的悬挑结构,因此得名H型宅。


其延伸部分形成了有盖的阳台和一个垂直的游泳池▼


下沉式的入口▼

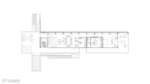
整体的布局设计,公共区域,餐厅和厨房,一个大的开放空间,没有墙壁或柱子▼




从外面进入楼下就是主卧室的套间。它包含一个家庭房和更多的卧室。




房子周围的坡道可以到达前面的院子,院子从东到西穿过主体结构下方,整个建筑看起来更加有一种漂浮感。


平立面图▼

图文来源:建筑空间(ID:tumupu)
如有侵权请联系删除!
完
众 图 互 联
人工智能·互联网平台型设计院

