

现代人越来越重视开放性、亮度和外观,玻璃在世界各地建筑的外部装饰中占据了主导地位。这迫使我们去寻找——能够处理过量的太阳辐射,并且在所有的季节里保持恰当的热舒适度,而不妨碍视野或使内部空间的设计方式。预制金属网提供了品质和灵活性,可以与玻璃配合使用。在此我们提出8个技巧,使之与这些材料集合,发挥其最大的可能性。

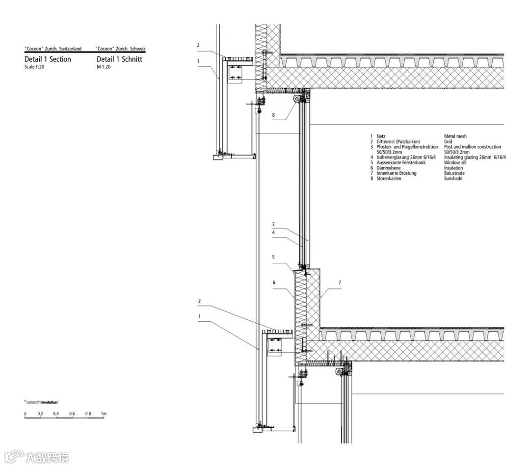
Cocoon / Camenzind Evolution

Cocoon / Camenzind Evolution
1. 避免将金属网格作为符合已经定义好的外立面的一种外观实体
为了正常操作,金属网必须与建筑物的其他部分一起设计,对其不同的水平、方向、内部功能和其他特性作出反回应。通过这种方式,您将得益于其灵活性和优点。 金属网很容易改造、升级现有建筑;在这些情况下,考虑预先存在的条件对于有效的应用是至关重要的。

Cocoon / Camenzind Evolution

2. 考虑金属网可以在夏季和冬季提供热舒适度
在夏天的时候,网格会过滤太阳光线,产生阴影,降低室内的温度。冬天它的可渗透性允许太阳射入,降低了加热的成本。这就使得我们在设计和选择网格的开口和纹理时考虑不同月份的可变条件。

示意图

重庆融创国宾壹号院售楼处 / AOE
当使用金属网作为遮阳,与玻璃罩相结合时,需要注重整个立面系统的相互作用。包括彩釉玻璃,阳光仰角,金属网与玻璃立面的距离,金属丝的光泽度等。

重庆融创国宾壹号院售楼处 / AOE

3. 利用风和安装方式形成有效的通风外墙
金属网可以与玻璃分离安装。我们可以选择一种适当的距离产生通风效果,防止热空气在立面延长的过程中的堆积。

4. 使用最小的支撑点降低成本
为了在整个立面中安装网格,只需要一个具有上下连接点的子结构。根据组成它的单个元素的大小,必须在每一层上增加固定的中间支撑,减少对子结构的最大负载,以及网格的可能偏差。

虽然线网元素的最大宽度受到生产方法的限制,但其长度受到处理和技术考虑的限制。在大多数案例中,使用单一长度的元件可以覆盖20到25米的高度。经过详细的技术检查,可以制造更长的元件。



5. 以内部使用者的角度考虑
尽管立面在城市尺度的视觉上可以做到热量,遮阳,设备的隐藏,但我们必须考虑用户在室内空间的观察和感受。 不同图案和水平的网格开放和变化程度,可以决定景观的质量和生活空间的光照。


6. 尝试利用它的灵活性:网格不应该总是固定的
不同的安装选项——固定的、滑动的或可拆卸的——使其更好地适应气候变化,使立面在形式上和功能上有更多变化的可能性。

7.对形式进行实验:网格可以在外观上产生3D效果
立方体,圆柱体,直角和自由形态。通过预制构件,可以生成动态三维几何图形,以增强内部的热和光舒适性。除了形式上的变化,网格通常采用不锈钢外观,可选用不同的颜色、数字印刷、涂覆金属线、金属线网(铜、锡青铜、黄铜)等形式。

人工光源和自然光源,透明性,亮度和颜色之间的作用使立面不断的展现出新的,时尚的色彩。

8. 在立面中加入光动画和大型视频内容
金属网格生成广泛的表面,将建筑物转换为媒体交流平台。利用 LED 技术,立面可以在夜晚产生第二种功能。

编辑:黄馨仪 韩爽;翻译:宋慧中
文章全文转自ArchDaily

众图互联
NO.1
人工智能 · 互联网 · 平台型 · 设计院
众图互联是国内首家互联网建筑设计院
将人工智能、大数据、云计算、互联网等技术与建筑设计深度融合;
打破传统设计模式,为业主提供高效服务。
以“众方案、众出图、众审图”为特点,
结合在线协同设计、专家点评+大众点评配置;
快速集成方案图、施工图,打造一个全新的建筑设计生态系统。
众方案设计 众图学院
人工智能产品 协同设计系统
NO.2
汇聚全球优秀建筑设计精英
众图互联拥有超过5000名建筑方案设计师,能在极短时间内,为您提供丰富的学校、医院、旧城改造、创意园区、人才公寓、图书馆等不同建筑类型的优秀方案,让您能轻松获取心仪的方案。
众图互联拥有超过1000名建筑设计领域的行业专家,通过线上线下结合的方式,对建筑设计方案提供专业的评审意见,充分保障交付给您的方案质量。
学校 医院 住宅公寓
创意园区 旧城改造 图书馆
NO.3
众图互联官方热线:
400-900-2133
更多精彩内容请关注众图互联公众号



