
大众创新,图领未来

东南鸟瞰图. © 夏至

南立面正视. © 夏至
项目信息来自建筑师:
商丘博物馆位于商丘西南城市新区,收藏、陈列和展示商丘的历代文物、城市沿革和中国商文化历史。博物馆的整体布局和空间序列是对商丘归德古城为代表的黄泛古城池典型形制和特征的呼应和再现,博物馆犹如一座微缩的古城。上下叠层的建筑主体喻示“城压城”的古城考古埋层结构,也体现自下而上、由古至今的陈列布局。

南侧堤台、下沉庭院和入口引桥. © 夏至
博物馆与周边历史景观

草图

游览路线图
博物馆主体由三层上下叠加的展厅组成,周围环以水面和庭院,水面和庭院之外是层层叠落的台地绿植和其外围高起的堤台(下面设室外展廊),文物、业务和办公用房组成L形体量,设置于西北角堤台之上。设南北东西四门,主入口设在南门,其它三门各有贵宾、临展、办公等用途。
模型图
由东南水榭望入口引桥. © 夏至

主入口. © 夏至
参观者由面向阏伯路的大台阶和坡道登临堤台,沿南面凌水引桥而由中部序言厅入“城”,自下而上,沿中央十字大厅(喻城中十字主街)中的坡道陆续参观各个展厅,最后到达屋顶平台,可由建筑主体各角眺望台,与不同方向的著名古迹——阏伯台、归德古城、隋唐大运河码头遗址等遥遥相望,怀古思今。
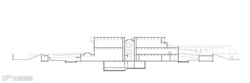
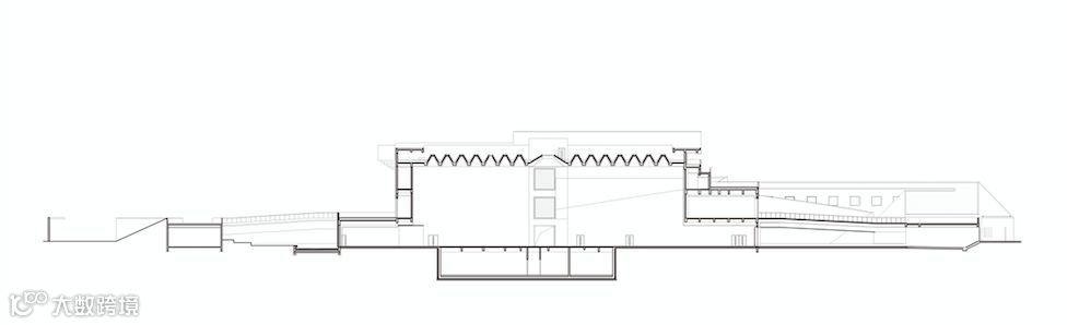
剖面图
十字中庭. © 夏至

观众由上层入口门厅下至一层的序言厅. © 夏至
序言厅. © 夏至

多功能厅. © 夏至
一系列精心组织的建筑和景观元素,形成了在上下内外、近远、之间往复变化的空间叙事,使参观者游观尽致,完成对这个 微缩之城及其所承载延伸的古城历史 的完整体验。

层叠下沉的景观台地. © 夏至
博物馆大量采用了一种廉价的“鲁灰”石材,作为建筑内外空间的主要界面材料,但受到博物馆汉画像石藏品的启发,每块石材均作了磨切外边+中间烧毛的处理,错缝拼挂,使细节显得考究。在室内加入了树脂实木面板材,与石材采用统一规格,增强了室内空间的温暖和舒适感。

南立面石材挂板局部. © 夏至

由西南角临水小平台望主入口引桥. © 夏至

北侧鸟瞰. © 夏至

总平面图

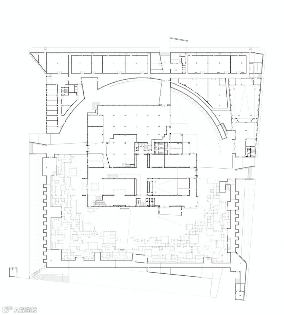
一层平面图

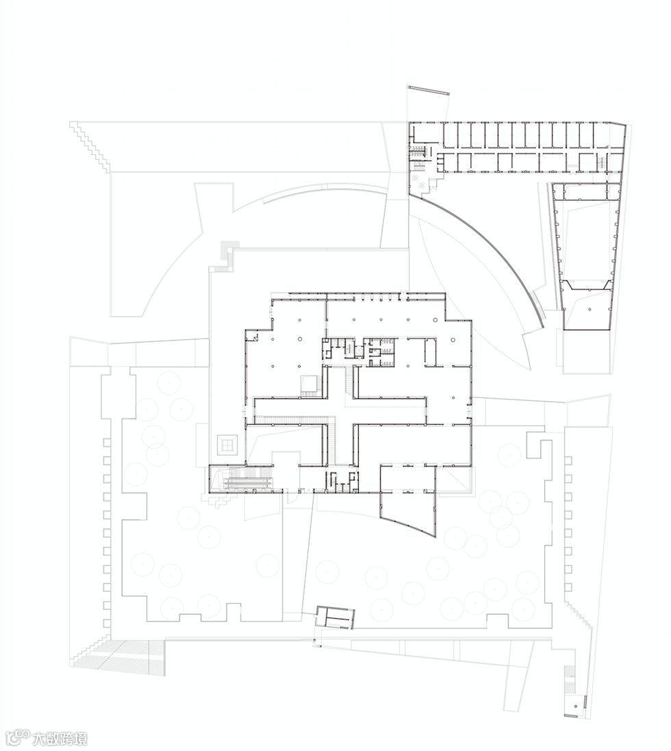
二层平面图

西立面图

南立面图
剖面图
剖面图
建筑师:李兴钢建筑工作室
地址:中国,河南省,商丘市
建筑设计:李兴钢、付邦保、谭泽阳、张哲、李喆、张玉婷、梁旭
结构设计:张晔
景观设计:李力
机电设计:陈宁、刘燕军、王铮
建筑面积:28613.0 平方米
项目年份:2015
摄影师:夏至
来源| Archdaily


