



壹 共生
项目毗邻龙兴古镇,御临河边,有远山起伏,绿化集中,东侧景观极佳,而其余方向则乏善可陈。
作为对环境的回应,建筑师将三个体量不同的盒子并列于山坡上,垂直于滨河道路,以期达到滨河景观及远山的最佳观赏。通过建筑与环境的互塑共生,使远山、河流、庭院、建筑重塑构成新的秩序,营造独有坡地特征的建筑群落。


△项目区位

△总平面
贰 拓扑
建筑师依据功能将每一个建筑空间依序形成不同的体量,展览厅、书吧、游泳池、餐厅等顺次形成多重院落空间,虚实空间的变化过渡一如中式游园,将传统中式意境融入现代空间中。
空间与建筑体量形成有趣的关系,垂直变化的高度更加丰富了空间层次, 上下、内外、远近,空间往复变化,人在其中,体验叙事性的情怀。

△形体生成
建筑力图创造出来的流动空间形态,将多空间有机联动,彼此穿透。通廊虽为直线空间,却展现出极其丰富的空间特色。



庭院与天井以覆盖获得领域感,内外场所的邻接性,并展示出空间的开放性以及基于空间关系的解放性。






叁 真实

△设计手稿
为表达建筑、空间、形体的真实性哲学理念,建筑师利用木结构的特色,以结构形态塑造建筑空间和形体,将空间与结构产生紧密联系,因而使建筑本身具有了“诚实的美德”。
这种明晰的结构逻辑,试图创造一种崭新的带有乌托邦理想的建筑群落,以建筑手法对抗虚假浮华的世界。

△元素提取——如青山连续绵延的古镇建筑屋顶

△折坡形式元素转换为屋顶

△抽取变化的单元模式转化为结构构件

△“门”型构件形式结合折坡和书籍的形式变化
暴露的胶合木结构构件是建筑中最重要的视觉元素。建筑师以重庆传统的折坡屋顶秩序的形式语言转换成为建筑形体,抽取变化的单元模式转为结构构件,多片构件以秩序和变化排列组合,产生紧密的空间与形体的变化。


△泳池结构

△餐厅结构

△展示中心结构
木构件笔直搭接,严整清晰,建构感强。流畅的线条和统一的韵律感使建筑空间极具张力。构件体现出的动态平衡,丰富了建筑语言,将空间变得非常具有戏剧化。


肆 回转
设计师将书院定义成一个能让人阅读、思考、安静下来的场所,并希望成为阅读者的场所记忆,生活方式通过书院的一呼一吸中不断进行新陈代谢。书院中旋转迂回的楼梯,书架环绕,顶部引入自然光,呈现流动灵活却有震撼力的空间,光线的变化还使读者感受到时间的游走。


△书院剖面图



伍 光影
建筑师以六边形铝板作为主要界面材料,覆盖于内部结构之上。表皮顺应真实的建筑形态变化,每块蜂窝铝板精细包边,开缝拼挂,细节考究。数字化的表现手法营造出“Cyberpunk”(赛博朋克)的超时空现代感,表皮在自然光下形塑特质,追随光线的变化,产生复杂而神秘的视觉效果。

△结构构件与表皮贴合








陆 工艺
为追求极致的建筑美观度,项目采用设计施工一体化方式,并应用BIM系统实现了项目整体管控,每一个结构构件都通过编程设计优化,数控机床加工生产,现场安装。为了降低施工误差,运用大量数字化理念和先进技术,将项目做到事前控制和动态管理,因此木构部分从安装到屋面结构完成仅用了短短25天。
△结构构件设计

△施工现场
建筑师以极现代的手法,真实的结构与空间,重新阐释了现代建筑美学,这种发自与内,并自内而外的建筑,以其整体性与真实性,使建筑具有了道德和诚实的美感,这种基于变化中的结构形态将功能、空间、材料、结构与人的交融和对话逐级展开,使建筑的一切都在自然的光线下优美的表现出来!

△空间“隔而不断”(平面图)


△连续的流动空间(剖面图)

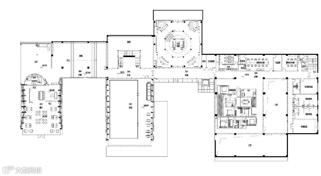
△一层平面图

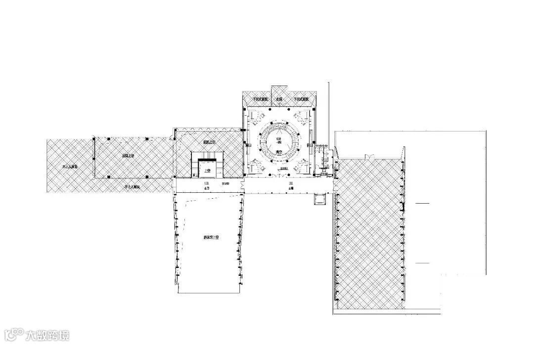
△二层平面图

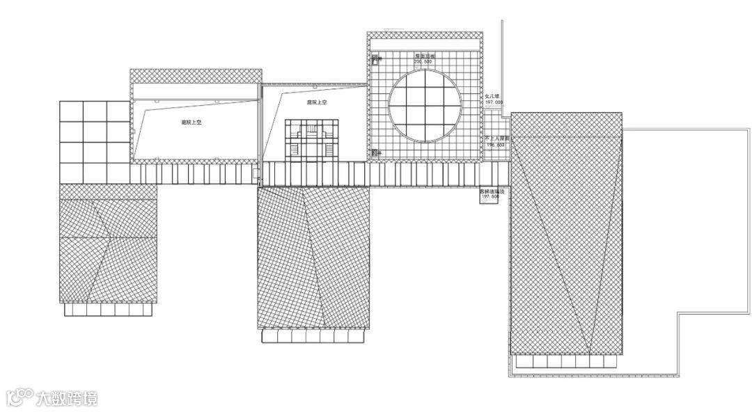
△屋顶平面图
项目名称: 重庆龙湖两江长滩原麓社区中心
建筑事务所: 上海成执建筑设计有限公司
事务所网站: http://www.challenge-design.com
电邮联系方式: xiebaisha@cz-ad.com
木结构施工:上海隽执建筑科技有限公司
主创建筑师: 李杰 黄伟 严芳 吴雪艳 许阳峰
设计团队: 冯武兵 刘喜桃 刘寅 郑文龙 薛成宗 颜袁原
木结构施工图设计:陈迪龙 李娟 张宇
项目详细地址: 重庆市渝北区龙兴商圈
项目完成年份:2018年7月
建筑面积(平方米): 4000平方米
摄影师: 三棱镜建筑空间摄影 存在建筑
木结构施工:上海隽执建筑科技有限公司
业主:重庆两江新区龙湖新御置业发展有限公司
END

