
风雨操场全景 © 夏至
项目位于湖南省岳阳县,业主为庆祝母校六十周年校庆,决定在岳阳县三中的校园内捐助新建一处风雨操场可兼做报告厅。一方面为学生们提供更好的体育活动空间,另一方面也希望借此建筑及周边环境的设计,为目前规整严肃的校园增添一些活力。

农田村庄围绕中的学校 © 夏至
鸟瞰 © 夏至
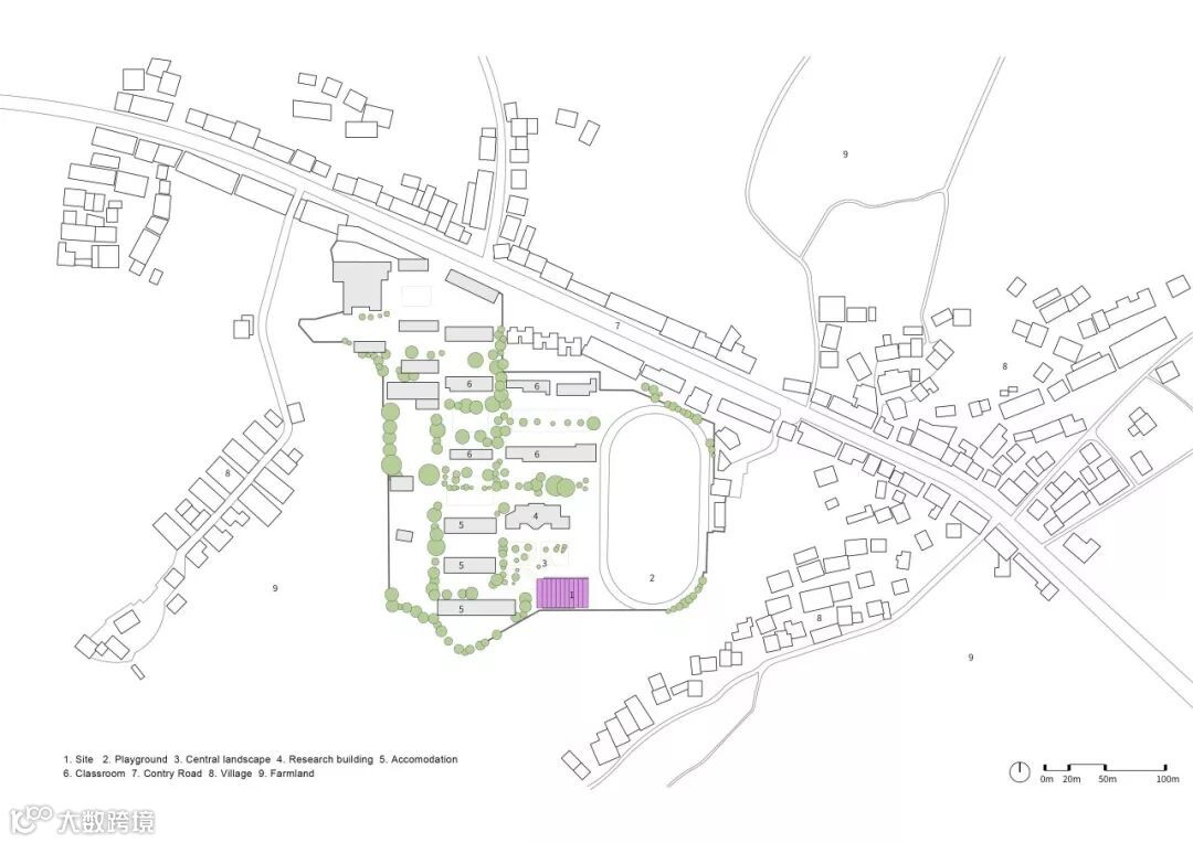
新建的风雨操场位于校园西南角,主教学区和操场存在一层高差,利用毛石挡墙简单划分,仅通过一段宽度有限的台阶上下,不方便通行且存在安全隐患。

从主楼看风雨操场 © 夏至

面向主楼花园的北向住里面 © 夏至

西北侧广场 © 夏至
选址由建筑师与学校共同确定,经过沟通,新建项目没有简单选择放置在低处或者高处,而是横跨在高差之上,结合周边场地设计,在主校区与操场之间建立顺畅和自然的连接。

东南角 © 夏至
风雨操场的主体空间位于高处,锯齿形的起伏形体来源于岳阳本地的山地印象,与主楼相对。通过前广场导向曲线的室外休闲台阶,通往低处的活动场地,台阶亦可兼做休闲看台。体育器材室卫生间等位于低处,与室外场地一体设计,利用曲面形体和本土的红砖塑造更加亲切近人的场所。

东立面 © 夏至
岳阳位于中国的夏热冬冷地区,全年潮湿多雨,湿度较大。为保证舒适的体育活动环境,并减轻学校购置机械设备及后期维护的成本,建筑将自然通风和采光作为重要可持续策略,结合基本空间和形体进行了一体化设计。主席台的上部进行了拔高设计,高处设有一直敞开的通风口,通风口利用倾斜立面进行自遮雨设计,无需机械调节开闭。

分析图

室内篮球场 © 夏至

室内篮球场 © 夏至
顶部设采光窗,塑造主席台的空间氛围。南北立面的底部,合设置一排通长可开启的门扇,使用时可全部打开,利用风压与热压通风原理,最大程度的促进室内自然通风,降低湿度,改善室内环境。

带护栏的室内通风门 © 夏至

室内局部 © 夏至

室内外贯通 © 夏至

室内外贯通 © 夏至
南侧的校园围墙与建筑之间设有窄巷,夏季可利用围墙遮阳适当冷却进入室内的空气。

南侧窄巷 © 夏至

南侧窄巷 © 夏至
锯齿形的屋顶设有充足的采光天窗,保证阴雨天的室内自然光,每跨锯齿的立面上部均设通风百叶窗,避免热量聚集。

十二星座纹样砖墙 © 夏至

红砖休闲台阶 © 夏至

通道 © 夏至

采光天窗 © 夏至
为尽量减少施工过程对校园的影响,结合地势高差,建筑采用了现浇结构和工厂预制混合设计的策略。底部延续现有高差的毛石挡土墙,采用钢筋混凝土和红砖的传统现场施工方式,上部主体空间则采用预制装配式的钢结构和围护墙体及屋面。

分析图

砖墙局部 © 夏至

东立面局部 © 夏至

洗手间及其他设施 © 夏至
结合红砖场地及墙体,把带有手工工艺特征的红砖砌筑与工业化产品一体化设计,利用手工艺带来的自由和艺术感适当中和工业化建筑的机械和单调,例如,利用传统花式砌砖方式,形成红砖墙面的采光通风洞,以及将十二星座图融入砖墙凹凸设计。

面向操场的东立面 © 夏至

© 夏至

主席团顶部拔高的通风烟囱 © 夏至
主体建筑的色彩图案设计,则来源于岳阳地形的山水平原分布图的抽象,作为学校建筑,为孩子们提供更加丰富且有趣的内容,增加互动。

立面图

通道夜景 © 夏至

休闲台阶 © 夏至

夜景 © 夏至

夜晚的活动空间 © 夏至


地理位置

总平面图

分析图

平面图

剖面图

墙身

建筑师: 素朴建筑工作室
地址: 岳阳县, 湖南省, 中国
项目建筑师: 宋晔皓,陈晓娟,解丹,孙菁芬,白苏日吐,褚英男,韩冬辰,于昊惟
项目参与者: 陈楠,费洪凤,谭新
业主: 岳阳县第三中学
建筑面积: 1368.0 m2
项目年份: 2017
摄影师: 夏至
来源:建日筑闻,如有侵权请联系删除!


