Hey~
我们又见面啦~
你还好吗?
2019.07.03
又到了每周作品赏析时间,今天小编继续给大家带来了养老院综合性大楼概念性规划设计项目的一个优秀方案,欢迎大家欣赏并留言讨论!

设计师:元尘设计
佛山市南海区桂城敬老院建于上世纪八十年代,前身为平洲人民医院,现已有床位300 床。由于桂城街道各社区老龄化程度偏高,速度加快,且家属大多无法长期在家照顾长者,桂城街道的养老需求正在逐步加大,而机构养老资源及设施配套难以满足整个桂城街道的养老需求。
面对日益严峻的养老形势,为了缓解敬老院床位供不应求的情况,现拟在桂城敬老院地块内,保留部分已有建筑(敬老院A、B 栋主楼及地下消防水池及其泵房)外,拆除其余建筑(敬老院A 栋南侧办公楼,同一地块内的社区卫生服务中心的及其围墙、北侧附属办公楼),并在用地范围内扩建含500 个床位的养老综合性大楼(不限于单一建筑单体),除满足主要的养老及配套的功能需求外,重建一个可服务总人口数约5.4 万人的社区卫生服务中心。

周边环境
1、工程名称:桂城敬老院建设养老综合性大楼项目
2、工程地点:广东省佛山市南海区
3、建设规模:项目用地规模16.28 亩,总建筑面积约36525.43 ㎡(含地下室)。其中,拟新建建筑面积约24500 ㎡(含地下室),保留建筑面积约12025.43 ㎡。
顺应社会发展趋势,引入互联网+ 养老智能体系,致力打造一个涵盖医、康、养、护、 社的全龄化养老中心,构建新型可持续性的生态养老社区。



用地分析
由于本案新建养老综合大楼与社区服务中心在功能上既要相互独立也要有所关联,因此我们在较为紧张的梯形用地上顺应地形将两栋楼穿插布置,高的一栋为新建养老综合大楼,较低一栋为社区服务中心。同时折线形的体块自然的让出了中心花园与两栋楼的入口前区广场,形成良好的院区疏散和城市道路的优质形象。

Step1顺应两栋入口主要人流对建筑进行流线贯穿,增强建筑的通透性与可达性。同时对建筑体量进行倒圆角处理,让整个建筑看上去更赋亲和力,也减少建筑对城市和院区内部的压迫感。
Step2建筑立面采用横向线条进行处理,让整个建筑更加流动与舒缓,同时横向的玻璃通窗也让整个建筑的室内采光得到充分的满足。在社区服务中心主入口处设置天窗,增强整个主入口的引导性与通透感。各建筑之间通过连廊进行衔接,让人们可以风雨无阻的到达院区的各个角落。
Step3建筑局部形成较大的观景平台,内部配合绿植进行穿插,形成空中院落。外部通过中心花园、屋顶花园、入口广场以及局部绿化的处理,柔性的处理建筑与整个城市的关系,实现资源能源的高效利用,打造一个生态、自然宜居乐活的精品社区。


由于本案新建养老综合大楼与社区服务中心在功能上既要相互独立也要有所关联,因此我们再较为紧张的梯形用地上顺应地形将两栋楼穿插布置,高的一栋为新建养老综合大楼,较低一栋为社区服务中心。同时折线形的体块自然的让出了中心花园与两栋楼的入口前区广场,形成良好的院区疏散和城市道路的优质形象。建成后的敬老院将呈现一个开阔的绿色视野,公园内精心设计绿化、灌木丛和铺地小径,为老人提供良好的环境,并托主楼形成显著的视觉效果。

总平面图


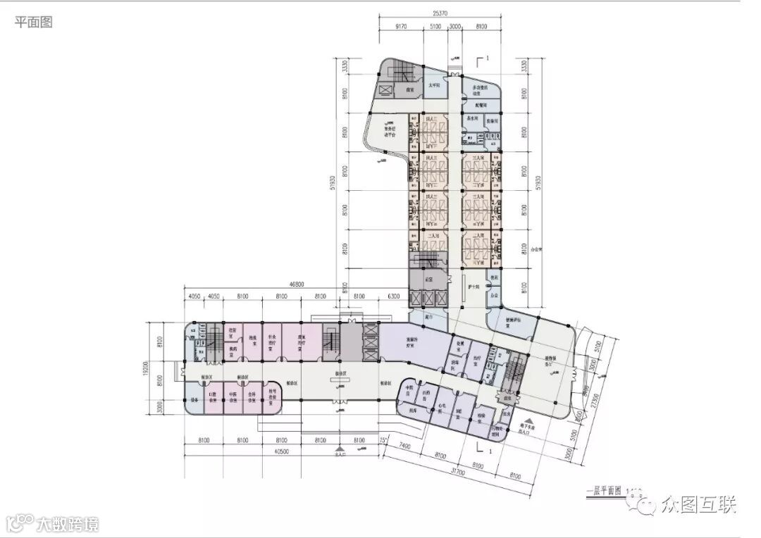
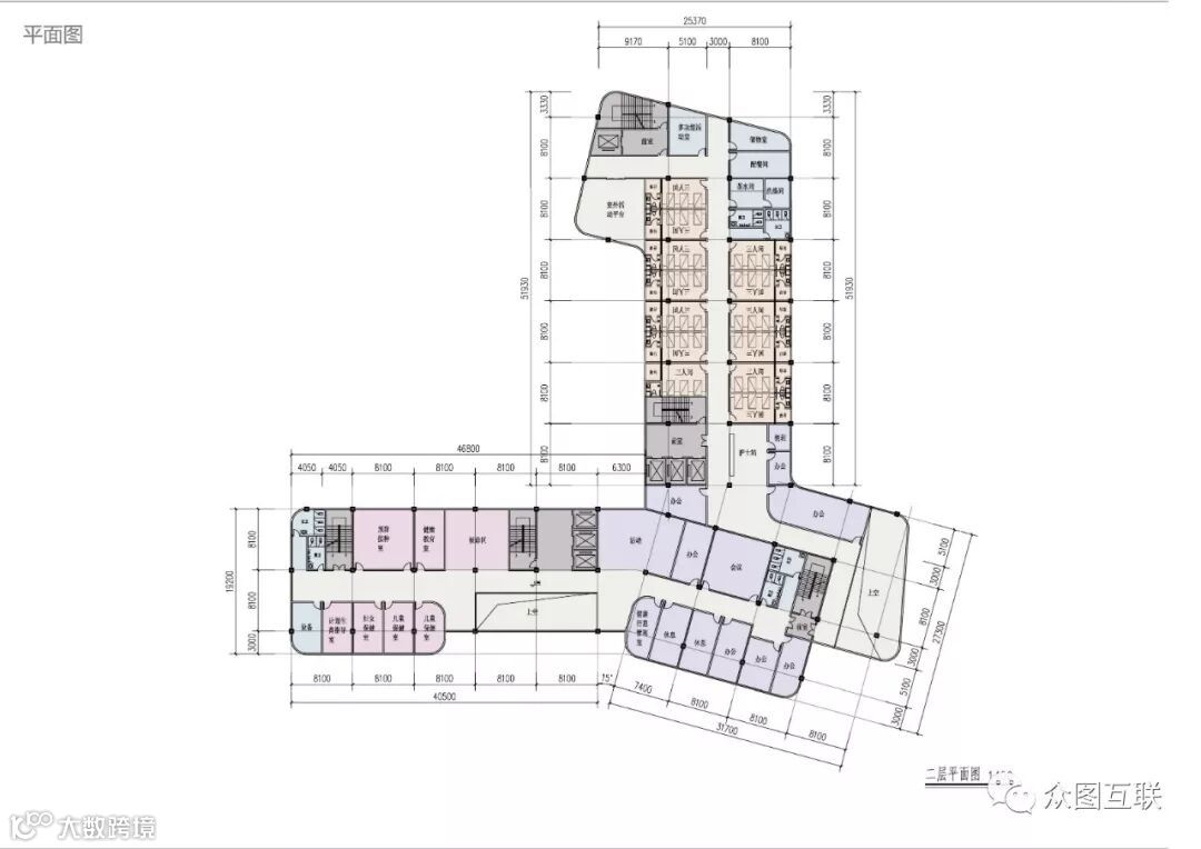
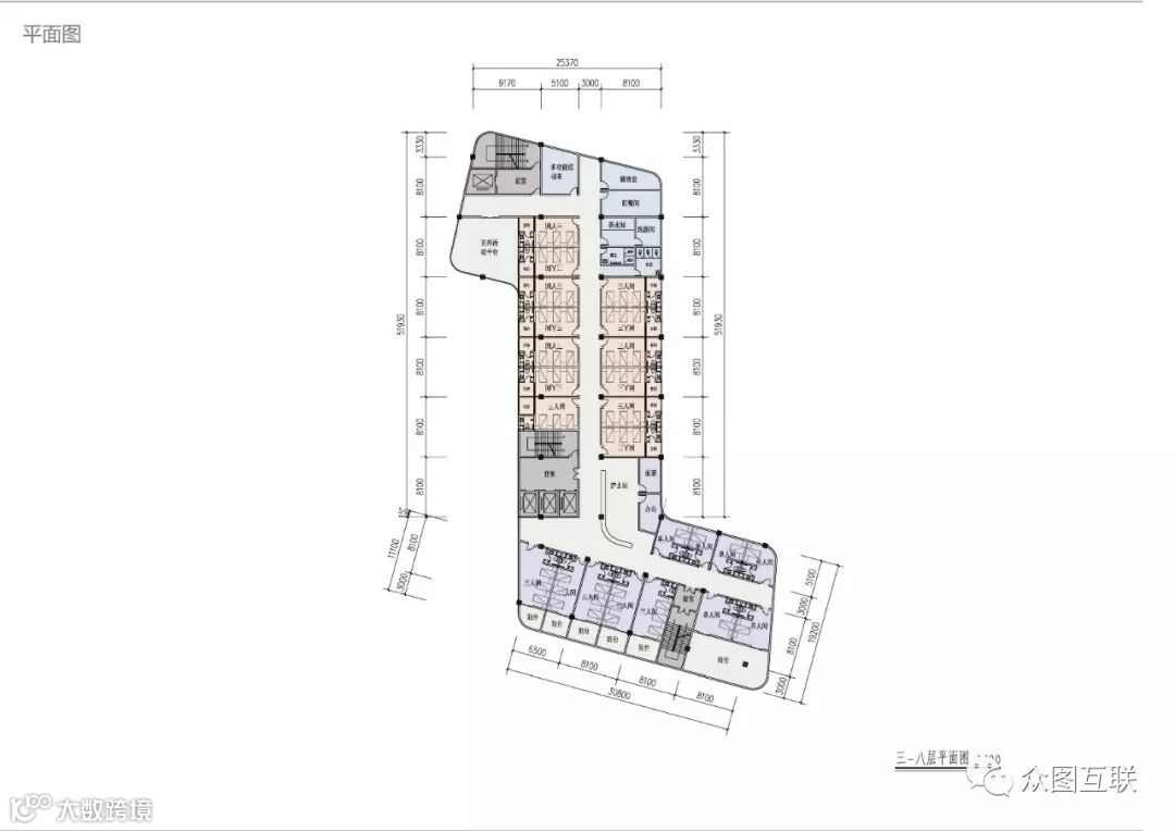
养老综合大楼地上13层,地下2层,其中1~8层布置双人间与单人间,9~13层布置四人间与单人间,满足四人间在高楼层的需求。具体每层功能如下:
一层:设置接待服务厅、健康评估室、双人间、茶水配餐间、多功能活动室、太平间等;

二层:设置双人间、护士站、办公室、茶水配餐间、多功能活动室等;

三~八层:设置双人间、单人间、茶水配餐间、多功能活动室等;

九~十三层:设置四人间、单人间、茶水配餐间、多功能活动室等

社区卫生服务中心地上2层,具体每层功能如下:
一层:设置临床科室用房,医技及其他科室用房
二层:设置预防保健用房,办公用房




好了,方案赏析分享部分今天先到这,下周三我们继续。欢迎大家留言提问!
温馨提示
以上作品内容仅供大家欣赏,不得用作其它商业用途。作品所有权归众图互联和设计师所有!
编辑:Zirui
排版:落花飞猪
·END·
科技 · 让设计更完美


