搜索
首页
大数快讯
大数活动
服务超市
文章专题
出海平台
流量密码
出海蓝图
产业赛道
物流仓储
跨境支付
选品策略
实操手册
报告
跨企查
百科
导航
知识体系
工具箱
更多
找货源
跨境招聘
DeepSeek
首页
>
一周筑闻:安藤忠雄世界巡回展·北京站开幕; Snøhetta 赢得克拉根福大学校园扩建设计竞赛
>
0
0
一周筑闻:安藤忠雄世界巡回展·北京站开幕; Snøhetta 赢得克拉根福大学校园扩建设计竞赛
众图科技
2021-10-15
0
导读:行业快讯
埃里克·
欧文
·莫斯设计的钢结构(W)rapper大厦历经20多年终于封顶
通过最新图像揭示,
埃里克·欧文·摩斯建筑事务所的设计 (W)RAPPER 办公楼已经封顶。
这座 17 层、183,000 平方英尺的高层建筑以其自由形式的钢外骨骼而引人注目,它包裹着结构,允许内部无柱。据报道,它将于2022年6月完成。
最初的建筑项目是两座 230 英尺高的高层塔楼和停车场——于 1999 年获得洛杉矶城市规划委员会和洛杉矶市议会的批准。在最初批准时,这是中南部唯一的高层建筑方案。今天,该项目仍然是该市该地区唯一的塔楼提案。与洛杉矶其他更富裕的地区相比,该项目承载着重建一个贫困地区以及随之而来的社会病态的地区的愿望。该社区唯一的另一个重要的新开发项目是 Cineon Kodak 航空权项目,该项目于 1996 年在最初的 45 英尺高度限制内完成,并被认为是塔址重新开发的第一阶段。塔楼是重新开发的第二阶段。
永远青春 | 安藤忠雄世界巡回展·
北京
站开幕
“安藤忠雄世界巡回展北京站·青春”,是安藤忠雄建筑设计生涯迄今最为全面的大型回顾展,同时是安藤忠雄迄今最大的日本海外个展,于 2021 年 10 月 12日-2022 年 01 月 09 日在北京民生现代美术馆举办。展览将分为“空间的原形” “城市的挑战”“景观的创造”“与历史对话”四个部分,探讨安藤忠雄以“斗士” 的姿态,持续挑战大半生的建筑事业,及耄耋之年对生命之“青春”的回溯解读,呈现一代巨匠安藤忠雄的非凡成就和对未来的思考。
“安藤忠雄世界巡回展中国北京站·青春”海报
Snøhetta 赢得克拉根福大学校园扩建设计竞赛
今年7月,Snøhetta 宣布赢得了奥地利克拉根福大学校园(Campus Universität Klagenfurt)扩建的总体规划竞赛。克拉根福大学是奥地利一所成立于1970年的公立性高等院校,也是奥地利一所年轻的进行互动教学的院校,属于师范类大学,已经从早期的教育学院发展成为了今天的综合性大学。
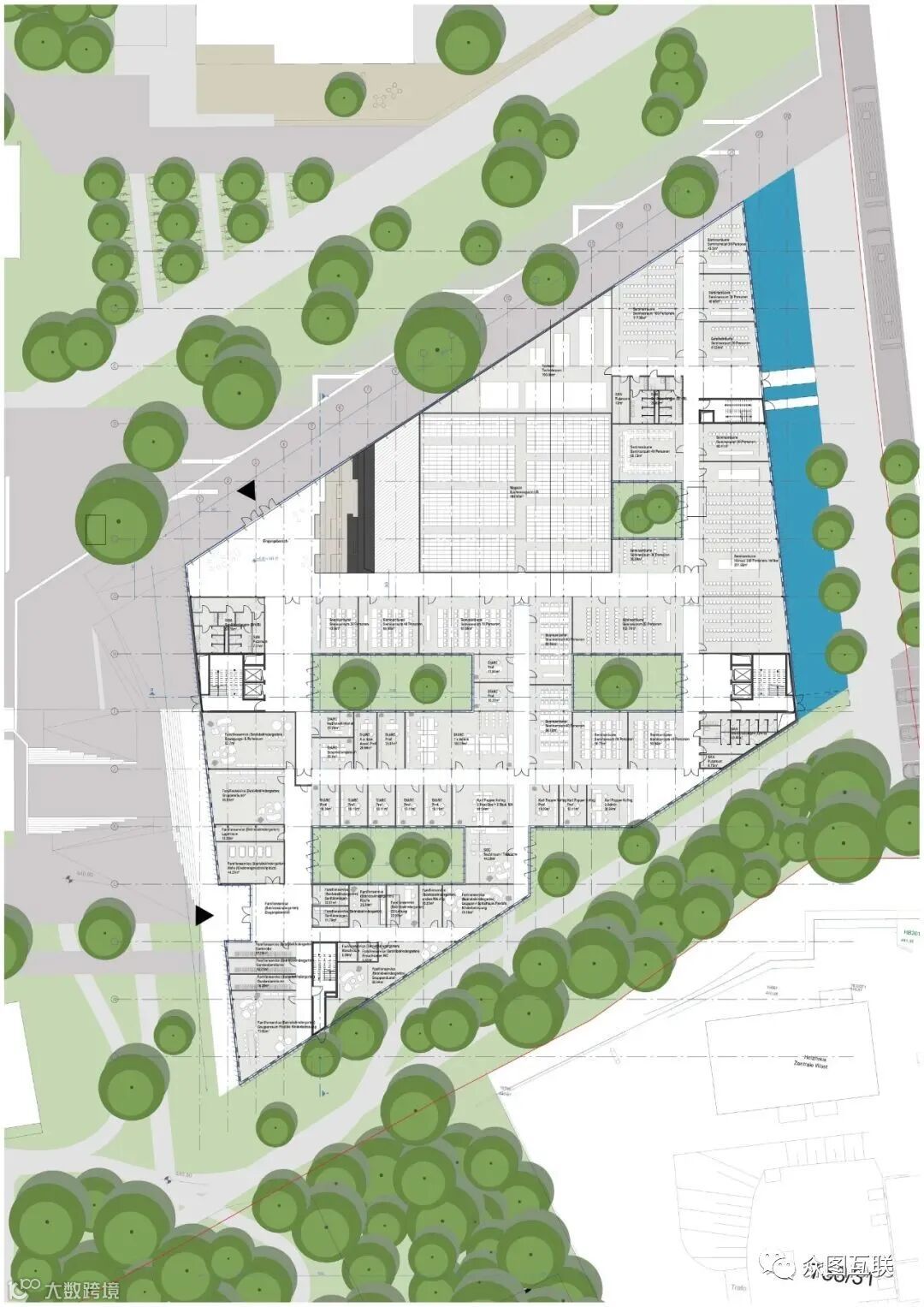
苏黎世瓦尔德诊所康复中心大楼设计竞赛结果
瓦尔德诊所的历史可以追溯到 1898 年由苏黎世州非营利组织开设的“肺病康复中心”。它被建造在海拔 900 米的法尔蒂格山东坡,该医疗机构受山脉和两片小森林的保护,大部分朝南,为治疗肺结核患者提供了良好的治疗环境。之后在很长的一段
时间
内,该诊所经历了多次的改造、扩建。在2015年的时候,瓦尔德诊所就已经确定了需新建一座康复中心的计划,这主要是出于运营和经济原因,诊所希望在法尔蒂格山脊的新位置建造一座新建筑。
来自瑞士布鲁克的 Liechti Graf Zumsteg Architekten 赢得了竞赛的第一名,他们设计的康复中心大楼是一个带有凹曲面外墙的五边形平面,一、二层为治疗和诊断中心,患者将能够在绝佳的全景位置进行康复。建筑中心通过内中庭与入口大厅相连,120 间病房位于上方,每一个病房都能享受到户外优美的景色。
Hawkins\Brown 赢得
伦敦
霍普金斯儿童医院扩建设计竞赛
Lambeth 议会近期批准了 Hawkins\Brown 对伦敦最大的儿童医院——霍普金斯建筑事务所设计的伊夫琳娜儿童医院(Evelina Children’s Hospital)的扩建设计方案,这座耗资5000万英镑的11层的扩建建筑位于滑铁卢,在10月5日的兰贝斯议会规划委员会会议上获得批准,伊夫琳娜儿童医院曾是2006年斯特林奖的入围者。
报告
:今年上半年中国建筑业业绩稳中有增
安永建筑13日发布了《中国建筑行业2021年上半年业绩概览》报告显示,今年上半年中国建筑业业绩稳中有增,行业集中度持续提升。上半年建筑业实现了增加值33000亿元(人民币,下同)同比增长8.6%。
报告指出,截至2021年6月底,中国建筑业企业完成建筑总产值119843.55亿元,同比增长18.85%。2021年上半年全国建筑业企业签订合同总额为人民币443,614.48亿元,同比增长13.49%。
报告还显示,中国8家主要上市建筑业企业新签合同额再创新高。2021年上半年疫情在全球范围内尚未完全结束,8家上市建筑企业累计新签合同额为人民币62,924亿元,同比增长24.27%。
合肥
举办第三届装配式建筑职业技能大赛
10月11日-12日,为期两天的2021年合肥市第三届装配式建筑职业技能大赛举行。
本次大赛以“建功‘十四五’,奋进新征程”为主题,由合肥市城乡建设局联合相关单位共同举办。旨在为全市建筑行业从业者提供一个相互学习、切磋技艺、提高技能的平台,努力打造一支技术精湛、作风过硬、敢于创新的建筑产业人才队伍。
2021“城博会”将于10月29日亮相
上海
世博展览馆
作为“世界城市日”主题
活动
之一,2021上海国际城市与建筑博览会(以下简称“城博会”)将于10月29日至10月31日在上海世博展览馆举行。今年城博会展出面积预计5万平方米,以“韧性城市,低碳生活”为主题,从绿色、治理、宜居、韧性、智造五个维度出发,全面展示在城市可持续发展方面创新意义、推广价值、可实践性强的理念成果和应用示范案例。
【声明】内容源于网络
0
0
众图科技
AI精益投资优化技术服务提供商!众图科技由湾区资深建造群体和硅谷智慧科技优秀专家联合创建,专注于人工智能在建筑行业应用。
内容
1457
粉丝
0
关注
在线咨询
众图科技
AI精益投资优化技术服务提供商!众图科技由湾区资深建造群体和硅谷智慧科技优秀专家联合创建,专注于人工智能在建筑行业应用。
总阅读
201
粉丝
0
内容
1.5k
在线咨询
关注