
-
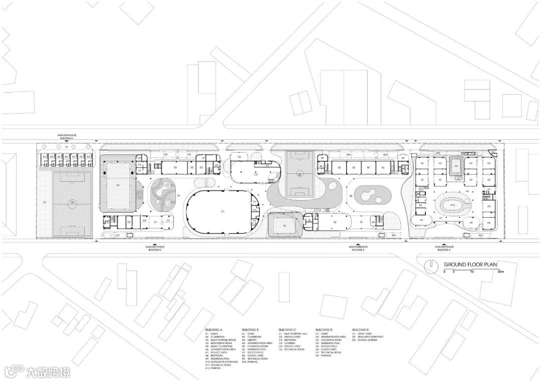
鼓励学生和老师在建筑间走动,在参与日常活动的同时增加他们与自然的体验。 -
促进不同年龄的学生和他们老师之间的互动。 -
通过与自然的直接接触,创造轻松、舒适的创造性学习和教学氛围。
来源:搜建筑
版权归原作者及原出处所有
众图科技
来源:搜建筑
版权归原作者及原出处所有