你不一定要点蓝字关注我的
煤气包改造住宅
Gasholders London煤气储备站俗称:煤气包,是指城市燃气输配系统中,储存和分配燃气的设施。
一般是圆柱形建筑,今天要为大家介绍的住宅,在改造前就是下面这个煤气包 ▼
在城市的改造中,煤气包一般都会被拆除。
也有一些市民会怀念这个「有时高,有时低」,城市中的「地标性建筑」。
但是,城市中的煤气包,
难道就只有被拆掉的命运吗?
非也。
今天小编君就要为大家介绍,一个在煤气包旧址重建的现代化住宅楼——Gasholders London ▼
01
改造设计
这个建于 1867 年的煤气包,是最独特最美的「三罐联体导向架」。现在是英国的二级保护建筑。
设计师 Wilkinson Eyre 和他的事务所,在 2005 年将 3 个住宅建筑建在优雅的铸铁框架内,这个崭新的设计概念,赢得了 Gasholders 的设计竞标。
伸缩式储气罐,是在 1824 年为了满足英国不断扩大的城市需要而发明。
通过 3 个不同高度的建筑,展现原始储气罐的运动形式:因气体压力做上升或下降运动
煤气钢构架
设计师在新和旧之间,创建了一个动态的对立点,用工业美学结构全新的公寓楼。
原始物理材质,与内部空间的轻盈和复杂性,形成鲜明对比。
这样的灵感来源于传统手表的机芯运动 ▼
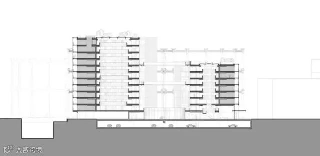
建筑平面图与立面图
公寓通过一系列圆形走道,围绕着中央庭院连接起来,可以看见水和光相互反射。
而位于框架中心则是开放的庭院。
145 个住宅中,大部分都有宽敞的私人阳台或露台,能看到伦敦的美景 。
历史保护的铸铁架安装过程 ▼

02
室内设计
Gasholder 的主要入口位于新的 Lewis Cubbit 广场。
玻璃门和悬臂式的顶蓬,让大堂的层高看起来非常高 ▼
效果图
完工后照片
室内的设计灵感参考了原始储气罐的工业建筑材料。
设计师草图对中庭处的构想草图
<< 滑动查看下一张图片 >>
公寓的中庭完工后照片
圆形的中庭虽然没有大空间磅礴的气势,却有着更加宜人的尺度感。
门牌号码镶嵌在门边的金属板上,显得格外别致。
信报箱布置在中庭底部的户型墙面处,不仅解决了功能空间,也成为墙面的装饰。
室内设计由 Jonathan Tuckey 工作室完成。在这个具有标志性的建筑中,它们创建了精致与完美协调的公寓。
设计草图△
设计效果图△
精装公寓的样板房采用简洁的设计风格,空间中以白色为主基调,配合碳黑色木皮、金色的金属材料构成样板房的主材▽
清新自然的装饰构成了房间内部舒适的格调。
公寓还有着现代化的配套设计,例如餐厅、影院、SPA、健身房……
03
销售中心
销售中心的一面由铸铁钢架作为门头,设立出这个建筑的独特性。
另外的一边用彩色玻璃,流露出现代建筑的时尚性 ▼
透进室内斑斓的光线把空间彻底点亮 ▼
由一个煤气储备站改造的住宅楼只是这里的第一步,未来这里将成为全新的现代化街区。
谁也不会想到在大约150年后的今天,这个原本将走入历史的煤气包,还能再次有所创新,变身高档的住宅区。
文章来源:网络
如有侵权请联系删除

