© 赵强
本项目位于传统书法之乡——江苏沭阳,定位为展示和传承沭阳文风的书法艺术馆。
© 赵强
设计理念
建筑构思从宣纸,笔墨,印章中提炼了中国书法艺术中最为根本的黑白红三色,以单纯的色块体量打造纯粹的空间体验。

© 赵强
建筑布局取意“乱石铺街”的书法审美意趣,通过控制建筑的体量大小,空间收放,材质对比等关系,契合书法艺术中虚实,轻重,开合等变化。

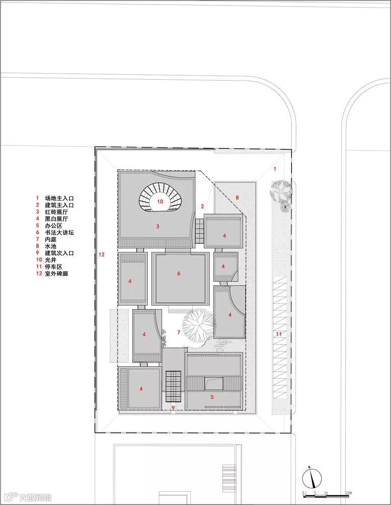
规划图
设计处理
沿街最大的展厅红砖外墙,如同一枚凝实的刻章,印盖在飘逸的水墨画卷上。角部通过弧面削切的手法强化建筑沿街的标志性,形成独特的韵味。红砖选用宜兴陶土砖,根据所处位置的不同采取了三种砌法,下部丁头突出墙面,上部收进墙面,削切部分平砌,构成不同的肌理质感。

© 赵强

© 赵强
墨色体量角部均施以削切,以深灰色氟碳漆喷涂,在蓝天下墙面呈现出微妙的色泽变化,如巨石,如墨块,具有雄浑拙朴的质感。体量底部均做圆角处理,以扎根于土地的姿态体现出书法艺术中的凝重感。
© 赵强
白色体量选用预制混凝土挂板,表面均做竖向凿毛处理,如宣纸,如素帛,与光洁细腻的墨色体量表面形成对比,相映成趣。体量底部均凌空悬挑,呈现出轻盈的漂浮状态,体现书法艺术在精神层面的超脱感。

© 赵强
入口沿街处设置了宁静的水面阻隔外界喧嚣,由一条水面上的平桥将游人引入美术馆内,以空间的连续过渡使得游人在进入展厅前能够迅速沉静心灵。

剖面图
体量之间以“疏可跑马,密不容针”的布局手法控制空间关系,在紧密处仅留2米宽的窄巷,两侧均为纯粹的黑白体量,人在其中如行书卷间。疏朗处空间转为开放庭院,营造豁然开朗的空间效果。

© 赵强
体量局部以内向掏挖的方式形成灰空间,室外空间可在此延续入室内休息区,游客在参观过程中可由此经历充满趣味性的空间体验。

一层平面图

© 赵强
所有的展厅均为大开间的无柱空间,可根据展览需要自由布置。展厅与展厅之间以玻璃连廊相通,以利于连续观展。红砖展厅中部设有贯通三层的光井,营造明亮通透的室内空间。

© 赵强
铺地和屋顶庭院以水墨晕开时的抽象图案为设计灵感,通过铺地花岗岩不同的灰度变化构成了一幅飘逸灵动的水墨画卷。

© 赵强
© 赵强

© 赵强
模型图

模型图
二层平面图
三层平面图
项目概况
建筑事务所:浙江大学建筑设计研究院
项目地址:沭阳县,宿迁,江苏,中国
主创建筑师:董丹申
设计团队:陈建、倪剑、蔡弋
建筑面积:10475.0 平方米
项目年份:2013
摄影师:赵强
结构工程师:魏开重;吴帅
机械、电器、管道顾问:杨毅;李平;张敏敏;潘大红;周欣;叶劲
照明顾问:周沛雨
估算师:裘朝晖
景观顾问:蔡笑昂
来源 | ArchDaily


