杨浦科创
优质空置房屋招租公告
上海杨浦科技创新(集团)有限公司
发布时间:2025年10月
为便于经营商户和租客及时了解杨浦科创集团旗下子公司商业、办公资源招租动态信息,现将我集团优质空置房屋招租信息公开如下,请有意向承租的经营商户或租客按本公告联系。
特别提示
1、谢绝生产、储存、经营(带储存设施)危险化学品的企业。
2、谢绝大型建材、汽配、小商品或纺织类市场经营户。
3、谢绝 KTV 夜总会、桑拿会所、棋牌室、游戏机厅、非连锁型足浴等、及群租或其它易产生“三合一”(住宿与生产、仓储、经营一种或一种以上混合设置)现象的行业经营户。
4、谢绝二房东。
商业载体资源
图为创智汇园区1、2、3号楼商业部分平面图
项目简介
创智汇项目位于杨浦区五角场核心区域,紧邻地铁五角场交通枢纽,交通便利,区位优越。附近有合生汇、百联又一城等商业。项目前身为上海拖拉机内燃机厂北部厂区,是国定东路开放式的创新创业街区地标建筑,保留了老厂房的历史元素,强化老厂房建筑特色,体现工业城市文脉的延续,注入全新的创意产业、新兴产业等新鲜血液,连接创智天地和公共实训基地,为大众创业增添沃土。
层高:2.85-3.78米
电梯:1号楼共2部、2号楼共4部、3号楼共4部
楼层:1号楼共5层、2号楼共5层、3号楼共7层
空调:VRV
停车信息:地面车位45个、机械车库停车位262个
项目明细
联系人:
杨敏燕 13701878535
如有意向可扫描下方二维码预留报名信息
现场查看招租详情
左右滑动查看更多项目图片
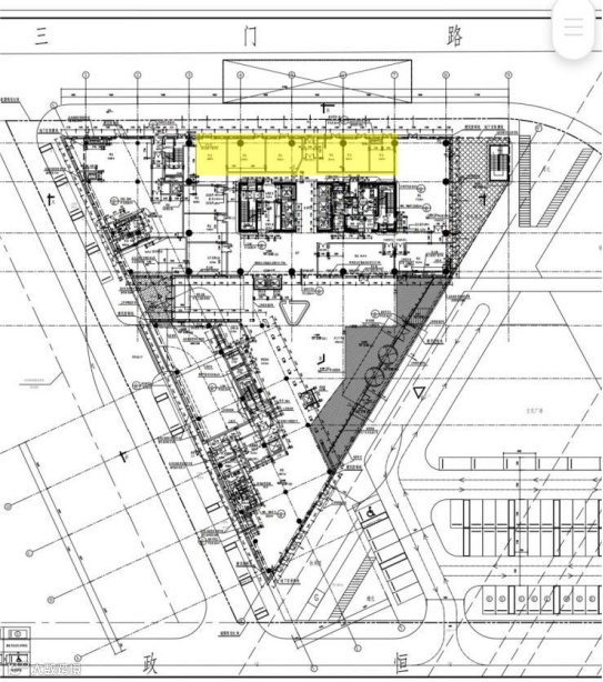
图为创智国际广场A座商业部分平面图
项目简介
本项目位于上海市杨浦区杨浦区淞沪路657号,杨浦五角场(钻石空中连廊)核心位置,紧邻10号线三门路地铁站。东临淞沪路,南临政恒路,西临数字公园,北临三门路,A楼B楼坐落在政恒路两侧对望。其所在街区为商业金融和商务办公用地,周边城市功能配套设施完善,商业、 酒店、会议、餐饮、居住和公共设施等均已成型。
类型:甲级写字楼底商
层高:6.3米
空调:中央空调
停车信息:地下停车位79个
项目明细
联系人:
王欢欢 13795492278
如有意向可扫描下方二维码预留报名信息
现场查看招租详情
左右滑动查看更多项目图片
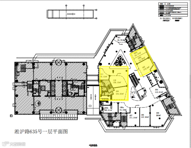
图为创智国际广场B座1楼商业平面图
项目简介
本项目位于上海市杨浦区杨浦区淞沪路653号,杨浦五角场(钻石空中连廊)核心位置,紧邻10号线三门路地铁站。东临淞沪路,南临政恒路,西临数字公园,北临三门路,A楼B楼坐落在政恒路两侧对望。其所在街区为商业金融和商务办公用地,周边城市功能配套设施完善,商业、 酒店、会议、餐饮、居住和公共设施等均已成型。
类型:甲级写字楼裙楼商业
层高:6米
电梯:2部客梯1部货梯
楼层:4层
空调:中央空调
停车信息:地下车位217个
项目明细
联系人:
王欢欢 13795492278
如有意向可扫描下方二维码预留报名信息
现场查看招租详情
左右滑动查看更多项目图片
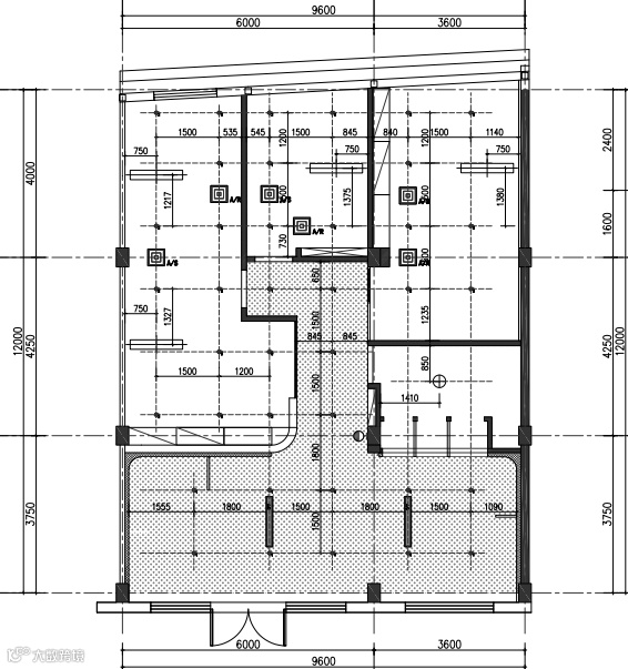
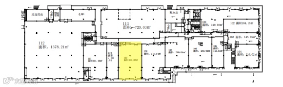
图为创智源平面图
项目简介
创智源坐落于上海市杨浦区政民路120号,地处大学路街区核心位置,是连接太平洋森活天地与大学路的重要纽带。其优越的地理位置能够有效引导大学路、太平洋森活及五角场区域的人流,形成良好的商业联动效应。
层高:地上一层:梁底3.4米,板底4.15米;地下一层:梁底2.8米,板底4.15米
电梯:1部
设备:8台新风机
停车信息:地下停车位72个
项目明细
联系人:
王欢欢 13795492278
如有意向可扫描下方二维码预留报名信息
现场查看招租详情
图为创谷汇南二楼平面图
项目简介
长阳创谷,位于上海市杨浦区长阳路1687号,占地11万平方米,规划总建筑面积约35万平方米。紧邻12号线宁国路地铁站,区位优越,交通便利。已成为上海中心城区专为知识工作者打造的Campus创新创业街区,现已吸引近300家企业和上万名知识工作者。
层高:5.5米
电梯:2部
楼层:2层
空调:VRV
停车信息:地面停车场300个
项目明细
联系人:
陈玥宇 13701677099
如有意向可扫描下方二维码预留报名信息
现场查看招租详情
图为长阳创谷二期部分商业平面图
项目简介
长阳创谷,位于上海市杨浦区长阳路1687号,占地11万平方米,规划总建筑面积约35万平方米。紧邻12号线宁国路地铁站,区位优越,交通便利。已成为上海中心城区专为知识工作者打造的Campus创新创业街区,现已吸引近300家企业和上万名知识工作者。
层高:2.7-3.5米
电梯:1号楼4部、2号楼2部、5号楼1部、6号楼无电梯、7号楼1部
楼层:1号楼共4层、2号楼共6层、5号楼共1层、6号楼共2层、7号楼共2层
空调:VRV
停车信息:地面停车位300个
项目明细
联系方式:
招商部 55783138
如有意向可扫描下方二维码预留报名信息
现场查看招租详情
办公载体资源
左右滑动查看更多项目图片
图为创智汇部分办公平面图
项目简介
创智汇项目位于杨浦区五角场核心区域,紧邻地铁五角场交通枢纽,交通便利,区位优越。附近有合生汇、百联又一城等商业。项目前身为上海拖拉机内燃机厂北部厂区,是国定东路开放式的创新创业街区地标建筑,保留了老厂房的历史元素,强化老厂房建筑特色,体现工业城市文脉的延续,注入全新的创意产业、新兴产业等新鲜血液,连接创智天地和公共实训基地,为大众创业增添沃土。
层高:2.85-3.78米
电梯:1号楼共2部、2号楼共4部、3号楼共4部
楼层:1号楼共5层、2号楼共5层、3号楼共7层
空调:VRV
停车信息:地面车位45个、机械车库停车位262个
项目明细
联系人:
杨敏燕 13701878535
如有意向可扫描下方二维码预留报名信息
现场查看招租详情
左右滑动查看更多项目图片
项目简介
本项⽬地处创智天地园区,新江湾城办公楼群的核⼼板块,位于政⽴路国通路⼝。南靠复旦管理学院和⼤学路特⾊商业街,⻄近新江湾城国安路,北靠新江湾城⼩五⻆场办公楼群及数字公园。周边交通便利,步⾏10分钟可抵达10号线三⻔路站,15分钟可抵达18号线财经⼤学站,附近多条公交线路可抵达全市各区域。项⽬周边商业配套⼗分⻬全。市属特⾊商业街⼤学路也近在咫尺,步⾏5分钟即可抵达。创智天地园区内共有近3100家企业,超过7万⼈在此办公学习,该区域属于杨浦区重点打造的办公区域。
层高:4米
电梯:3部客梯1部货梯
楼层:14层
空调:VRV
停车信息:地下停车位292个
项目明细
联系人:
王欢欢 13795492278
如有意向可扫描下方二维码预留报名信息
现场查看招租详情
左右滑动查看更多项目图片
项目简介
创智天地企业中心位于上海市杨浦五角场核心区域,紧邻地铁10号线江湾体育场站枢纽,交通便利,区位优越。附近有大学路、万达广场、百联又一城、太平洋森活广场等商业,提供丰富的办公、研发、学习、休闲及文化设施。
层高:3.8米
电梯:3部客梯1部货梯
楼层:12层
空调:VRV
停车信息:地下停车位229个
项目明细
联系人:
邓惠芳13381536908
如有意向可扫描下方二维码预留报名信息
现场查看招租详情
左右滑动查看更多项目图片
图为云工场部分办公平面图
项目简介
本项目位于周家嘴路3700号,与长阳创谷,上海理工大学, 复旦软件园等形成产学研联动,积极打造成为具有较大影响力的独角兽科创园区。项目南至规划顺平路、西至规划沙岭路、北至周家嘴路,总用地面积约1.08万平方米,总建筑面积约4.87万平方米。紧邻地铁12线隆昌路站,七巧国,交通便利。
层高:4.5米
电梯:4部
楼层:9层(名义楼层10层,跳4层)
空调:VRV
停车信息:有地下停车位248个
项目明细
联系人:
邵一梅 15618689246
如有意向可扫描下方二维码预留报名信息
现场查看招租详情
左右滑动查看更多项目图片
图为长阳创谷三期办公平面图
项目简介
长阳创谷,位于上海市杨浦区长阳路1687号,占地11万平方米,规划总建筑面积约35万平方米。紧邻12号线宁国路地铁站,区位优越,交通便利。已成为上海中心城区专为知识工作者打造的Campus创新创业街区,现已吸引近300家企业和上万名知识工作者。
层高:3.2-6米
电梯:2-3部
楼层:1-5层
空调:VRV
停车信息:地面停车位300个
项目明细
联系人:
陈玥宇 55235000
如有意向可扫描下方二维码预留报名信息
现场查看招租详情
左右滑动查看更多项目图片
项目简介
长阳创谷,位于上海市杨浦区长阳路1687号,占地11万平方米,规划总建筑面积约35万平方米。紧邻12号线宁国路地铁站,区位优越,交通便利。已成为上海中心城区专为知识工作者打造的Campus创新创业街区,现已吸引近300家企业和上万名知识工作者。
层高:5.5米
电梯:2部
楼层:2层
空调:VRV
停车信息:地面停车位300个
项目明细
联系人:
陈玥宇 13701677099
如有意向可扫描下方二维码预留报名信息
现场查看招租详情
左右滑动查看更多项目图片
项目简介
长阳创谷,位于上海市杨浦区长阳路1687号,占地11万平方米,规划总建筑面积约35万平方米。紧邻12号线宁国路地铁站,区位优越,交通便利。已成为上海中心城区专为知识工作者打造的Campus创新创业街区,现已吸引近300家企业和上万名知识工作者。
层高:2.7-3.5米
电梯:1号楼4部、2号楼2部、5号楼5部、6号楼无电梯、7号楼1部
楼层:1号楼共4层、2号楼共6层、5号楼共5层、6号楼共2层、7号楼共2层
空调:VRV
停车信息:地面停车位300个
项目明细
联系方式:
招商部 55783138
如有意向可扫描下方二维码预留报名信息
现场查看招租详情
![]()
*主办部门:运营服务中心
长按二维码关注更多科创动态
往期推荐
点赞
收藏
分享

