
建筑师:手塚建筑研究所
地址:南三陆,原野区,宫城县,日本
建筑面积:748.0 平方米
项目年份:2016
摄影师:Kida Katsushida, FOTOTECA, Tezuka Architects
曾经的朝日幼儿园被2011年3月11日的东日本大地震( Tohoku earthquake )摧毁了。由日本的联合国儿童基金会投资,手塚建筑设计并重建了朝日幼儿园。新设计的选址在一块高地上,并利用了由于2011年海啸被盐水淹死的大树作为建筑材料。这些树对当地的村民很有象征意义,因为这些树曾被种在通往大雄寺庙的路上。这个寺庙座落在一个山丘上,长久以来,这个山丘的高度刚好能够避过海啸的侵袭。很多村民能够幸存下来就是因为寺庙的僧侣曾教过他们要去寺庙逃生。

这个项目的目标之一就是希望传达一种思想:树不仅仅是建造这个学校的建筑材料,更是村民的精神之所。重新利用死掉的树来为村庄的下一代创建一个幼儿园——这更加坚定了东北地区(Tohoku )或者说整个日本的信心与希望。
建筑的每一个部分,包括结构、地板、扶手,都取自在1611年海啸(也就是2011年海啸的400年前)种植的树木。建筑采用了传统的细木工艺,不需任何的金属连接,因为这些古老的技法让日本的传统建筑得以存活了超过1300年的历史。有一个断面尺寸为600mm x 600mm的巨型柱子就像之前立在地上那样立在建筑上。这个项目向那些有可能在之后的400年中遭遇海啸的儿童传递了一种信息。


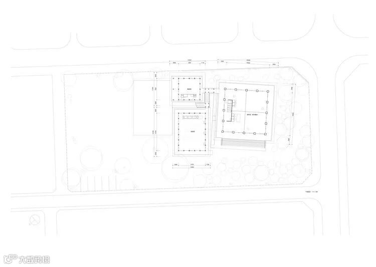
二期建设
地震已经过去五年了,又有更多的儿童回到了南三陆町。建筑的第一期已经不能满足使用需求,幼儿园决定尽快开动第二期建设。
可惜的是,地块周边的环境已经完全改变了。震后修复带来了很多轻率的大尺度的开发建设。曾经苍翠繁茂的景观已经不复存在了。山丘的大部分被夷平,只有周边一些花园区域保留了原本的高度。项目变得像一个城堡景观,伫立在平坦的住宅区中。
二期的建设很像山坡上的一个寺庙和塔。这是一种有意识的、刻意的结果,因为大雄寺庙是这个幼儿园的“母亲”。此时,场地多出了三个有深屋檐的建筑,这些建筑通过一个长楼梯相连。项目一期的花园仍保留在山坡坡顶。
因为之前的行道树已经被利用完了,项目不可能再有新的巨大的立柱了。因此从经济的角度考虑,项目决定使用标准尺寸的建筑材料。但是,向400年后的儿童传递的信息仍然存在。所有的结构连接仍然使用传统的互扣方式保证建筑可以屹立很长的时间。

众图互联
NO.1
人工智能 · 互联网 · 平台型 · 设计院
众图互联是国内首家互联网建筑设计院
将人工智能、大数据、云计算、互联网等技术与建筑设计深度融合;
打破传统设计模式,为业主提供高效服务。
以“众方案、众出图、众审图”为特点,
结合在线协同设计、专家点评+大众点评配置;
快速集成方案图、施工图,打造一个全新的建筑设计生态系统。
众方案设计 众图学院
人工智能产品 协同设计系统
NO.2
汇聚全球优秀建筑设计精英
众图互联拥有超过5000名建筑方案设计师,能在极短时间内,为您提供丰富的学校、医院、旧城改造、创意园区、人才公寓、图书馆等不同建筑类型的优秀方案,让您能轻松获取心仪的方案。
众图互联拥有超过1000名建筑设计领域的行业专家,通过线上线下结合的方式,对建筑设计方案提供专业的评审意见,充分保障交付给您的方案质量。
学校 医院 住宅公寓
创意园区 旧城改造 图书馆
NO.3
众图互联官方热线:
400-900-2133
更多精彩内容请关注众图互联公众号


