
© 谭冰
右岸文化艺术中心项目位于常德市,桃花源记的发源地,占地面积1600平方米。右岸文化艺术中心,是右岸城”艺术介入,城市更新”的重要实践,以艺术介入城市发展,以美学介入未来生活,构建滋养城市文明的卓越公共艺术空间,提升城市品牌,使之成为世界常德的人文IP,成为世界了解东方的新“窗口”和凝聚湘西北人文情怀“纽带”。

场地现状

场地位置
我们心中理想的艺术空间应有更多公共性、灵活性和参与性,替代封闭性与固态静止的传统美术馆模式。未来美术馆不单单再是成功艺术家呈现辉煌的圣殿,而是激发公众和艺术作品及艺术家互动、交流的艺术场所。一些灵活可变,功能多元,留白的空间,却可以激发艺术家和公众的创作激情,为特定环境和场地而创作,让艺术品,公众和沅水艺术中心融为一体。形成常德在保留自有的人文生态的同时,更具有独特的精神气质。

© 谭冰
本案建筑设计概念以常德之光为主题,构成一个城市光之舞台,光是每人所向往的,而通过多元的建筑空间呈现一个丰富文化生活的舞台。

© 谭冰
当代艺术的一个显著特征是其表现形式的多元化,与这种特征相对应的空间在沅水美术馆不仅塑造了传统美术馆中充分高度的经典空间,更有大小不一,尺度各异,层高显著不同的空间相互立体构成,大空间、中空间、小空间、书院空间、黑盒子(多功能表演,会议,展览空间)去应对不同艺术形式的需求。

各层轴测图

分析图
上行美术馆——没有墙体的垂直艺术馆
空间艺术与人文生活的复合美学形态交融,是本土艺文的对话现场,也是常德与世界艺术同步的交叉点。

© 谭冰

© 谭冰
© 谭冰

© 谭冰
自心书院——常德人文的修心之地
阅读是为了内观最真实的自心本性。自心书院为市民提供修身自省的空间,为城市点一盏不灭的灯。

© 谭冰

© 谭冰

© 谭冰
有余剧场——永不落幕的艺术日常
生活与艺术之间的纽带,并非形而上的幻想,而是眼前的真实场景,旨在市民的日常都充满艺术张力。

© 谭冰
空中花园——见证未来城市的发展,展望美好未来的窗口

© 谭冰

© 谭冰
艺术中心的设计起点源于市民对常德美丽城市与人民的情怀与追求,希望有一个既能在当地呈现与提高艺术文化精神,同时又高度开放的好场所与市民大众能自由参与这独特的精神心灵空间。

© 谭冰
将老城记忆带入新城
老城即将消失,新城势必崛起,结合现状空间及未来规划,留住老城的“记忆”,为新城注入“历史”。
老城立面
建筑体量直接体现了立体多元空间的叠加,我们从沅江荡漾起伏的水面汲取灵感,透过金属表皮折面的不同反光和透光的处理,白天黑夜在人逐渐走近建筑的过程中,建筑的表面也在进行着微妙而有趣的虚实变化,形成步移景迁,波光粼粼的视觉效果。

立面细节

© 谭冰
希望通过一个多元的建筑空间呈现一个丰富文化生活的心灵场所,以创造更多的公共性、灵活性和参与性的艺术空间,去应对不同艺术形式的需求,而且更是一个充满阳光与立体庭院的无墙展示体验。外立面更启发于棚户的肌理,形成一个有光影与质感的场所记忆的延伸。
© 谭冰
© 谭冰

© 谭冰
© 谭冰

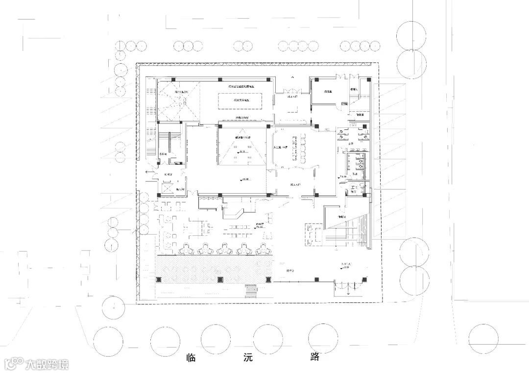
首层平面

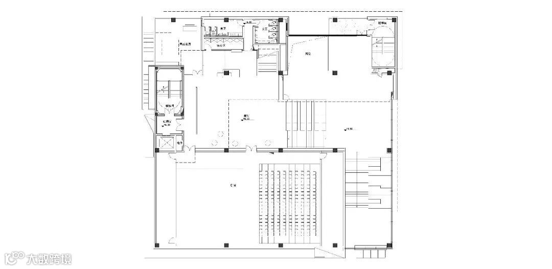
二层平面

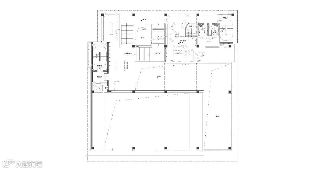
三层平面

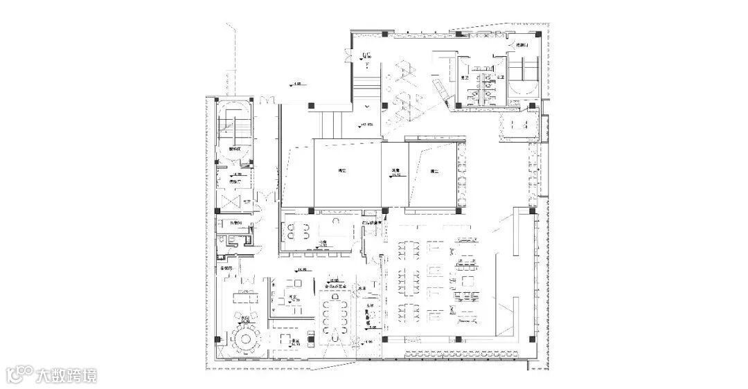
四层平面

剖面图
建筑师:香港汇创国际建筑设计有限公司
地址:临沅路北,鼎城区,常德,湖南,中国
设计团队:吕达文、蔡晖、苏晓媚、蔡静、潘兆峰、何振峰、陈海隆、贺永霞、蔡超、杨怡嘉、宋东珠、郭颖文
建筑面积:3800.0 m2
项目年份:2017
摄影师:谭冰
图文来源: ArchDaily


