
© 张广源
项目描述来自建筑师:
康巴艺术中心是为遭受玉树地震的结古镇所作震后重建工程,汇集了原玉树州的剧场、剧团、文化馆和读书馆等多种功能。
© 张广源
© 张广源
© 关飞

© 张广源
康巴艺术中心的总体规划强调与原有城市环境的协调融合,总体布局自由松散但错落有致,强调与塔尔寺、唐蕃古道商业街、格萨尔广场等周边城市元素的对位呼应。从建筑的密度上与传统城市肌理相吻合,步行街道的尺度也尽力与唐蕃古道商业街相协调。

模型图
© 张广源
© 张广源

© 张广源
康巴艺术中心建筑的形态,着意表现建筑与周围环境的有机融合的聚落形态。将大剧院的功能化整为零,打散成多个与周边城市尺度相协调的方形体量,形成了一种在剖面上起伏,在平面上错动的体型特征。

© 关飞
© 关飞
© 张广源
© 曾瑞
这种特征表现出了藏式建筑顺应山势地形错落有致的特点,大小不一体块的高低变化,形成了丰富的立面和屋顶视觉效果。

© 张广源
康巴艺术中心的立面造型,特别是开窗组织随层数的上升逐渐加密,在顶层空间采用连续带型窗。

© 张广源
热情奔放的康巴人喜欢色彩。色彩也是康巴艺术中心的主题,这些丰富的色彩元素不仅表现在建筑外窗户的色调上,也体现在室内设计的元素上。

© 张广源

© 曾瑞

© 张广源

© 曾瑞

© 张广源

© 张广源
建筑装饰材料应蕴涵康巴藏区建筑粗犷、纯朴的感觉,应具有强烈的整体性。经过反复比选,建筑主体外墙装饰材料采用不同模数的混凝土空心砌块砖通过钢筋拉结自由叠砌,表现出与传统石材垒砌墙面在构造方面的契合:一方面再现了藏式建筑粗矿的表面肌理;另一方面减轻了外墙材料的自重和构造难度,同时也降低了造价。

© 曾瑞

© 曾瑞

© 曾瑞

© 张广源
© 张广源

轴剖图

图书馆轴测图

公共活动平台轴测图
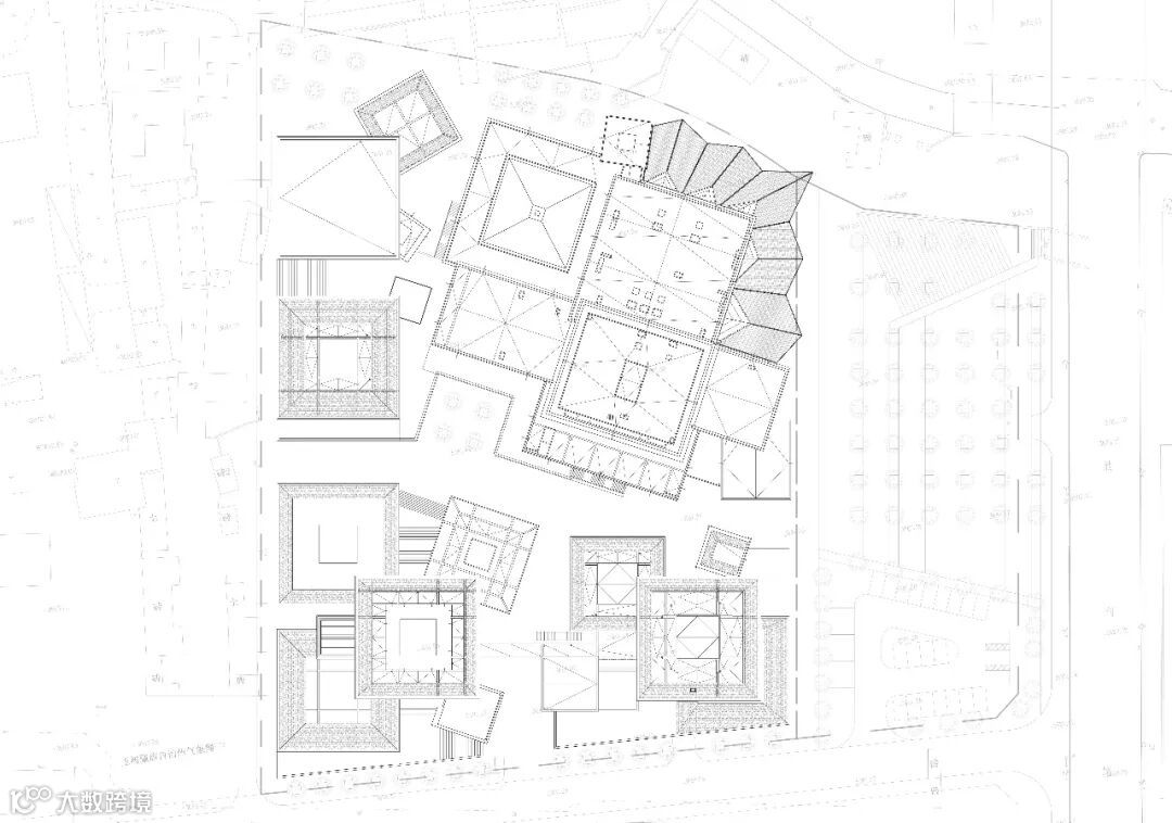
总平面图
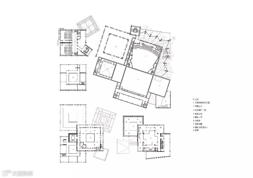
一层平面图
二层平面图
三层平面图

剧场侧厅剖面图

图书馆剖面图

墙身节点图

砌块砖砌法详图
建筑师:中国建筑设计研究院本土设计研究中心
地址:中国,青海,玉树,扎西大同北巷14号
主创建筑师:崔愷,关飞
设计团队:曾瑞,董元铮,高凡
建筑面积:20610.0 平方米
项目年份:2014
摄影师:张广源、曾瑞、关飞
图文来源|archdaily


