文章来源:青年建筑

项目地点:上海市长宁区
设计单位:KPF建筑事务所
主楼地上建筑面积:70313㎡(38+1层 )
辅楼地上建筑面积:35163㎡(12层 )

古北SOHO是SOHO中国在上海长宁区的第四个项目。项目于2014年开始建设,目前即将全面完工,对社会开放。
优越的地理环境


△ 项目北临新虹桥中心绿地,南近古北住宅区
项目坐落于上海古北国际商务区的核心区域,北边有广阔的新虹桥中心绿地,南边是古北住宅区。附近是延安高架,内环高架。20分钟车程可直达虹桥交通枢纽。
“无尽之柱”经典再现

△ 经典雕塑作品“无尽之柱”
主体建筑体量的概念从罗马尼亚雕塑大师康斯坦丁·布朗库西所打造的地标建筑“无尽之柱”汲取了灵感。
“无尽之柱”是当代雕塑最具诗意与哲理的标竿,以六边形为基本单位,不断重复延伸。

△ 落成后的古北SOHO
建筑立面充分展现了“无尽之柱”的纯粹和完美比例。主楼由38层逐次放大或收分的方形平面组成。每个具有雕塑感的朝向均有4个层叠的体量,以及8个倾斜立面构成。
利用无休无止的简单重复,使人的意念净化集中。让人们摒除各种诱惑或烦扰。把人们的视线和哀思引向无尽的苍穹,将生命的能量推向天空。
这种简洁而非常有利的独特形态可被视为建筑的经典设计。
AIA设计奖得主亲自操刀

△ 总设计师James von Klemperer

△ 北京华贸中心
这座建筑由全球知名建筑事务所KPF的设计师James von Klemperer担任总设计,建成后将成为长宁区第一高楼。
James von Klemperer在上海有20多年的工作经验,是KPF的总裁兼设计负责人。
James von Klemperer的设计被公认为是高效的程序与冒险的形式的结合。他在华盛顿特区的彼得森国际经济研究所、首尔的东部湾金融中心、洛杉矶的Park Fifth residential project以及天津的Riverside 66 urban market都获得了AIA设计奖。
简洁而不简单的建筑设计

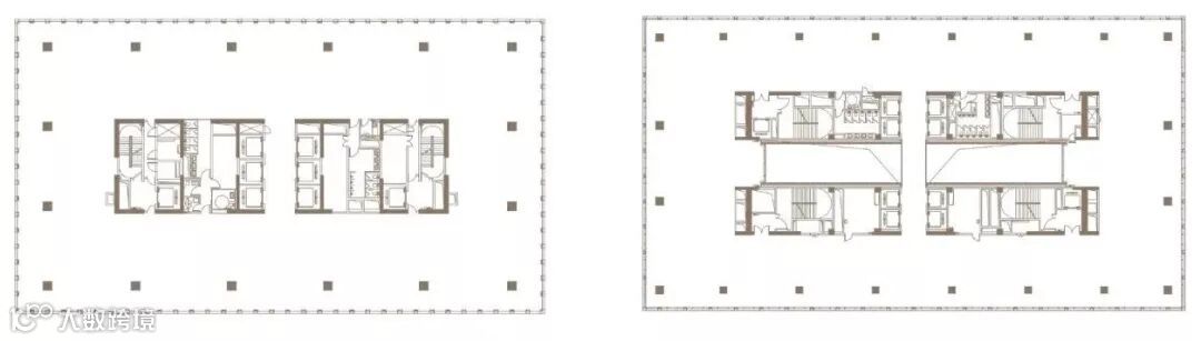
△ 主楼及辅楼

△ 主楼标准层及辅楼标准层
整个项目由170M高主楼和55M高辅楼组成。其中,主楼38层,地上建筑面积70,313㎡。辅楼12层,地上建筑面积35,163㎡。主楼和辅楼之间以4层高的空中走廊进行连接。
辅楼在形体造型上是对主楼的补充。通过向下倾斜的立面,将周围的街区景观投射在立面幕墙玻璃上,使建筑能够融入到周边环境之中。

△ 从公园方向看的项目立面
在建筑体量表现出无尽以及永恒特点的同时,通过基于模数的重复及连续的网格,表现出与自然界的蜂巢或规则结晶的晶体所一致的构造特征。由于采用不同的模数及不同轮廓的框架的变化,主楼及辅楼立面呈现出各自的秩序和特点,同时又在整体上相互呼应。

△ 转换柱网形成的密实表面
利用一系列转换柱网形成的密集墙表面,创造了一个光影之下较为密实的外墙表面,降低了玻璃的眩光,有效起到遮阳、减小玻璃眩光的作用,并创造了城市的坚固感。

△ 联系主楼与辅楼之间的玻璃体块
主楼与辅楼之间的玻璃体块,创造了独特的室内外空间体验,同时采用一种虚化的建筑手法将两栋楼联系在一起。
独具匠心的场地规划

△ 巧妙设计的场景绿化
在建筑的基底,场地设计力求支持加强和周边地块的联系,通过有策略地设置下沉广场以及场地内绿化,连接新虹桥中心绿地以及玛瑙路对面的高岛屋。

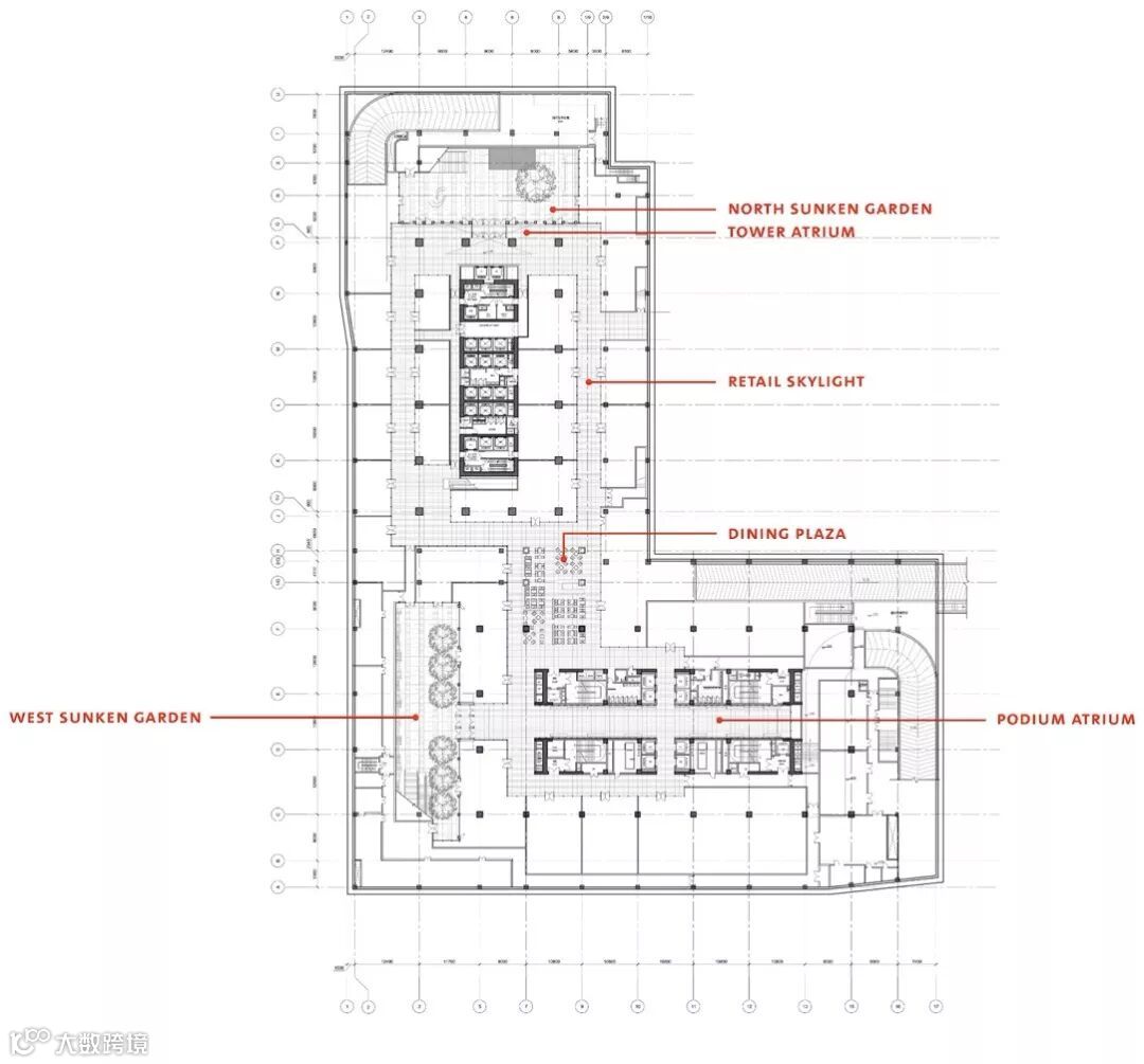
△ 场地平面

△ 场地功能分区
场地平面采用与建筑立面一样的错位布置的网格模数。每个模数网格被重新定义转化,成为承载不同功能的不同类型的网格。有些网格成为绿化、成为水池,有些成为地下室天窗,有些更成为地库排风扇。
尽管不同场地网络功能、材质差异较大,但相同的模数概念使得所有元素相互协调并成为有机整体。
低调雅奢的室内设计

△ 10M通高大堂

△ 大堂局部

△ 主楼一层平面

△ 辅楼一层平面
面向玛瑙路的10m通高的塔楼大堂作为办公人员和访客的主要入口,其室内设计极具雕塑感。
电梯厅核心筒以表面带有凹凸肌理的铜板材料包裹,并被分割成相同模数,不同起伏的板块,体现焦点空间丰富的艺术感。而其余的空间则追求与外立面色调的统一与协调,装饰以香槟金色的金属线条、白色大理石、透明软膜天花等低调的材料,突出低调雅奢的特性。

△ 辅楼屋顶的空中花园
辅楼顶层设计了一个精美的空中花园,充分利用俯瞰公园的中央位置优势,全面挖掘公园景观的三维利用。
敞亮现代的样板间



△ 样板间展示的办公区
样板间展示的内部装饰,沿袭了SOHO中国一贯简洁优雅的现代风格。
大理石与木材质的巧妙融合,建立起新感官的全貌。在白色基调带来的素雅明亮的同时,恰到好处的木色亦显得更加柔软温和。
SOHO中国高标准交付




△ SOHO中国的高交付标准
传承了SOHO中国一贯的高交付标准,古北SOHO以“美国LEED金级“、“国家级绿色二星技术标准”建造。除了追求整栋建筑的节能、保温和可持续等商务理念的实践,更将绿色节能运用到每一个细节。
4.05m的标准层层高,留出底部130mm架空地板用于管线铺设。1600㎡至3200㎡不等的标准层面积,方整的平面形态,便于后期不同企业的工作需求和划分。
匠心打造经典之作

△ 中空内廊
建筑设计与艺术创作的交融,为建筑注入了艺术与自然的非凡创意。
历经32年,作为古北新城的收官之作,古北SOHO于今年年底即将竣工,日前已经开始招租。
· END ·
30万建筑师正在关注:



