
来源:AssBook设计食堂(ID:AssBookGroup)
虽然很多家庭都有土地,但大多面积很小、形状也很奇葩,许多房子就是在夹缝中求生存。
这是东京当初高速城市化的代价,久而久之,也成了一种特色。
他们不设计高逼格的“大建筑”,却常年为老百姓设计“小住宅”。
在1992年,他们成立了一家叫 Atelier Bow-Wow的小型设计公司。
对于小型住宅的改造,简直可以用“魔法师”来形容他们。
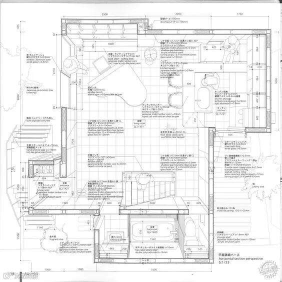
委托人是两家住户,他们共同拥有只有64㎡的一块条形基地。
北面住户没法得到南向光照,南面住户的通风也不好,基本上没法形成真正的“穿堂风”。
“犬吠”经过思考后,提出了一个“共享”的理念来解决这个问题。
前提两家人需要都做出一定的让步,每户各减少一部分建筑面积。
将一层空间定义为两家住宅里的“公共区域”,彼此共用厨房、卫生间(厨房设置在北楼、卫生间在南楼)。
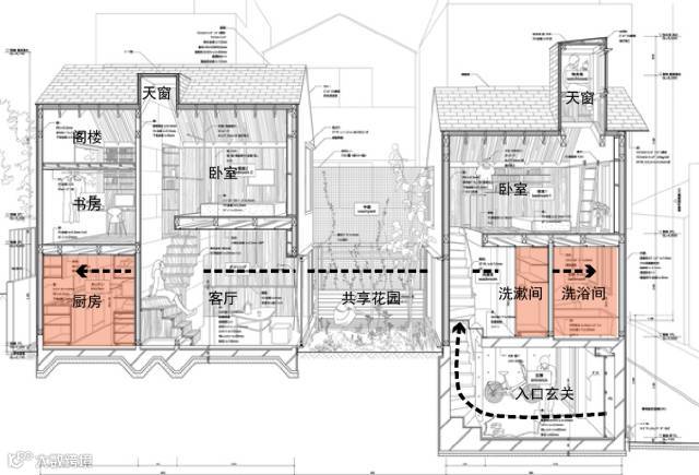
为了准确、形象地将这个想法告诉给两家住户,建筑师根据设计绘制了一张神奇的剖面。
通过这个剖面将一幕幕生活的场景如实地描绘出来,即使普通人也能看懂。
这个充满互动、共享的设计理念,打动了两家住户,房屋很快便完成了施工。
“犬吠”还考虑到雨雪天气带来的不便,又给两栋楼之间增加了带玻璃顶的连廊。
即使在二层小屋工作休息,也能一眼就看到绿色的世界。
让两家人都过上体面和舒适的生活,这就是设计的力量。
他们是“剖面的戏剧大师”,几乎每个剖面房间里都用人的形象来表达尺度和功能。
从他们如同素描般写实的剖面,可见设计的细致和深厚功力。
👇House and Atelier Bow Wow
放弃贵族的与大众的,美与丑,善与恶,或建筑与土木等区别,全部一视同仁。
我们觉得这样的观察方式才是东京都市空间这样由各式各样构造体形成的巨大集合一直需要的。
他们的设计业务,也慢慢从单纯的小住宅设计开始向外延伸。
越来越多的建筑,从他们的神奇剖面图纸,变成了现实。
不久前,他们就和无印良品合作,一起设计了“梯田办公室”。
他们希望通过两座亭子式的“住宅”,实现在城市与农村两点居住的构想。
这种 “tanada梯田办公室” 深受日本农村传统小屋的影响。

まちやゲストハウス│Machiya Guest House




他们没有选择逃避,依然选择了为最艰难的蜗居族设计房子。
在他们人看来,小屋和宠物一样,是家庭的 一个成员。
众图AI技术亮相粤港澳建筑结构创新技术高峰论坛,引发行业关注热潮
