点击题目下方众图互联,即可关注我们!
茫茫人海中,为防大家走失,请大家
点击上方 “众图互联 ” → 点击右上角“...” → 点选“设为星标 ★ ”
为众图互联加上星标,就再也不会迷路啦!
又到了每周作品赏析时间,今天小编给大家带来了平西小学扩建及外立面改造概念性规划设计项目的一个优秀方案,欢迎大家欣赏并留言讨论!
项目名称:平西小学扩建及外立面改造概念性规划设计
建设地点:广东省佛山市
设计师(团队):众图互联 · 小匠人
用地规模:30.73亩
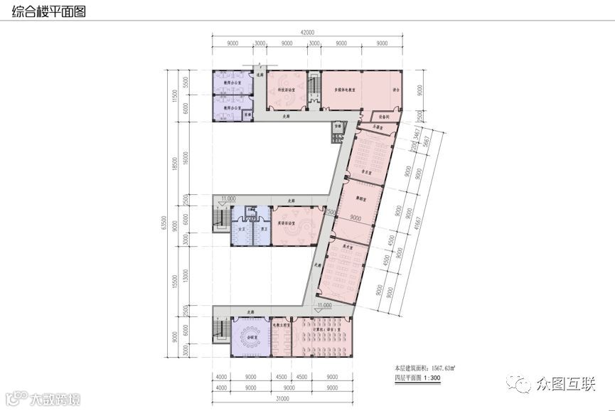
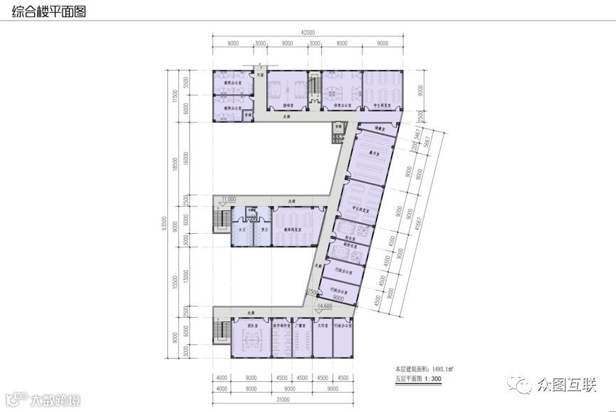
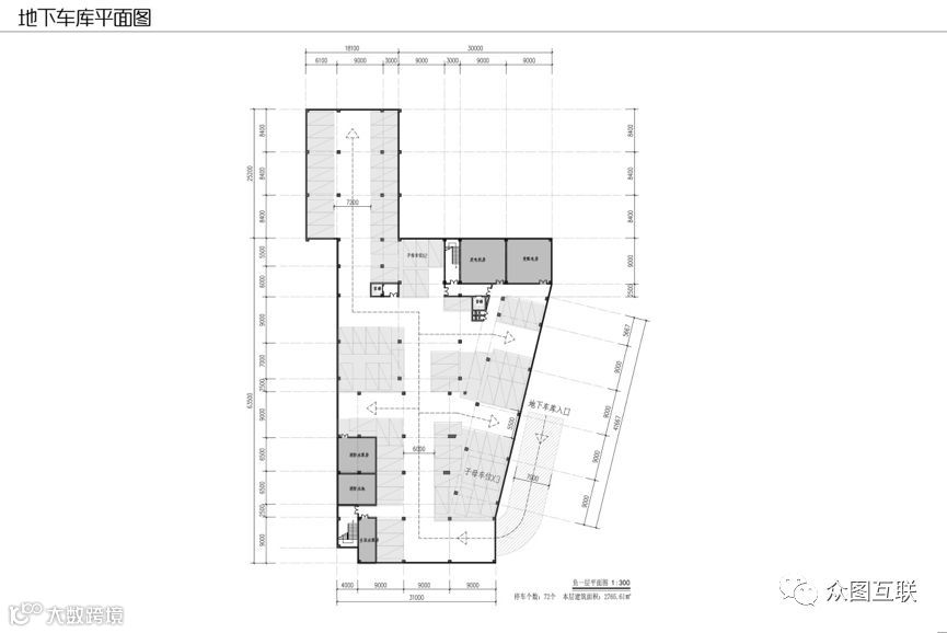
总建筑面积:17842.3平方米
班数:42班

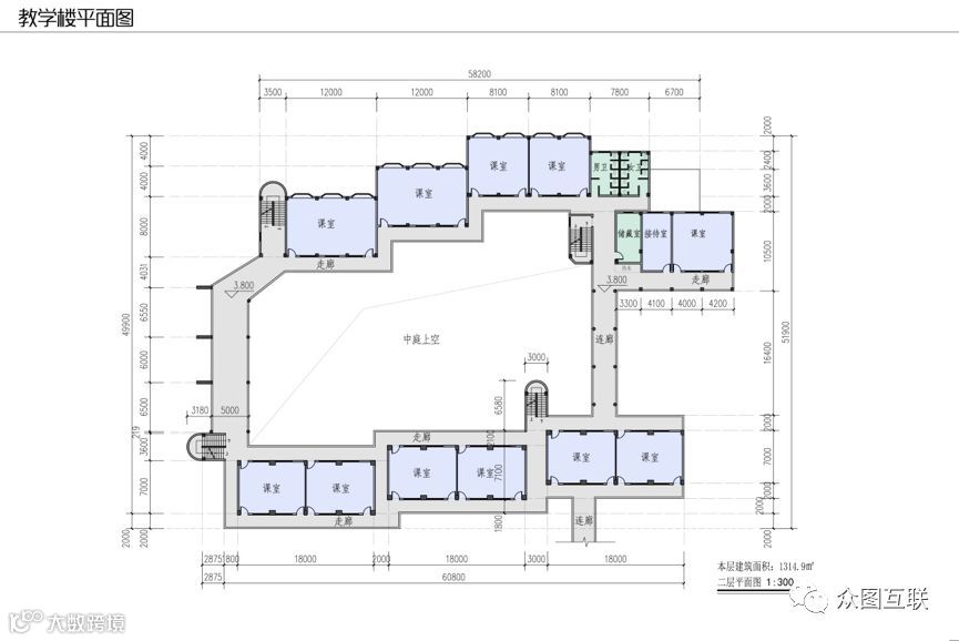
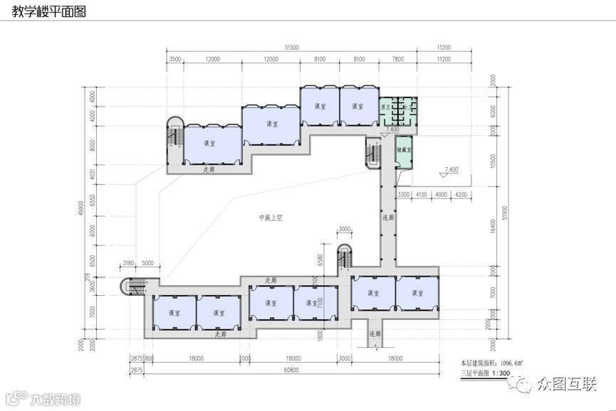
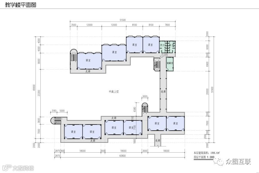
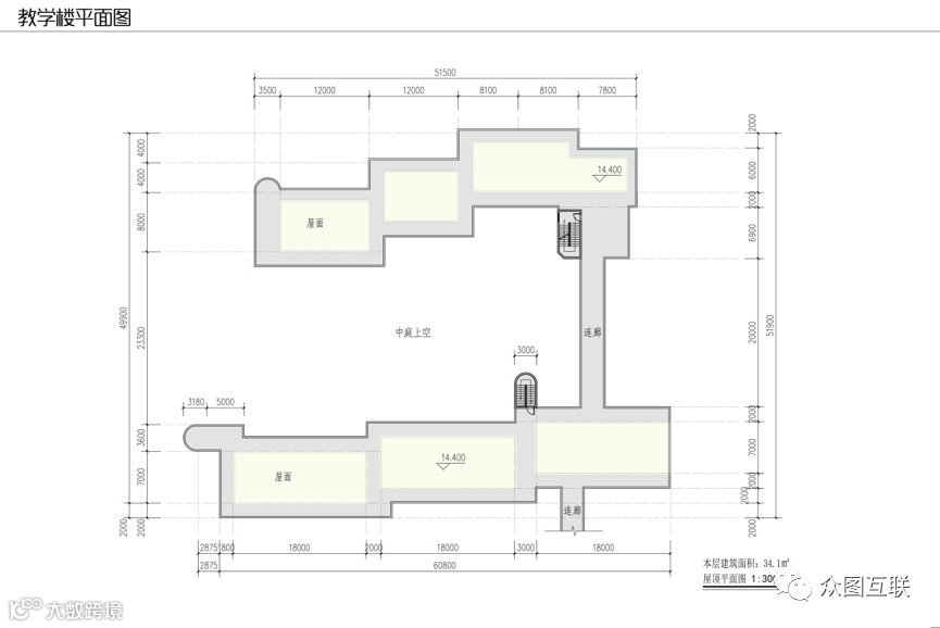
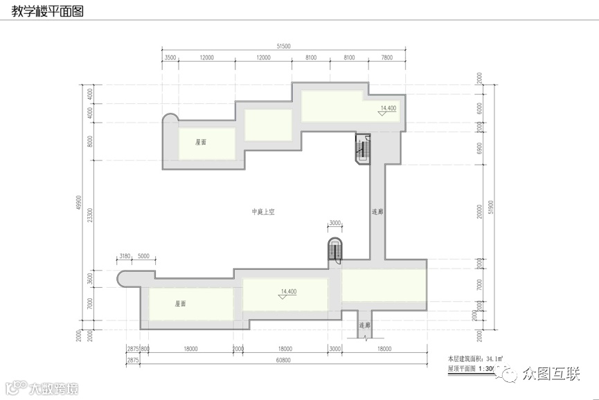
△平西小学扩建示意图
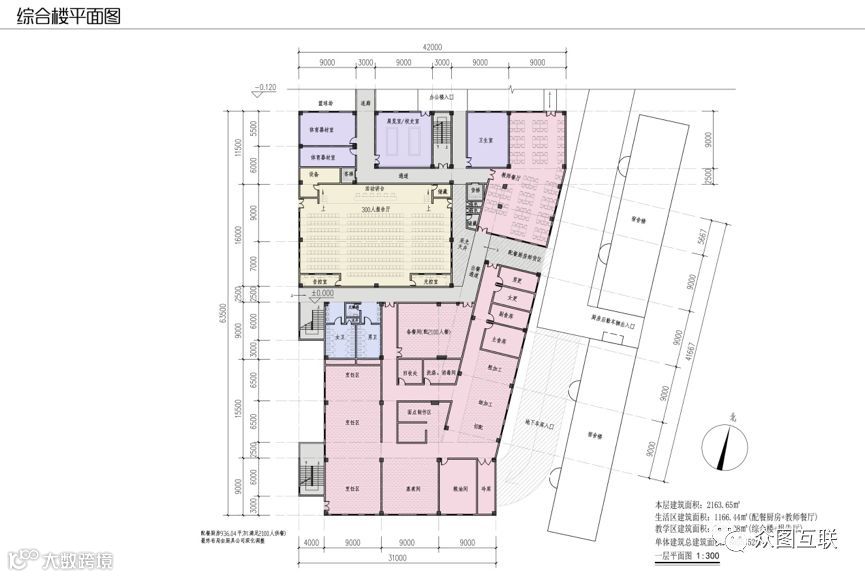
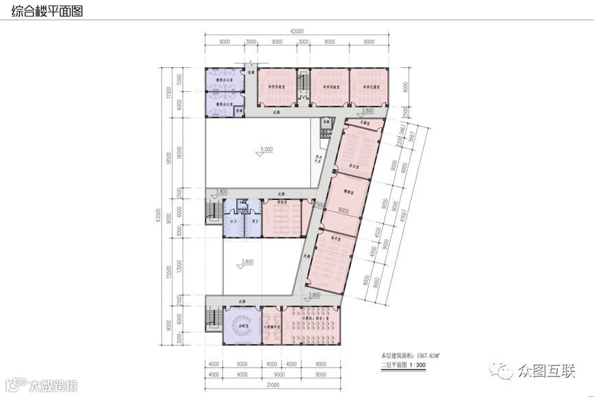
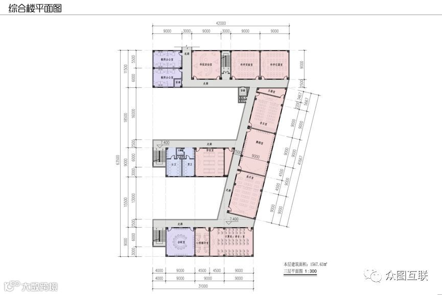
整个校园通过建筑、连廊和道路系统将校园规划为类似“传统院落”的布局,新建综合楼与教学楼相呼应形成半开放式中庭空间,使校园空间更加动感和多变,为师生提供更多交流的场所。
在整个设计中,我们希望通过对新建综合楼的设计以及对教学楼、体育馆的翻新改造,构建一个空间效果良好、视野开敞、新旧建筑协调统一且符合校方想法的现代化校园,为师生们创造一个高质量的学习生活环境和高层次的文化氛围,同时也为该区域创造一个建筑亮点,受广大师生的欢迎。

△总平面图

△鸟瞰图1

△鸟瞰图2
在规划过程中,对于地块本身的分析使用以及新建建筑与现状建筑的关系成为我们分析的重要内容,经过多次比较后,新建综合楼结合现状教学楼的庭院形式且顺应现状建筑平行布置,使校园整体和谐感与空间感更为强烈。结合校园现状道路进行规划设计,将校园主入口设置在地块的北侧,次入口设置在地块的东侧,且保留现状垃圾场出入口以及备餐厨房后勤出入口,校园内设计人车分流系统,保障师生人生安全,防止意外发生。
通过连廊连接教学楼与综合楼,确立连廊为中轴线,使整个校园有效的分为教学区、教学办公综合区、生活区、室内运动区、室外体育运动区,整个规划结构明确清晰、脉络孙畅,各组成部分之间疏密有致、联系便利。

△主入口改造效果

△教学楼入口改造效果

△教学楼立面改造效果

△体育馆改造效果

△综合楼低点透视图

△运动场低点透视图
由于此项目为旧改项目,校园用地紧张,教学区、生活区、运动区已确立不能改变,新建建筑为融合了教学、生活、办公功能的综合楼,故校园整体的功能分区基本沿用现状。

△功能分区
整个校园采用人车分流的交通系统,由于东边规划路短时间不会建筑设,故沿用现状北边的入口作为主要的行车出入口,方便车辆出入,东边原配餐厨房的位置设置为校园次入口,保留现状垃圾场出入口以及配餐厨房出入口,避免对内部人员及教学活动造成影响。翻新主入口旁的家长接送等候场所,塑造现代大气的学校主入口形象,校园内具备良好的消防系统,方便在特殊情况下,人员疏散及救援的及时到达。

△流线分析

















△校园模型轴侧图

△主剖面图

△建筑立面及材料
好了,方案赏析分享部分今天先到这,下周三我们继续。欢迎大家留言提问!
温馨提示
以上作品内容仅供大家欣赏,不得用作其它商业用途。作品所有权归众图互联和设计师所有!
编辑:sheng
排版:落花飞猪
·END·
科技 · 让设计更完美


