
建筑设计:一十一建筑
地址:深圳市福田区新洲七街66号
项目年份:2021
面积:37000.0 ㎡
主创建筑师:谢菁、FUJIMORI Ryo
设计团队: 罗明钢(项目建筑师)、许森茂、周子豪、张晓骏、何奕君、蔡梓莹、袁玉林
委托方: 深圳市福田区教育局
代建方:深圳市万科城市建设管理有限公司
施工方: 深圳市鹏城建设工程有限公司
建筑施工图设计:深圳市天华建筑设计有限公司
景观施工图设计:GND设计集团
室内施工图设计:深圳界内界外设计有限公司
摄影师:张超,ACF

© 张超
视频拍摄:张超、一十一建筑
新沙小学:新校园新社区
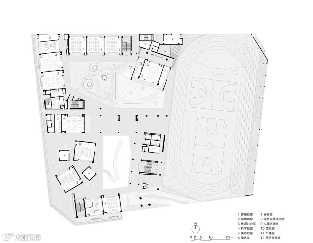
新沙小学是深圳市规划局发起的“福田新校园行动计划_8+1建筑联展”中的一所,尝试探索高密度城市中的小学校园新类型。校园占地1.1万平方米,在拆除的老校址上新建总建筑面积约3.7万平方米的校舍,容纳36个班和5间机动教室。
为了重建学校和社区邻里间的关系,我们决定避免使用围墙。通过设计骑楼,在校园与城市边界上创造出友好的空间关系。我们想象中的理想学校图景是:孩子们充满活力面带笑容地在校园各处奔跑和游戏。所以校园主入口的设计呈现出如同公园景观入口般亲切、柔和的气氛。

© 张超

© 张超
校园与城市的边界
沿骑楼布置的长凳,为学生家长和社区居民提供了遮阳避雨的休闲长廊。抬头仰望,还能看到学生们在平台上游戏,听到他们的嬉闹声。沿着街道排列着10m多高的、茂盛的道旁树,为了呼应这种野生感的街景,骑楼斜顶采用了木纹混凝土,墙面采用了粗糙质感的陶砖。

© 张超

© 张超

© 一十一建筑
裙楼和塔楼
我们通过地形高差来代替校园围墙的功能,用裙楼覆盖整个场地,将学生活动的场地抬高到二层大平台上。教学楼通过S型布局,围合出南北两个庭院,北院朝向操场围合校园,南院朝向城市十字路口打开。穿行在教学楼中的师生,可以交替看到校内外景色,体验到自身所处的学校和地区的在地感。

平台建筑和主题游乐场 ©一十一建筑

© 张超

© 张超

© ACF
规划条件和特批
骑楼空间在红线内,原本是学校用地,通过社区共享改善城市空间,学校获得规划局“大平台沿街零退线,建筑外墙退红线3m”的特批(原退线为6m),从而获得了更多的建筑用地和校园活动空间。骑楼首层沿街布置的图书馆和餐厅与校外仅一墙之隔,我们用两种设计处理该墙面:一种是大块的玻璃固定扇,保证了采光和视线交流;另一种是内侧可开启玻璃窗外侧水平陶棍格栅,在自然通风的同时确保了校内安全。

骑楼设计分析图 © 一十一建筑

从图书馆室内看两种开窗 © 张超

© 张超
建筑空间和孩童身体
我们负责了整个校园的建筑、景观和室内设计。在设计过程中,孩子们欢笑着活动的景象是我们的一大目标。如果孩子们在日常生活中进行了快乐的活动,他们对课堂学习的专注度和积极性也自然会提高。有了这个目标,设计的方法也随之调整:能让孩子们微笑的设计应该是更接近孩子的身体和体验的,能激发他们的探索心和想象力的。顺着这个思路,我们开始考虑适合儿童的空间尺寸,并专注于材料的颜色和质感。这种设计方法比起建筑设计,更贴近景观设计。

© ACF

© ACF
主题游乐场
孩子是天生的探索家,他们喜欢自由自在地利用空间来创造游戏,并在游戏中学习。我们为学校设计了多样的“主题游乐场”空间,而这些主题,不是通过商业化的主题性装饰,而是通过空间形态设计来获得,孩子们在不同主题的空间里自由地开展与之相关的活动;在新沙小学的校园里,有绿森林、浮桥、巷弄、三角山丘、圆顶城堡、入口山道、天台农场等。我们从景观角度进行建筑设计,使坚硬的建筑变得柔软,协调建筑与人的尺度,创造丰富的空间体验。

节点分析图 © 一十一建筑

© ACF

© 张超

© 张超
平台建筑
教学楼通过双面走廊、阳台的设计,使楼面连通成一层层的平台。根据规范,教室临空窗台最小90cm高,而目前新建学校窗台往往高过1.2m。小学生就算是站着也不容易看到窗外景色,教室缺乏开放感,从外面看就像封闭的盒子。因为有外阳台,新沙小学的教室窗台只有50cm高,小学一年级生坐在座位上也能看到窗外的都市景观,教室从而开放成为平台上的活动空间。外阳台还有水平遮阳、种植绿化、清洁外窗、检修空调等优点。

分析图 © 一十一建筑

© 一十一建筑

© 张超
护栏设计
平台外侧的护栏代替窗间墙成为重要的建筑立面表情。我们避免采用框架柱+细杆的传统护栏样式,而用粗细圆柱前后错位排列成三维空间以弱化护栏作为“围挡”的隔绝感。栏杆选用亮绿色,强调平台的存在感。

© 张超

© 张超
景观装置
新沙小学入口台阶上匍匐着几只行走中的草绿色“小动物”,既像扶手,又像雕塑,一点儿也不“建筑”。这样的“小动物”躲藏在校园大大小小的公共空间里,等着学生们找到它们一起玩。其原型来自于一十一建筑在深圳玉田村社区营造项目中设计的5个特殊形状的座凳,在城中村的都市丛林里和大家捉迷藏。新沙在此基础上发展出一共49件形态各异的景观装置。

分析图 © 一十一建筑

© 一十一建筑

© ACF
我们在校园设计些装置有两个意义:首先,这些装置既可以作为景观家具或游乐设施使用,又可以创造交流的场所,在与之互动时,孩子们用自己的身体感知空间,自由地创造游戏,并学习如何与同伴交流;第二,这些装置创造了适合儿童尺度的空间。从孩童视角来看,空旷的建筑显得过于庞大而单调,而景观装置则可以在尺度上连接大的建筑空间和小的孩童身体。

© 张超

© 张超
结构设计与正向BIM设计
设计合作单位深圳天华,作为图纸报建主体单位,负责了全专业施工图设计。在结构设计方面,新沙小学教学楼主要采用框-剪结构,对于校园中的大尺度和特色空间,则是采用大跨度钢梁(风雨操场、游泳馆)、型钢混凝土梁(悬挑4m骑楼)、钢管混凝土柱(入口树杈柱),圆拱钢筋混凝土薄壳(红堡)等特殊结构形式来满足空间使用需求。并且在多层建筑限高的条件下,通过严格控制梁高、部分管线穿梁的措施,使室内净高得到保证。

剖面图 © 一十一建筑
项目采用了正向BIM设计,在设计阶段各专业就在三维模型里进行空间整合和管线综合,交付成果为三维BIM模型和二维图纸,提供三维图纸进行施工交底,并指导现场施工。内部使各专业协调更充分,外部与甲方、合作方进行的设计交底更加便捷高效。
视频拍摄:梁煜
社区共享
8+1联展的另一个目标是探索向城市开放的校园。新沙小学的建成环境带有明显的开放感,将来可以从管理上进一步将学校开放给社区共享。除了通向二层校园的入口山道,我们还设计了首层入口,连通裙楼内贯通南北的6m宽中央长廊,沿着长廊可以直达裙楼内的图书馆、食堂、多功能厅、室内恒温泳池和体育馆,且不会和上方的教学流线交叉,方便在节假日开放给学生和社区使用。

© 张超

© 张超
项目图纸

场地平面图

一层平面图

二层平面图

三层平面图

剖面图

骑楼设计分析图
*本文由一十一建筑事务所投稿
标题及版式由众图互联整理
转载或任何形式的引用请联系设计团队

