绿色住宅是对20世纪60年代废弃混凝土框架建筑的创新、可持续的回应,为伦敦东部注重环保和道德的小企业提供了超过7000平方米的负担得起的办公空间。可持续建筑吸引以可持续为重点的企业作为租户,这是Ethical Property的核心理念。
这座20世纪60年代的建筑已经废弃了一段时间,但是混凝土框架和剥离的砖外墙处于合适的条件下可以再次使用。从街道的建筑线后退,一条未被占用的土地一直延伸到前面,这就造成了剑桥希斯路(Cambridge Heath Road)沿线的街道缺乏存在感。
绿屋的设计是为了尽量减少建筑在建造和运营过程中对环境的影响。一系列工程木材扩展使混凝土结构重新焕发活力,并提高建筑结构的性能,使其适合作为现代办公空间使用。
绿色房子体现了真正可持续建筑的概念,在建造过程中节省了2200吨二氧化碳。保留现有框架而不是用混凝土重建可节省400吨二氧化碳。通过使用木材而不是混凝土,进一步节约了400吨二氧化碳,另外1400吨二氧化碳储存在木结构中。
此外,可持续性设计的交付量减少了80%,使用中的二氧化碳排放量比概念基准减少了一半,能源效率提高了50%。
这座建筑是现代乡土设计的典范。材料和色彩都是简单而诚实的,旨在将它们对环境的影响最小化。中央玻璃中庭和前玻璃立面在中庭顶部创造了堆栈效应通风口,该通风口根据内部温度的变化自动打开。
建筑由木材(一种可再生资源)建造而成,扩建部分和楼梯将建筑的碳足迹最小化。该结构是交叉层压木材(CLT)和胶合层压木材(胶合木)的混合。没有下横梁,可以灵活地细分办公室,以满足租户的需要。
混凝土框架和CLT扩展在结构上是相互独立的。在两个结构的连接处有一个运动关节,可以让它们独立运动。特色楼梯脊柱墙连接到混凝土框架,让它垂直移动,而不是水平移动。
所有服务都是公开的。省去了石膏板和吊顶系统,最大限度地减少了材料的使用,同时使服务的更换变得快捷方便。外部包层是完全透气的,实木纤维绝缘的自着色石灰渲染。不需要粉刷立面,也不需要定期维护。
低用水量的卫生洁具最大限度地减少水的消耗,并通过低能耗的灯具配件减少能源的使用。屋顶安装的光伏发电为公共区域提供电力,屋顶上的野花草地为这个城市内部的场地带来了生物多样性。
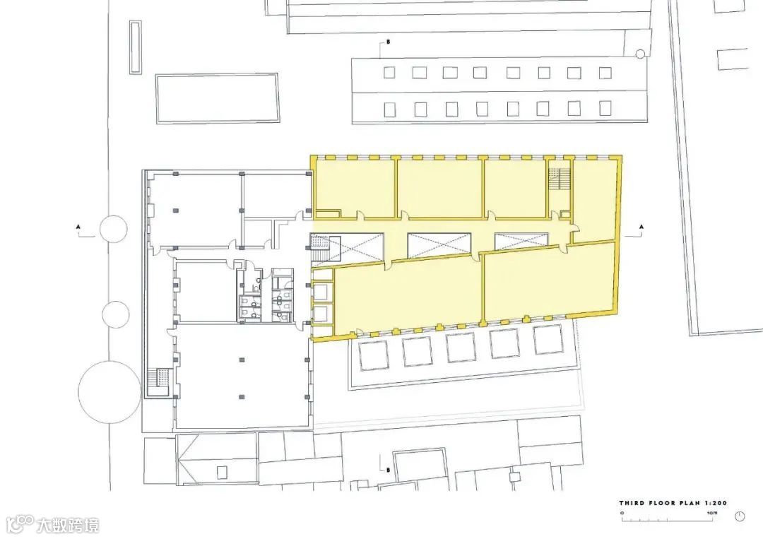
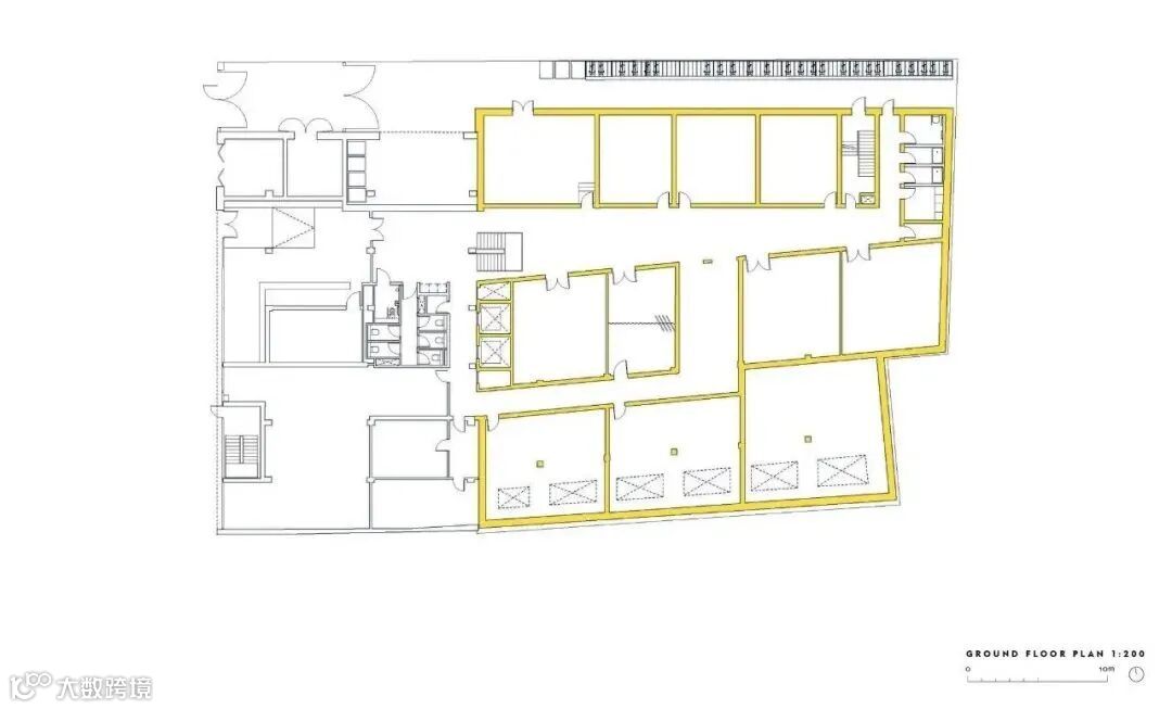
平面图
立面图
剖面图
轴测图
爆炸分析图
空气流动图
【免责声明】本公众号发布的内容仅供学习交流使用,不以任何形式进行牟利。内容版权归原作者所有。如有侵犯您的权益,请及时与我们联系,我们将于第一时间协商版权问题或删除内容。内容为作者个人观点,不代表本公众号立场和对其真实性负责。

