这个项目的甲方拥有大量的艺术藏品,并且想要利用这些藏品,创造一个如同博物馆一般的居住空间,让他和他的家人在这个空间里开启新的生活。基地周围的环境安静宜人,因此设计团队提出建造一个单层的钢筋混凝土结构,以将噪音降低到最小,并且尽可能的让新的建筑不产生对周围环境入侵的感觉。建筑的室内于室外都采用了单色系的配色方案,单色系的室内能够更好的展示艺术品。建筑和装饰材料也经过精心的挑选最小的,以营造一个朴素的氛围。
▼ 建筑给人一种轻的,漂浮的感觉

面向庭院的家庭房拥有很高的天花板,在北侧和南侧都开设条形高窗。延伸出的1.8米的檐部会遮挡一部分从窗户倾斜而入的自然光,此外建筑轮廓的看似很薄的外边缘给建筑带来一种轻的,漂浮的感觉。从传统的茶馆得到的灵感,房间的藻井,被分割为1.2米*1.2米方形格子,这种结构有些类似寺庙和sukiya风格的结构。天花板不仅用作于支撑屋顶重量的结构,而且使得建筑本身就是一件极简主义的艺术品。
▼ 面向庭院的家庭房拥有很高的天花板

▼ 房间的藻井,使得建筑本身成为一件极简主义的艺术品


建筑与艺术品,精心设计的家具,照明完美的结合,创造出一个个性且不繁琐的空间表达。最终,建筑成为了一个“如同博物馆一般的住宅”而非一个住宅形式的博物馆。
▼ 建筑与艺术品,精心设计的家具完美的结合,创造出一个个性的空间表达

▼ 主卧室采用单色系配色

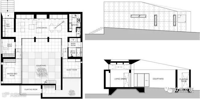
建筑的布局十分的简单,中心布置了一间家庭房,它对一个中心庭院开敞,围绕庭院的一侧布置了主卧室、儿童房,另一侧布置了兴趣屋。整个建筑的对称式布局给人一种西方式住宅的形式,但其实单侧私人庭院以及台阶的设计破坏了传统日式的对称。
▼ 被灯光点亮的建筑更像一件精心制作的艺术品



▼ 平面图/立面图/剖面图

转自优尔城,如有侵权,请联系小编删除!


