
© 战长恒

© 战长恒
景洪市是云南省西双版纳傣族自治州的首府,位于云南省南端,这里有独特的气候地貌特征,属亚热带雨林气候,高温多雨、干湿季分明且长夏无冬的气候特点。

© 战长恒
万科西双版纳文化展厅位于云南省西双版纳傣族自治州景洪市榕林大道南,基地周边群山环绕,景色壮丽,地势多起伏,其背靠雨林,面向流沙河,前面是开阔的农田,可远眺澜沧江,周边景观植被茂盛,蕴含原生态的朴素之美。

© 战长恒
地域文化的当代表达
西双版纳傣族,是与水有缘的民族,称为水的民族。傍水而建,是当地“水”文化重要的表现特征。场所的构建,对 “水”文化的表达是建筑师思考的重点。傍水而居,“水”,才是场所的灵魂和主角。人与水的关系,是建筑空间塑造的根本。

© 战长恒

© 战长恒
主体建筑“L”形的布置,与三个散点布置的向心单坡建筑,在场地中围合出了一个“水”的庭院,出挑深远的回廊,通透的玻璃,流动而开放的空间,让水的景色能穿越隔离,进入室内,水文化得以空间再现。

© GAIA.DESIGN
传统建筑的全新转译
西双版纳是中国典型干栏式建筑的主要分布地区,独特的气候地貌特征使得当地的建筑具有明显的地域特征:架空、坡顶,等。“L”形环绕可供人行走的出檐回廊,顺应了地域性气候,在最大化景观视线的同时,形成一个流动的外部开放空间,并充分回应了所处位置的景观与环境关系。

© 战长恒
建筑师向传统汲取灵感的同时也面向未来进行探索。立面上没有拘泥于传统地域民居的造型符号,而是对其提取解析并加以抽象,以现代的形式语言重构传统元素,以当代材料与建造方式实现地域性表达。

© 战长恒

© 战长恒
建筑底层整体架空,承袭当地傣族竹楼干栏式建构特点,高低错落的隙间有效地促进了防潮、散热与自然通风,同时也是对场地起伏地形与自然的有效适应。

© 战长恒
通过不同坡度大小的瓦屋面带来空间界面的虚实转换,有序的曲折变化,既回应了当地竹楼的尖顶屋面,又使建筑形态与周边山体走势相呼应,同时充分考虑到到雨量较大时期迅速排水的需要。对传统民居建筑的当代转译,处理塑造出传统傣族聚落的神韵和意境。

© 战长恒

© 战长恒
大面积玻璃幕墙与钢结构斜撑的运用让建筑彰显现代性,实现当代建筑的地域性表达,构建和重塑着地域、建筑与人之间的角色关系。

© Enjoydesign

© 战长恒
在地的远程介入
在实际的建造实践过程中,客观存在的空间距离给项目的建材选择与施工建造质量的控制带来极大困难,让品质控制难度远远超出预期,远程的网络通讯与实时巡察成为重要的沟通方式。通过现场巡察结合远程介入,实现设计细节的充分表达与品质控制。

© Enjoydesign

© 战长恒
项目图纸

项目位置
总平面图

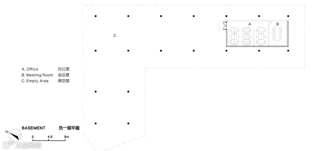
负一层平面图

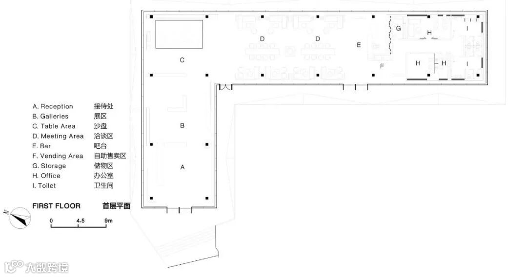
一层平面图


剖面图


模型
项目信息
建筑师:XAA建筑事务所詹涛工作室
主创建筑师:詹涛
建筑设计团队:田望、王梦宇、邬超
工程地点:云南省西双版纳傣族自治州景洪市榕林大道
用地面积:6500平方米
建筑面积:1100平方米
设计时间:2018年7月
竣工时间:2019年1月
开发商:昆明万科
结构设计团队:成都基准方中建筑设计有限公司昆明分公司
室内设计团队:广州燕语堂装饰设计有限公司
景观设计团队:GAIA盖亚设计咨询(深圳)有限公司
摄影师:战长恒、邬超、形在建筑空间摄影
(来源:建日筑闻,如有侵权请联系删除)


