据西班牙《马卡报》报道,2022年卡塔尔世界杯中的拉斯阿布阿邦体育场是可拆卸的。
据悉,拉斯阿布阿邦体育场是卡塔尔为举办世界杯所建造的第 7 座球场,这是一座由西班牙的芬威克-伊里巴伦建筑事务所设计、可容纳 4 万球迷的球场。
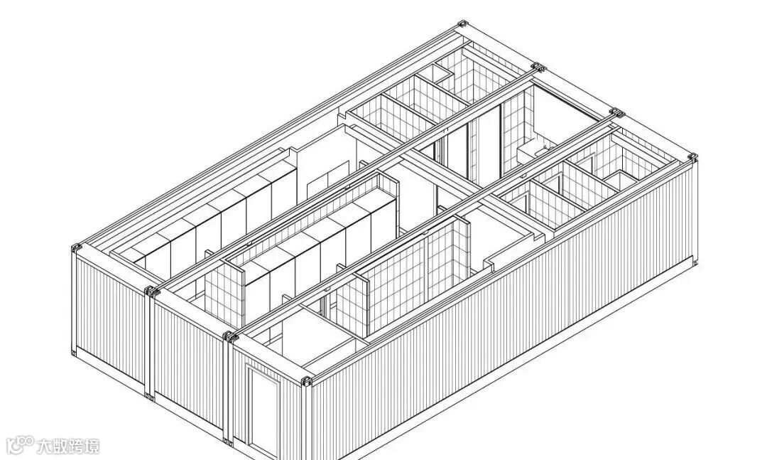
这座球场被命名为拉斯-阿布-阿布德(RasAbuAboud)体育场,它位于多哈东部的海滨,设计采用模块式拼接,每一模块上都带有可移动座椅、看台、卫生间等必备设施。
该场馆将会承办直至 1/4 决赛阶段的比赛,在世界杯后,这座体育场可以被拆分,其模块可以移动到它处重新拼接成小型的体育或文化场馆。
该体育场使用一个模块化设计,DEXTRA 提供了 600 多组碳钢张力杆,用于屋顶和碗结构的交叉架,以及楼梯、观台和坡道,张力杆的范围从条形尺寸M20(直径19毫米)到M72(直径70毫米)。
“这座球场能提供完美的遗产,它可以完全拆卸并且在全新的地方进行组装,或者转成其他的娱乐休闲设施。”来自2022年卡塔尔世界杯组委会的秘书长哈桑-阿尔塔瓦迪说道。
在海湾的河岸上,摩天大楼修饰了多哈的西湾地区。这里曾经是一个重要的工业区,其中三个主要发电厂之一向卡塔尔提供了服务,同时这里也是一个海水淡化厂和城市港口,如今在这里由运输集装箱建造巨大的体育场。
这是享有盛誉的比赛历史上第一个可移动的体育场,它是世界杯提供的最壮观、最具象征意义的场所之一,它的新颖结构和名字都是卡塔里国家文化的亮点之处。
施工过程始于 2017 年,土地的发掘在 2019 年 7 月完成。它的组件非常简单:每个再生容器都必须放置在适当的位置,就像它们是乐高积木一样,与钢架构匹配,以便将项目产品制成。
这个设计概念不仅使建筑能够快速建成,而且还为世界杯提供了一个优雅的体育场,可确保为球迷和球员们提供无与伦比的氛围。比赛采用公开的体育场,可以进行交叉通风,海旁边的位置提供了自然的新鲜微风,以减轻冷却系统的负载。
除此之外,用来安装体育场的回收容器的确切数量是卡塔尔电话的国际代码(+974)。
容器的颜色也不是随机的:食物的销售场所采用蓝色;浴室采用黄色;安全和急救区采用绿色;VIP 休息室采用黑色。
该项目由英国公司领导,旨在在组织和发展方面彻底改变国际足联世界杯。金属容器在四十世纪中叶出现,因此,金属容器优化了货物的运输,促进了新时代的到来,并在物流领域和商业交流的全球化。
此后不久,序列化的现代趋势和工业零件的回收利用使其重新运用在民用建筑。
所使用的每个元素都遵循了严格的标准化过程,该结构被预测为一个伟大的 Mecano,它提高了预制板和金属支撑的序列化原则:可逆性,有利于拧紧或拧松关节;可持续性,使用回收钢。
世界杯结束后,可以将体育场整体拆卸,并运送到另一个地点或成为其他体育建筑。

