
小小的一个人,在笔尖中走过了童年。
小小的一支笔,记录了你的整个青春。
不卑不亢,不慌不忙,写我主张!

品牌方在文具行业已经耕耘十余年,本次希望创立一个全新品牌形象,进入幼儿到中学生以下的文具细分市场。从品牌识别到终端门店打造,锐艺设计为本项目提供了品牌全案服务。

品牌策略关键词:流量入口搭建,设置引爆点
市调发现1:行业整体增长逐年放缓;
文具行业是我国轻工产业发展最迅速、最完善的行业之一,在经历20世纪90年代至2012年的高速发展阶段后,我国文具市场现已步入平稳增长的成长后期,2019年中国文具市场规模达到726.1亿元,其中办公文具市场规模为550.1亿元,同比增长4.4%;学生文具市场规模为176.0亿元,同比增长6.75%,整体增长逐年放缓。
市调发现2:竞争环境日益激烈;
文具生产技术与行业进入壁垒较低,目前我国从事文具行业制造的企业接近万家,而整条文具产业链上下游企业多达10万余家,可见虽然文具行业本身市场巨大,行业竞争异常激烈。
市调发现3:市场没有绝对的领导者,品牌市占率低;
我国文具行业TOP5晨光、齐心、得力、广博、真彩均为本土企业,年销售规模均达到10亿元以上,但集中度较低,CR4不到17%
市调发现4:儿童文具、学生文具潜力巨大;
相对办公文具市场,学龄儿童及学生文具的市场依然潜力巨大,特别是三胎放宽以后,随着政策导向,每年新生儿的数量有攀升的趋势,学生文具的增长幅度更显著。
市调发现5:儿童及学生周边文创玩具类商品是新的增长点;
潮玩市场的兴起,让潮玩消费已经成为时髦,学龄儿童相关的周边文创商品发展迅速。教育改革,减负措施后,对儿童周边的创意类商品需求被放大。
根据市调发现,锐艺设计结合品牌方SWOT分析后,制定品牌战略,并参与设计产品结构


产品结构规划上,锐艺建议依照学龄儿童的需求,发展文具周边商品,扩充品类。具体来讲从两个方向上着手:
方向一:流量思维,搭建流量入口,增加目的性商品:儿童绘本以及物美价廉的面包甜品。



方向二:提升转化率。增加文具周边商品:学生生活创意类商品、益智玩具类商品。不仅能丰富产品线,提高提袋率,更能提供更多的进店理由。玩具类商品相较于文具更能吸引儿童进店。


从目标客群的需求出发,确立我们的品牌定位,在品类规划上,流量商品和核心收益类商品相结合,不仅提供更多的购买理由,更是提升了消费者的购买情绪。

品牌设计关键词:超级符号&超级谚语

中文名:如苔,英文名:writea;品牌方是一个很有情怀的业主,以“如苔”为命也颇具深意,不仅是对于品牌寄予希望,期待让这个小小文具,也能做成大大的品牌;同时对于目标客群也是一份祝福,让如苔伴随其茁壮成长,成为优秀人才。
基于品牌内涵,锐艺提炼出该品牌的识别设计准则:

从如米苔花为灵感,用花瓣的元素作为超级符号,简洁的字体体现圆润现代,辨识度高。





在所有的视觉媒介,重复使用花瓣的元素,增加品牌的曝光度,提升其“元价值”。
从话语体系中,为契合现代儿童的个性及与众不同,超级谚语提炼为:如苔,写我主张。以书写传达品牌主题,以主张凸显品牌个性。

空间设计关键词:货架思维,做最引人瞩目的品牌
门店形象产品化一直是锐艺设计极力倡导的,街道是货架,门店就是产品,是品牌具像化的存在,所有视觉元素都要和品牌关联。因此,在品牌主色的选择上,采用明亮的橙黄色,既符合儿童品类的活泼感,在街道上又会非常显著。

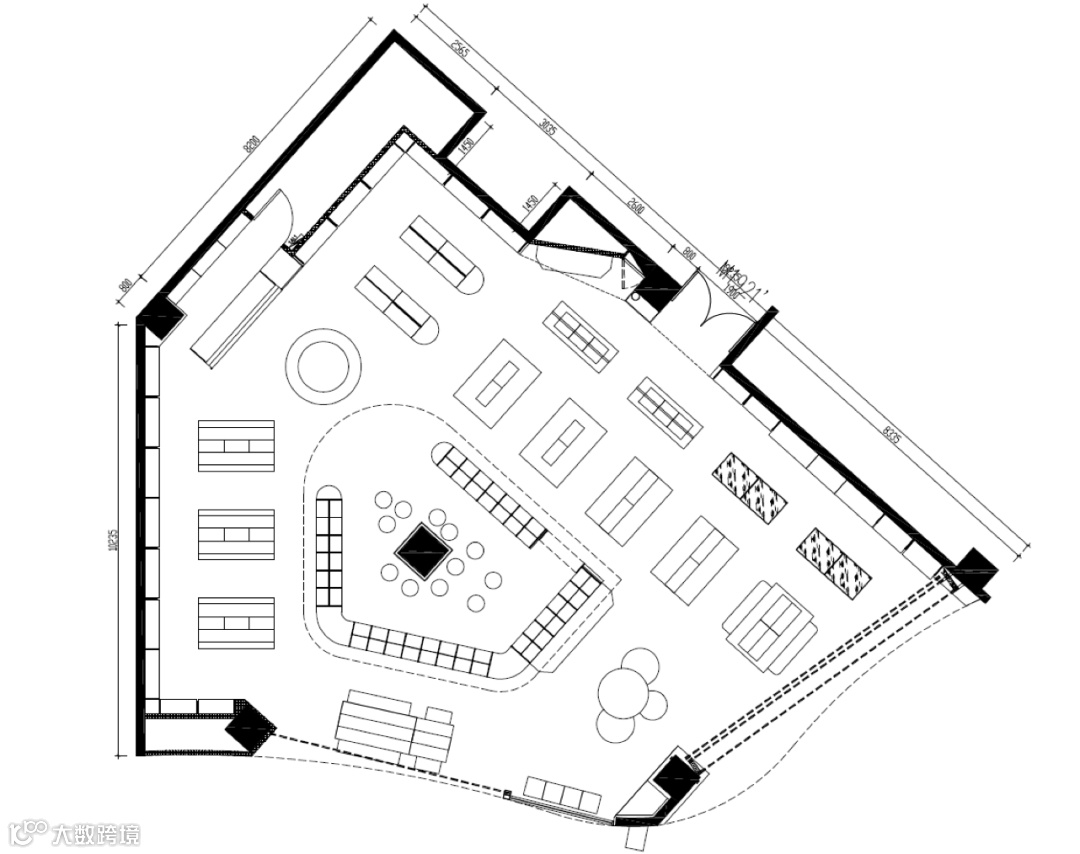
在门店规划上,200平方米店中央采用核心打卡点,环绕核心区分布三大功能区:文具区、玩具区、生活区。每个区域各自独立,同时也相互关联,便于商品的过渡与组合。







甜品区作为第三方合作品牌,被规划在入口处的生活创意区,通过色香味在引流的同时,也能增加曝光率和提袋率。



项目名称:Writea 如苔
项目类别:商业零售空间
项目地址:浙江省台州市宝龙广场三楼
项目面积:200平方米
设计机构:锐艺装饰设计(上海)有限公司
设计主创:林鹏( James Lin)
设计团队:Katty Zhou, Steven Lai, Miller Zhang, Akka Ma,Amy Zhang,
服务内容:品牌识别/空间/标识系统/灯光设计
延伸阅读:






