蚁宏2.0是什么?
过去十年,非承重隔墙已悄然由原来的“砖”变为新型绿色装配式墙板,其中以ALC(蒸压加气混凝土板)最为代表,这一改变也使得墙体深化设计需求亟需升级。方案端需要更直观的模型、生产端需要精准的尺寸规格清单、施工端需要更细致的图纸...
蚁宏2.0是一款专门针对装配式隔墙的智能深化设计系统 ,能够自动完成建筑图纸读取、深化图纸绘制、材料算量统计、三维模型生成,打通从设计端到生产端到施工端的数据壁垒。使用蚁宏2.0智能深化设计系统后,可以将按天、按周计量的传统深化设计周期压缩到按分钟计量。
NO.1
自动排板,平面立面同步输出
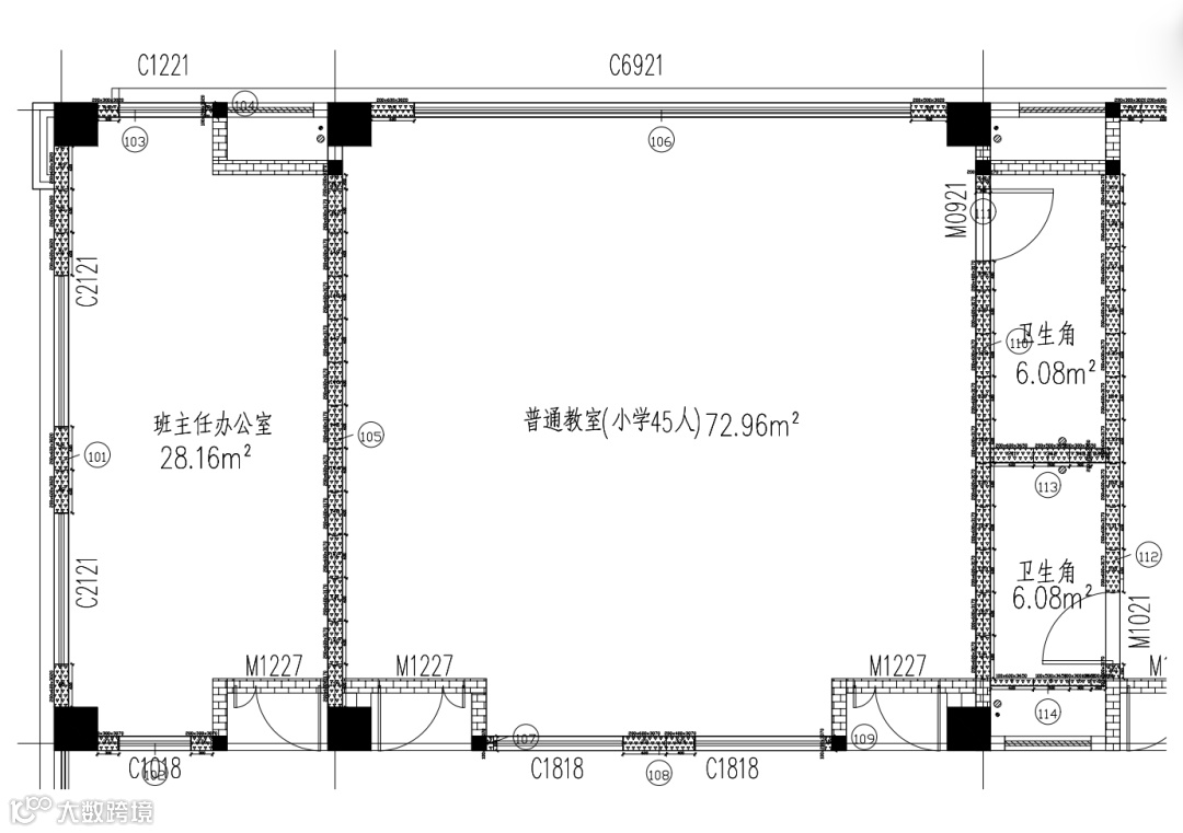
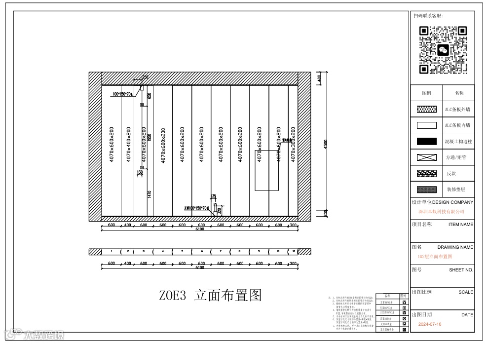
平面图、立面图按照规范输出排板方案,板材编号、板材尺寸一一对应,图框内容自动更新。
More
NO.2
方案先行,项目规划清晰呈现
系统同步根据深化设计图纸生成三维模型,可直接和BIM模型匹配,方便项目整体规划。
NO.3
用料统计,生产发货井然有序
材料清单按楼栋楼层、墙类型、板类型分类统计;生产清单按排产模数分类统计。
NO.4
大样图库,按图施工确保质量
节点大样图库分类整理,便于查找和下载,支持删除与更新,可自定义专属图库。
蚁宏2.0有什么?
相较于蚁宏1.0版本,全新升级后的蚁宏2.0版本设计功能更多,覆盖场景更广:
门窗设置
省料排板
构造设置
生产清单
高层拼板
支持修改
安装缝隙
......
蚁宏2.0谁在用?
蚁宏2.0覆盖的用户主要有以下3种:
蚁宏2.0怎么用?
我们为您准备了以下2种使用模式:
如果您有深化设计团队:
可以购买我们的蚁宏2.0系统:
👍按年租赁或者购买终身账号
👍企业账号可开通多个节点
👍大样图库免费赠送......
如果您没有深化设计团队:
可以购买我们的深化设计服务:
👍常规项目0.3元/㎡
👍交付平面图、立面图、节点图、材料算量表、BIM三维图
👍安排专属客服与项目、总包直接对接深化要求......
联系我们
蚁宏2.0的更多细节,请咨询客服:
客服微信
扫描右方二维码
客服热线
15361094578
淘宝店铺
卓蚁深化设计企业店
- END -

