近日,南京航空航天大学江北新区国际校区规划设计方案批前公示发布,一起来看看吧!
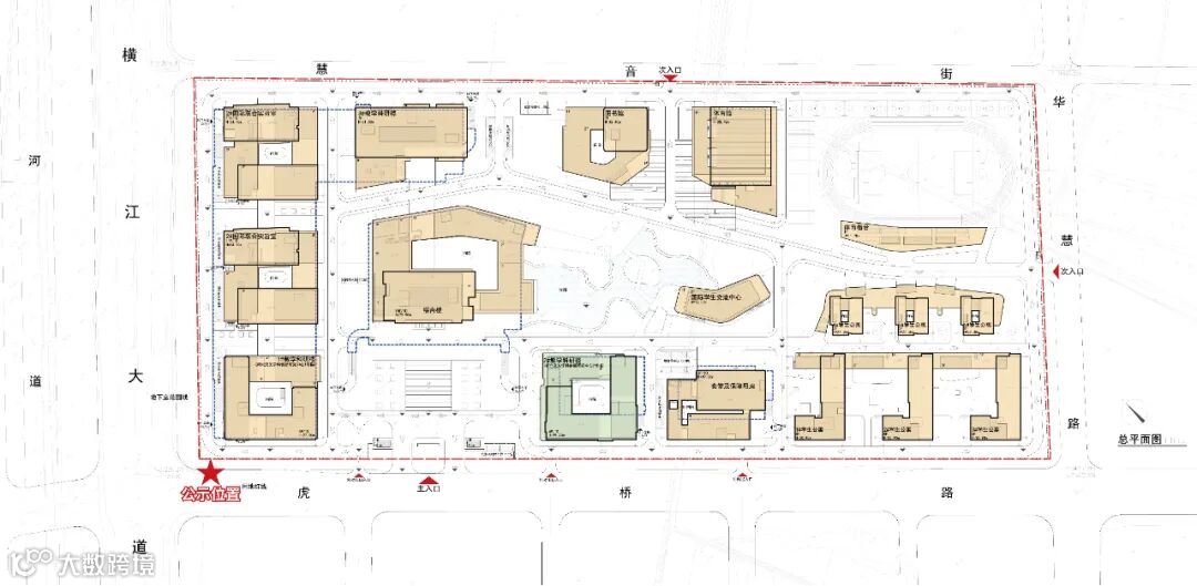
项目位于江北新区顶山街道产业技术研创园内,东至慧音街、西至虎桥路、南至华慧路、北至横江大道,占地面积约26.59万平方米。
规划用地性质为A31高等院校用地,容积率≤2.5,绿地率≥35%,建筑高度≤80m,建筑密度≤30%。总建筑面积约38.48万平方米,其中:地上建筑面积约32.34万平方米;地下建筑面积约6.14万平方米。
主要建设内容包括综合楼、教学科研楼、国际联合实验室、食堂及保障用房、学生公寓、地下车库等等。
以上项目各项指标符合设计要点,并满足规划法则规范要求。根据南京市建设项目规划公示相关规定,对该项目进行批前公示,征询公众意见。如有意见者,请向相关部门反映。
南京航空航天大学
1.项目建设现场
3.南京江北新区官网(http://njna.nanjing.gov.cn)
批前公示旨在征询公众意见,并非最终审批结果。如您对该规划项目有意见表达,请在公示期内将书面意见邮寄、电子邮件或者传真至南京江北新区管理委员会行政审批局(请注明“公示反馈意见”),公众意见将作为审批决策的重要参考依据。
南京航空航天大学江北新区国际校区历程:
2022年8月6日,南京江北新区与南京航空航天大学在南航将军路校区签署了共同推进南京航空航天大学江北新区国际校区建设的合作框架协议。

2022年10月17日,官方发布了南京市浦口区人民政府拟农用地转用(使用国有土地)公告(宁浦预转〔2022〕14号),将现有农用地转为建设用地,规范建设用地程序。
根据官方文件显示,拟农转用地块位于江浦街道,四至范围为∶东至慧音街,西至虎桥路,北至横江大道,南至华慧路,面积为0.002公顷,土地性质为国有土地。经南京市浦口区行政审批局批准,立项批复文号为宁新区管经投资字〔2019〕123号可研批复,本地块拟用于南京航空航天大学江北新区国际校区项目建设。
项目规划用地面积约400亩,校区东邻滨江大道、西靠横江大道、南临长江三桥、北近长江五桥,紧邻雅居乐汇港城。
项目规划建设面向未来世界科技前沿和国家战略需求,是中外合作办学和新兴交叉学科发展为一体的非独立法人国际校区。
本文来源:江北新区、南京市行政审批局,仅用于学术分享,不做盈利使用,如有侵权,请联系后台小编删除
欢迎关注我们,订阅更多最新消息
“邃瞳科学云”推出专业的自然科学直播服务啦!不仅直播团队专业,直播画面出色,而且传播渠道多,宣传效果佳。
“邃瞳科学云"平台正在收集、整理各类学术会议信息,欢迎学会、期刊、会议组织方择优在邃瞳平台上进行线上直播,希望藉此帮助广大科研人员跨越时空的限制,实现自由、畅通地交流互动。欢迎老师同学们提供会议信息(会有礼品赠送),学会、期刊、会议组织方商谈合作,均请联系陈女士:18612651915(微信同)。
投稿、荐稿、爆料:Editor@scisight.cn