春寒料峭,书香正浓。随着学子陆续返校,山东大学(威海)图书馆这座近20000㎡的知识殿堂即将迎来开学季的人流高峰。当师生们踏入馆内,迎接他们的不仅是浩瀚书海,还有由12台EKAH系列低环境温度空气源热泵机组构筑的“智慧暖流”。
山东大学供暖改造项目
山东大学是一所教育部直属重点综合性大学,中央直管高校,位列国家“双一流”“985工程”“211工程”,是世界一流大学建设高校(A类)。
供暖改造项目位于山东大学(威海)图书馆,阅览座位1500余个,每周开馆时间105小时,实现全年不间断开放。图书馆主楼及报告厅实际建筑面积约18353㎡,原使用市政供暖,需要进行供暖升级改造。

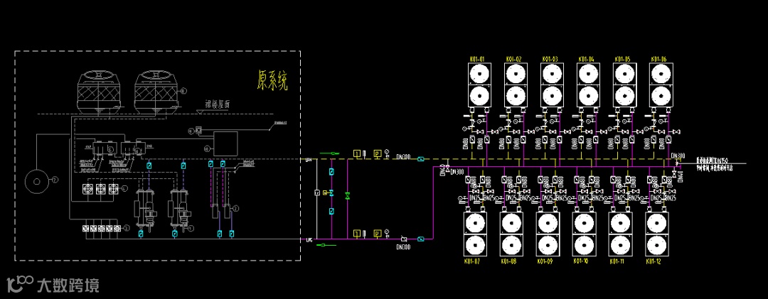
EK供暖改造方案
据了解,当地室外相对湿度为70%,冬季计算温度为-7.7℃,EK空调根据该工况在图书馆楼屋面配置12台EKAH系列低环温度空气源热泵机组,装机总热量为1944kW,轻松满足图书馆冬季在超低温环境下进行采暖的需求。

方案优势
威海冬季室外湿度70%左右,湿度大,机组容易结霜导致换热效率低下,频繁除霜会导致机组供热能力大幅衰减,对机组除霜技术是一大考验。
EKAH系列低环境温度空气源热泵机组配备AI智能除霜系统,支持不停机除霜和错峰除霜功能,机组进入除霜时无需停机,减小除霜时导致的水温波动,保证供暖舒适度,轻松应对冬季低温采暖的除霜难题。

图书馆每日的开馆及关馆基本固定,非周末人流量流动时间基本固定,可基于实际需求情况进行场景化积木搭建,让机组进行自定义策略运行,做到能源闭环管控。
EKAH系列低环境温度空气源热泵机组标配EK-AIoT云平台,可设置机组以不同的时间/气温/湿度作为触发条件,对机组自动进行启停/模式/进出水温度等控制调节,帮助图书馆更高效地管理空调系统,提高资源利用率。

项目地点位于山东威海,属于寒冷气候分区,冬季需要提供稳定供暖去供图书馆学生学习。
EKAH系列低环境温度空气源热泵压缩机采用EVI喷气增焓技术,拓宽机组在低温工况下的制热范围,在超低温环境下亦能稳定供暖,满足图书馆冬季的采暖需求。
在费用分析后发现,市政供暖费用大概为每平方25元/㎡,费用较为昂贵;采用EKAH系列低环境温度空气源热泵机组的采暖费用降至19元/㎡,较市政供暖节省超20%,节能效益显著。

山东大学(威海)图书馆项目的成功,是EK空调“赋予能源管理智慧,让用户节能降碳”使命的硬核实践。未来,EK空调将继续深耕教育领域,以更高效、更智能的暖通空调解决方案,助力全国高校构建绿色、舒适、可持续的学习环境,让绿色智慧流淌在每一寸书香空间。
往期推荐

