古有孟母三迁,今有择校而居,中国父母对于孩子的教育重视程度一向很高,甚至在孩子还未出生时就开始选择学校了,当大多数中国父母还在纠结如何才能让孩子进入重点学校时,却不知有一些家长已经悄悄在泰国曼谷各大名校周围买房置业,以便孩子能够享受高品质的国际教育。是什么吸引了这些人放弃欧美选择泰国呢?泰国又有哪些著名的国际学校呢?
蓬勃发展的泰国国际教育
曼谷的国际学校英美体制居多,所有国际学校都必须有WASC、CIS、IBO这些国际认证机关证书,国际学校是否拥有这些认证很重要,直接关系到未来学生毕业后去欧美国家进修,学生会更有优势,可以少修非常多学分,甚至可以免去考试直接申请,这些学校的毕业证书,相当于美国高中毕业证书,孩子可以选择直接去海外深造,或者继续留在泰国念书。
曼谷是国际化程度非常高的城市,外国人比例远超上海,这些外派到曼谷工作的高收入外籍人士都面临着子女教育的问题,加上泰国政府的鼓励,使得国际学校在曼谷有很大的需求,也因此获得很好的发展,有些人们耳熟能详的国际学校在北京、上海是分校,在曼谷反而是主校。加上东南亚地区近年来经济发展迅猛,产生了大量高净值人群,他们大多会站在更广泛的区域去为孩子选择学校,国际学校的高质量教育成为首选。
在泰国申请国际学校相对容易,学生一般只要通过学校的入学测试即可,越低年级越容易申请。泰国的生活成本更低,距离中国更近,近几年中国的父母也开始把目光转向泰国,加上泰国的国际学校众多,覆盖面广,能完整的包含从幼托一直到上大学之前的所有阶段。甚至可以让孩子从2岁开始就一直在一个学校读到高中毕业,并辅助申请全世界的名牌大学,完全不会出现国内阶段性升学换学校这种纠结的事情,这样一条龙式的教育模式减轻了家长很多不必要的麻烦。
曼谷富人区坐拥优质国际教育资源
之前小编给大家介绍过的亿甲迈(EKKamai),不仅是曼谷富人区,还是日本人的聚居地,靠近繁华城区通罗(Thonglor),而且交通便捷,其实除了这些地段优势之外,亿甲迈(EKKamai)更是曼谷国际学校等教育资源配套最为集中的区域,是深受曼谷本地以及海外人士喜爱的优质学区,到底亿甲迈(EKKamai)拥有哪些优质的及教育资源呢?
曼谷国际中学(Prep International School)建于2002年,是一所领先的私立国际学校,提供从幼儿园到高中的全英式教育,并且为10年级和11年级的学生提供严格的IGCSE课程(剑桥大学认可的12年级和13年级A级水平的前身),2016年学校推出EPQ,为学生的大学教育做准备,方便学生毕业后去世界各地知名大学继续深造。目前Prep国际中学已经成功获得国际学校理事会(CIS)、新英格兰学员协会(NEASC)和国家教育标准质量评估办公室(ONESQA)的三重认证。
曼谷威尔斯国际教育学校(Wells International School)在曼谷市中心拥有三大校区,拥有来自20多个国家的750位国际生,提供AP和IB课程,完全涵盖从幼儿园到12年级的一条龙教育系统。自创校以来,威尔斯学校(Wells International School)的宗旨就是为幼儿园到高中的学生提供美国学制的大学预备教育课程。发展至今,威尔斯学校(Wells International School)在曼谷国际教育界上享有盛名,揽获各项荣誉,是泰国国际学校联合委员会的会员,经过西方高等院校联合委员会认证,同时还经过泰国教育部的开设授权,成为了曼谷美式教育国际学校的代表。
新加坡新月国际学校EKKamai分校(Anglo Singapore International School)采用新加坡教育课程,亿甲迈(EKKamai)校区是新加坡国际学校在泰国的第一家分校。作为第一分校,亿甲迈(EKKamai)校区早期用以儿童为中心的教育方法而著名,提供幼儿园至小学阶段的教育,致力于提供优质的新加坡式教育和英国剑桥教育考试标准为基础的国际化教学,开放式的教育模式深受家长推崇。
曼谷大学(Bangkok University)于1962年12月25日由Mr.Surat与Mrs.Pongtip Osathanugrah所创立,是一所实力强劲的私立大学,是泰国建校最悠久、最有名气、规模最大的私立大学之一,在Business Com2009年6月第244期公布的泰国私立大学评比调查中,被评为最受学生欢迎的私立大学。
除此之外,亿甲迈(EKKamai)还有众多独具特色的学校,例如专门为当地日本居民的小孩提供的日式幼儿园“たけのこ幼稚園 ”等等。
如果你也对曼谷留学感兴趣,有意向为孩子提供更好的国际教育,坐拥曼谷优质教育资源的亿甲迈(EKKamai)绝对是最佳选择。如果您既想拥有较高的生活质量又想获得较好的国际学校教育资源,那么距离亿甲迈站仅350米的诺博森之苑(Noble42)无疑是一个非常适合孩子学习生活的宜居静土。
◆ ◆ ◆ ◆
诺博森之苑
曼谷Ekkamai地区豪华公寓
◆ ◆ ◆ ◆
诺博森之苑坐落于寸土寸金的曼谷日本人聚集地——亿甲迈(EKKamai),地理位置优越,占据曼谷城市中轴核心正位,天赋稀贵,距离BTS亿甲迈(EKKamai) 仅350米。毗邻曼谷著名的大型日式商场——Gateway,项目周边拥有多所曼谷顶尖的国际学校,私立医院、城市公园、购物中心、奢华酒店、轨道交通等生活设施配套齐全。
诺博森之苑项目影像资料
请在wifi环境下收看
项目名称:诺博森之苑
所属区域:曼谷亿甲迈(EKKamai)
项目性质:永久产权公寓
项目结构:两栋,8层楼,259户
完工时间:预计2020年
主力户型:1房、2房
房屋面积:28㎡~61㎡
开发商:Noble Development
诺博森之苑无疑将绿色恬静的生活理念发挥到了极致,将城市的喧嚣与家园的宁静完美融合,致力为每一位住户打造一个体验闹市静怡森系的唯美生活空间。
1500平米开放空间及一楼花园
健身房&游泳池
奢华公共休憩空间
诺博森之苑的设计师们将空间、光线、风景完美融合,简约欧式风格的主元素,巧妙的融入了后现代主义的生活元素。设计师们苛求每一处细节,通过完美的典线,精益求精的细节处理,带给住户不尽的舒服触感。
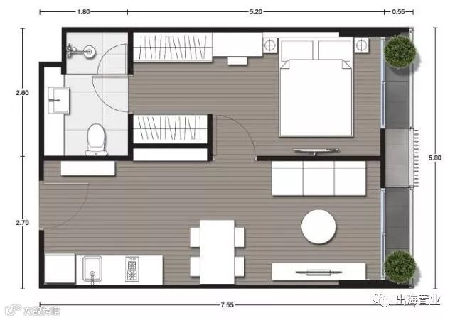
户型结构图
Studio,28 ㎡
1房,38.20 ㎡
2房,61.20 ㎡
亿甲迈(EKKamai)一直曼谷公认的富人区,以及小资生活社区,在这里有不少吃不起的日式餐厅与好逛的日式商场。在游客眼里它还有一个非常重要的地位——那就是去街对面的Eastern Terminal东部客运站坐车。
亿甲迈附近商场及餐厅云集,是不折不扣的小资生活社区,从BTS轻轨站下来,在诺博森之苑所在地素坤逸42巷巷口便是著名的日式商场Gateway Ekkamai。而在亿甲迈巷子里面也可谓是时尚街区,各种餐厅、咖啡店、酒吧云集于此。
素坤逸大道(Sukhumvit)是曼谷的中轴主干道,他与BTS一号线素坤逸线完全重合,是曼谷唯一的整条BTS线路和主干道完全重合的交通干线。可以同时换乘MRT一号线、BTS二号线和SRT-CITY机场快线的线路。
拥有素坤逸,就同时拥有了曼谷全部的四条轨道交通线路,快速通达曼谷多条城市快速路,拥有了全曼谷最便捷的交通配套。诺博森之苑位于素坤逸42巷,距离BTS亿甲迈(EKKamai)站仅350米。诺博森之苑周边交通可谓四通八达,联通素坤逸42,40巷两条主要街道,并且串联素坤逸大道和拉玛4大道两条曼谷城市发展的大动脉。
小贴士
如果您对曼谷诺诺博森之苑感兴趣,可以在每周四~周六,上午10点~下午5点莅临徐汇区岳阳路190号出海置业VIP会所当面咨询。也可以点击下方“立即通话”按钮或拨打我们的出海热线:400-883-5552,我们将为您提供1对1的顾问服务,满足您海外置业的需求,助您智选有一套!
海外置业房贷计算不求人
购房成本、贷款利率、持有成本
只需一键,轻松搞定
海外置业有风险,入市需谨慎
项目价格有效期自本文发布之日起一个月内

