本文项目简要:
项目名称:墨邸
所属区域:日本东京墨田区
项目性质:永久产权公寓
交房时间:2018年
项目总价:¥181万起
套内面积:25㎡起
项目亮点:
◆ 本项目按壁芯面积计算,相当于国内33㎡起;
◆ 墨田区是东京著名的旅游圣地,房屋短租需求旺盛;
◆ 小户型、低总价、投资门槛较低;
◆ 2020东京奥运会开幕在即,投资潜力巨大;
◆ 公寓距离双线交汇的押上站步行仅6分钟,交通便捷;
◆ 步行可至晴空塔和隅田公园,地理位置优越。
项目说明会时间:2018年1月27日(周六)14:00~17:00
随着2020年东京奥运会的脚步日益临近,东京再次成为全世界关注的重点,加上与中国毗邻、房屋总价不高、投资门槛较低等优势,日本的房地产业也逐渐成为众多投资者争相投资的项目。东京是亚洲最大的城市,拥有充裕的资金流,位于日本的心脏位置,在全球房地产市场评比中,东京、悉尼、墨尔本被评为投资前景最佳的城市,这也使得东京成为越来越多国人海外资产配置的首选。今天就让我们跟着出海置业栏目摄制组的镜头,走近日本东京,探访一处位于东京墨田区,毗邻地标性建筑晴空塔的最新公寓项目——墨邸,看看最专业的评析,听听最真实的声音。
请在wifi环境下收看
东京是日本最大的城市,又是日本经济、商业、金融中心,拥有着世界上最大的铁道交通枢纽之一。日本国内生产总值GDP全球第三,随着旅游业的日益旺盛,在2016年访日观光客达到2105万人,预计目标在2020年,达到约4000万人。
置业顾问 顾建平
东京在全球的十大安全城市中排名第一位,它在医疗安全、基建安全和个人安全各个方面,在全世界都名列前茅,也是世界上著名的国际金融中心,在营商环境和金融的基建,以及人力资本和信誉度方面,在全世界排名前列。此外,东京是世界500强的一个非常大的集中地,很多世界五百强企业的总部都在东京。东京也成功申办2020年奥运会,到时候大量的游客就会助推,整个东京的房产租赁市场以及房价的上升。目前东京的房价,是从上一次91年的一个房价暴涨回落至今,目前正开始逐步走出低谷。去年的整个东京都的房价上涨,已经到达到4.8%。由于它的单身人口非常多,所以他的小户型需求非常的旺盛,二三区人口也逐年上升,包括整个东京也是日本唯一一个人口正增长的城市。
在东京,墨田区是日本东京都内23个特别区之一。而在东京墨田区的晴空塔,已是东京享誉世界的标志性建筑。在这里你不仅可以享受一站式的生活服务,还可观赏樱花与烟火盛宴,感受日本东京给您带来的唯美视觉冲击。
置业顾问 顾建平
今天我们介绍的是东京的墨田区,那我们的项目叫墨邸。墨田区有东京著名的地标就是晴空塔,晴空塔不仅仅是一个电视塔,是集一个餐饮、购物休闲,包括水族馆在里面一个大型综合体,有超过300家店铺。我们项目到晴空塔就400米,步行大概6分钟左右;到浅草只有三分钟左右,到东京站也就10分钟;如果去银座、表参道都是在30分钟之内。特别是离我们项目不远,大概只有几百米的隅田川公园,隅田川公园是著名的赏樱胜地,每年四月份樱花季的时候游客是络绎不绝,每年七月份的时候隅田川公园还会有花火表演、烟花大会,这也是非常吸引游客的地方。
置业顾问 顾建平
总户数是19户,总高是五层楼,面积在25平左右都是使用面积,18年的6月份就可以交房了。这个项目大多数房源,三层以上都是能直接看到晴空塔扥景观的,所以视野是比较开阔。房间都是精装全配,卫生间和厨房电器也全都配好,交房的时候可以直接拎包入住,或者这个房子拿到手就直接可以出租产生收益。
本次推出的墨邸实际使用面积从25平米起,有一房两种户型。目前项目均价人民币约7万左右,本次项目精装修,全套全配,将在2018年6月交房。
1月27号(本周六),出海置业将在徐汇区岳阳路190号出海置业VIP会所,举办《东京墨邸出海智业会》,对日本有兴趣的置业者可以当面交流提问,同样也欢迎拨打出海热线:400-883-5552,我们在线为您答疑解惑!
◆ ◆ ◆ ◆
墨邸
点缀在东京隅田川旁匠心独运之作
◆ ◆ ◆ ◆
墨邸(Oshiage)坐落于东京都墨田区隅田川地区。墨田区是日本东京都内23个特别区之一,西边以隅田川为区境界,而荒川及中川合致而成为东边的区境界。江户文化气息浓郁,举行日本国技”相扑“的两国国技馆以及江户博物馆等观光名胜聚集在此。项目紧邻晴空塔、隅田公园,春赏樱,夏日还有花火节,观光客必到景点!距离东京地下铁半藏门线和都营浅草线双线交汇的押上站步行仅6分钟,从押上车站到羽田机场捷运车程仅需35分钟,背包客住宿首选!
项目名称:墨邸(Oshiage)
所属区域:日本东京都墨田区
项目地址:东京都墨田区向岛三丁目
项目性质:永久产权公寓
完工时间:预计2018年
主力户型:1房
房屋面积:25㎡ ~26㎡
开发商:FanssMore Japan
墨邸的室内设计风格结合日本美学传统与现代摩登感觉,以日本庭园的自然素材与简洁线条为主体创造出独树一格的和风摩登风格。
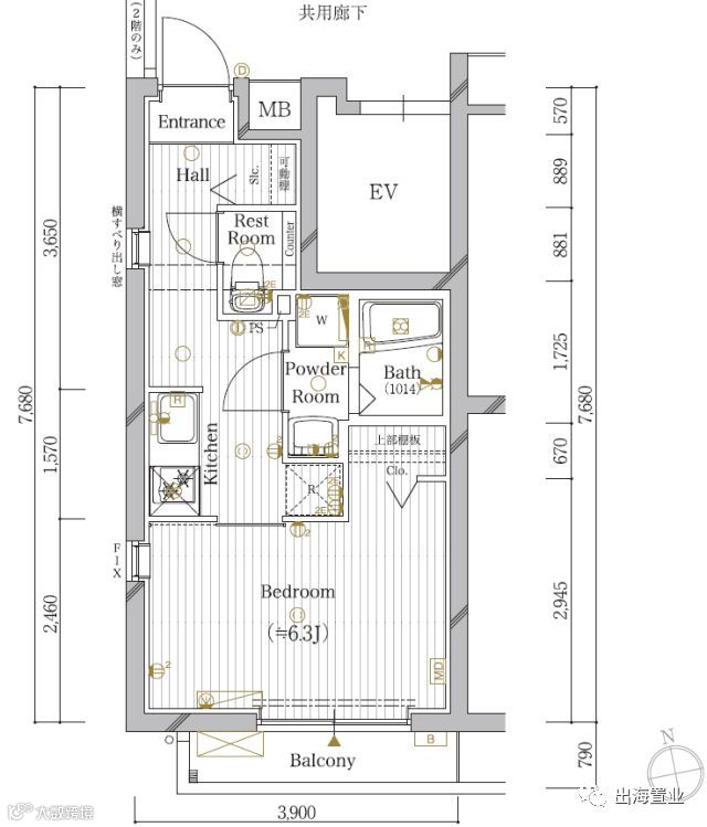
2层平面图
3-5层平面图
1房户型,25.22㎡
项目位于东京颇具人气的墨田区(平假名 すみだく,罗马拼音 Sumida-ku)内,是日本东京都内23个特别区之一。西边以隅田川为区的区境,而荒川及中川合致而成为东边的区境。伴随着该地区最负盛名的东京地标建筑——晴空塔(Tokyo Sky Tree)的开放而聚集了较多的人气,并围绕晴空塔所在的押上区域形成了一片成熟的商业圈。墨田区除了晴空塔以外还包括锦系町、两国(相扑圣地)、江户东京博物馆、隅田公园(赏樱圣地)等景点,是东京著名的旅游圣地。
墨邸周边各类生活设施完备,各色公园,生活采购,医疗机构,休闲娱乐等场所一应俱全。距离墨田区最大的综合商业中心——东京晴空塔(Tokyo Sky Tree)仅393米,距离隅田公园仅有526米。步行至东京地下铁半藏门线和都营浅草线双线交汇的押上站步行也仅需6分钟。
东京晴空塔,又译为东京天空树,正式命名前称为新东京铁塔(新东京タワー)、墨田塔(すみだタワー),是位于日本东京都墨田区的电波塔。由东武铁道株式会社和其子公司东武塔天空树共同筹建,于2008年7月14日动工,2012年2月29日竣工,同年5月22日正式对外开放。其高度为634.0米,于2011年11月17日获得吉尼斯世界纪录认证为“世界第一高塔”,成为全世界最高的自立式电波塔 。也是目前世界第二高的建筑物,仅次于迪拜的哈利法塔(828米)。
东京晴空塔不仅仅是一座电波塔,而是一个完整的都市开发计划。除了铁塔主体之外,东京晴空塔尚有其他附属设施,构成一个完整的街区。晴空塔在350米和450米处设有展望台,登塔可以从高处眺望东京全景,还能在塔内的餐厅、咖啡厅用餐,在纪念品商店购买独家商品。
除了登塔观景,晴空塔底下还是个综合休闲娱乐区(Skytree Town),有东京最大的水族馆墨田水族馆;有柯尼卡美能达天文馆“天空”;还有室内购物中心晴空街道(Solamachi),聚集了西式快餐店、日本料理店等餐厅以及流行服饰店、杂货店等数百家商铺,是整个墨田区最具人气的综合商业体。
隅田公园位于东京浅草与墨田地区交界的隅田川河畔,介于吾妻桥和樱桥之间,河岸两边连绵着长达1公里的近700多株樱花树,自江户时代开始就是著名的赏樱胜地。沿河成片的樱花显得十分壮观夺目,种类包括染井吉野、小彼岸、枝垂樱及大岛樱等,可谓阵容鼎盛,尤其是从樱桥上眺望两岸的景色,令人印象深刻。
在隅田公园赏樱还有一个特别之处,走在整段赏花漫步道上,都能看到不远处的东京晴空塔,感觉特别浪漫。赏樱期间,许多当地人会坐在樱花树下边赏花边吃美食,甚至还有大量摊档、各式舞蹈及杂艺团助兴,气氛异常热闹。 除了漫步,还可以乘坐游船来观赏樱花,别有一番情趣。
从墨邸(Oshiage)步行6分钟即可到达京地下铁半藏门线和都营浅草线双线交汇的押上站,乘坐该线可便捷的前往东京各个主要地点。
搭乘地铁从押上站前往各地所需时间:
◆ 浅草
·····
3分钟
◆ 秋叶原
·····
8分钟
◆ 东京站
·····
10分钟
◆ 银座
·····
12分钟
◆ 表参道
·····
28分钟
◆ 涉谷
·····
31分钟
◆ 羽田机场
·····
31分钟
◆ 成田机场
·····
56分钟
小贴士
如果您无法参加本次活动,也可以点击下方“立即通话”按钮或拨打我们的出海热线:400-883-5552,我们将为您提供1对1的顾问服务,满足您海外置业的需求,助您智选有一套!
活动预告
出海置业将于1月27日举办《东京墨邸出海智业会》,届时将为您深度解析日本东京房地产市场投资环境,解读墨邸其无与伦比的宜居体验,系统全面的讲日本置业流程以及相关税费问题,更有“一对一”日本置业顾问团队以及权威的日本房地产专家坐镇,为到场来宾答疑解惑,点击下方“我要报名”按钮,即可报名参加!
东京墨邸出海智业会
2018年1月27日(周六)
14:00 ~ 17:00
上海市徐汇区岳阳路190号
活动主题
▲ 深度解析东京房地产市场投资环境
▲ 墨邸项目介绍
▲ 日本置业流程以及税费详解
▲ 日本置业相关问题现场答疑
交通路线
地铁路线:
① 地铁1号线 衡山路站4号口
② 地铁7、9号线 肇嘉浜路站2号口
停车场:
① 岳阳路170弄
② 岳阳路200弄
③ 岳阳路217号岳阳公寓
④ 建国西路422号建业里车库
特别提示:
① 停车场收费标准: 10~30元/小时
② 岳阳路是由南向北行驶的单行道,
车辆从建国西路或肇嘉浜路转入岳阳路
报名方式
敬请点击下方“我要报名”按钮填写报名信息,
即可报名参加本次活动!
我要报名
海外置业房贷计算不求人
购房成本、贷款利率、持有成本
只需一键,轻松搞定
海外置业有风险,入市需谨慎
项目价格有效期自本文发布之日起一个月内

