本文项目简要:
项目名称:金谷别墅
所属区域:美国洛杉矶
项目性质:永久产权联排别墅
交房时间:2019年9月
项目总价:¥358万起
套内面积:138㎡~193㎡
项目亮点:
◆ 本项目按套内面积计算,相当于国内178㎡起;
◆ 总价人民币358万起,户型宽阔、环境优美;
◆ 洛杉矶是美国第二大城市,经济实力雄厚,发展机遇众多,其稳健楼市受到了全球投资者的热捧;
◆ 金谷别墅项目位于洛杉矶圣克拉丽塔市,为洛杉矶郡的第三大城市。被金融时报誉为“最宜居的城市”,CNN评价“商业发展最适合的城市”;
◆ 圣克拉丽塔。被当地人公认为“最适合生活的地方之一”,安全指数在全美排名也是处于领先地位,同时又是“加州最受保护的桃园仙境”环境十分优美;
◆ 本项目开发商提供一站式的房屋租赁管理服务;
◆ 本项目由图蓝地产(AtlasBlue)提供售中、售后服务。
项目说明会时间:7月14日(周六)13:00~17:00
洛杉矶(Los Angeles),一个熟悉又陌生的城市,我们熟悉从闻名世界的环球影城、明星云集的好莱坞、到动感无限的市中心;从星光熠熠的星光大道、高端奢华的比弗利山庄、到天文台上的日落;温婉而舒畅的海滩,梦幻的迪士尼主题公园…等等,飞速发展的经济,世界领先的科技水平,仅次于纽约的国民生产总值……繁华而繁忙的洛杉矶又显得很陌生。
洛杉矶著名景点
雄踞发展之优势,绘就璀璨之巅峰
洛杉矶(Los Angeles),一座位于美国加州西南部的活力之城,是美国仅次于纽约的第二大城市,同时也是美国西部最大的城市,常被称为"天使之城"(City of Angels)。随着近些年洛杉矶各个方面齐头并进的迅猛发展,如今的洛杉矶已经成为除了纽约以外美国最大的金融中心。 2016年洛杉矶的地区生产总值为7531亿美元,位居美国第二,仅次于纽约。其中汽车工业、电子工业、金融业及旅游业都在经济增长中占有很大的比重,如今的洛杉矶在美国的版图上是可以和纽约等量齐观的璀璨之星。
不仅是经济重城,洛杉矶在文化、科学、技术、国际贸易和高等教育方面,都处于全世界领先地位。洛杉矶拥有150家顶级高科技公司,包括di Tinder, Dollar Shave Club and Snap,Microsoft,Google and Facebook都在洛杉矶设有工作园区。还有洛杉矶最大的汽车制造厂,其高科技产品就占据全国的60%以上,洛杉矶当之无愧的成为了"科技之城"。
洛杉矶的文化和教育事业也很发达,名校云集,该地有世界著名的加利福尼亚理工学院、加利福尼亚大学洛杉矶分校(USNEWS最新排名24位)、南加利福尼亚大学,亨廷顿图书馆、格蒂博物馆等等。
加利福尼亚理工学院
洛杉矶还有一个名扬海内外的名片,同时也是洛杉矶经济强有力的支柱,世界的电影中心——好莱坞。好莱坞不仅是全球时尚的发源地,也是全球音乐电影产业的核心地带,拥有着世界顶级的娱乐产业和奢侈品牌,引领并代表着全球时尚的最高水平。
梦工厂、迪士尼、索尼公司、环球影片公司、华纳兄弟(WB)等等这些电影巨头,还有像RCAJIVE Interscope Records这样的顶级唱片公司都汇集在好莱坞的范畴之内,这里的时尚与科技互相促进,自然而不造作,好莱坞凭借深厚的时尚底蕴和雄厚的科技实力,一直被全球各地争相模仿。
随着当地发达的娱乐工业,电影制片厂分布的范围早已不局限在好莱坞一隅。好莱坞与其周边城市共同构成了美国影视工业的中心地区,其中被誉为“北部好莱坞”的圣克拉丽塔(Santa clarita),在过去几十年里一直是洛杉矶拍片场地最多的社区之一,一度成为洛杉矶旅游热门之地,以及众多海外投资者最青睐的地方。
圣克拉丽塔这个年轻的城市究竟具有什么魔力,可以在洛杉矶众多城市中脱颖而出,并且在洛杉矶的经济发展以及娱乐工业都占据着举足轻重的地位呢?
北部好莱坞愈发强大,
腾飞的经济将慢慢展露锋芒
圣克拉丽塔(Santa clarita)位于洛杉矶的西北部,隶属于大洛杉矶地区下辖的洛杉矶县。得益于当地发达的电影和多媒体经济,圣克拉丽塔的电影电视业尤其发达。近年来,在圣克拉丽塔取景拍摄的电影、电视、广告片及音乐MV超过了450部,圣克拉丽塔成为影视业的集聚地之一。迪士尼的ABC制片公司最近公布了在圣克拉里塔新建电影制片厂(Studios at the Ranch)的计划蓝图。新建的全新影城将为当地带来三千多的就业机会,并直接为洛杉矶带来每年近5亿多美元的经济活动收益。
圣克拉丽塔是一个全面发展的城市,除了影视业这里的工商业也十分发达,汇集了航空业,生物化工业,餐饮娱乐业和汽车业等众多大型企业和商业办公大楼。加上硅谷和洛杉矶都同属于加州,在相同的政策环境下,很多硅谷的企业选择迁往洛杉矶,其中很大一部分都会选择相对廉价的圣克拉丽塔,圣克拉丽塔也因此被誉为“洛杉矶最适合商业发展的地区”,成为加州首屈一指的商业中心。
现在圣克拉丽塔的人口增长率是洛杉矶的2倍,城市人口已达到28万人左右,圣克拉丽塔的人均收入也会比洛杉矶的其他地区相对较高,平均收入增长率为美国的两倍。就业增长率和移民人数也比洛杉矶平均速度要快,圣克拉丽塔也因其快速增长的人口和经济迅速的跃居洛杉矶的第三大城市。
圣克拉丽塔市成为人口重城,庞大的外来人口带来了大量资金,加强了其作为洛杉矶经济和商业中心的地位。但人口聚集增长,住房紧张成为该地区的主要问题。市场对新的可租赁和出售的住房出现大量需求,在当地就业率增加、大量的人口流入,该地区住房供应却出现短缺,却没有足够的房源,致使房价一直呈上涨趋势。过去五年间,房价增长每年达8.8%,5年累计涨幅达55%。2018年第一季度同比增长更是高达15%,而洛杉矶平均增长为13%。
圣克拉丽塔市房屋均价走势图
从2013年2月至2017年现房库存量跌至最低,圣克拉丽塔市的房屋销量增长了34.5%,市场需求十分旺盛。巨大的人口流动、超高的租金收益,圣克拉丽塔的发展前景被越来越地产大亨们看好,房产发展势头十分强劲。
圣克拉丽塔市房屋租金价格走势图
约每年有8000户家庭搬到圣克拉丽塔,人口的增长和房产供应量的缺乏,使得这一区域房屋租金水平也是一路水涨船高。
圣克拉丽塔所拥有的不仅仅是高昂的租金收益,还有令其他地区都羡慕不已的绿色家园。放眼美国地图,圣克拉丽塔如一颗明珠镶嵌在洛杉矶两大国家公园之中,得天独厚的地理优势成为“加州最受保护的桃园仙境”,被当地人公认为“最适合生活的地方之一”。
在社会治安方面,圣克拉丽塔是人口在20万人口以上的城市中,安全指数在全美排名第三位的城市。这样一个集高租金收益与人间仙境完美结合之地,如果定居于此,不仅可以享受城市绿肺给予的清新空气,还可以感受飞速发展的科技之巅的便捷生活,这里是完美生活的最好诠释。
圣克拉丽塔市的依山傍水的自然环境,造就了良好的生态环境同时,也赋予了金谷别墅与众不同的生活体验。既可以享受大城市的繁华便利,也享受桃源归隐的畅然,在这个梦想之地拥有一个这样幽静的家园,金谷别墅呈现出你对生活的所有幻想。
◆ ◆ ◆ ◆
金谷别墅
洛杉矶圣克拉丽塔高品质豪华联排别墅
◆ ◆ ◆ ◆
金谷别墅项目坐落于加利福尼亚州最宜居住的地方——洛杉矶圣克拉丽塔市市中心的美山谷广场内,是以度假村式风格打造的豪华三层联排别墅项目。整个美山谷广场占地87.5英亩,包括118套高级别墅,150套金谷联排别墅,312套住宅公寓,“Sprouts”有机新鲜市场,30,000平方英尺的优质商店和餐厅,以及包括豪华俱乐部,游泳池,水疗中心,私人公园和健走步道在内的五星度假式设施,畅享一站式生活娱乐新体验。
项目名称:金谷别墅
所属区域:美国洛杉矶圣克拉丽塔市
产权类别:永久产权联排别墅
项目规模:150套
交房时间:预计2019年9月
主力户型:3房、4房
金谷别墅是美山谷广场社区内的豪华联排别墅项目,由10栋典雅设计的庭院式联排别墅单元组成,每个单元建有15套三层附带车库的联排别墅。
整个美山谷广场社区包含了6万平方英尺的商业中心,为居民提供非常便利的娱乐生活设施, 包括私人花园及社区内绿化, 社区会所, 会所内游泳池、 红酒吧、 健身房、 SPA、 壁球馆、 宠物乐园及健身步道一应俱全。
金谷别墅每栋单元设计有5种不同的别墅户型,面积从1489到2080平方英尺,3到4间卧室,2车库,户外露台和阳台,可欣赏享受雄伟的峡谷、清新的空气和蓝天。别墅内有宽敞的空间家居摆件都有宽敞的摆放位置,也有紧凑的时刻是一家人一起居住在一起,拉近心与心的距离。
别墅的厨房一般都比较宽敞,这点也是讨喜欢烹饪美食的达人欢心的地方,一应俱全的厨具让你在脑海里不断勾勒出一个又一个美味佳肴,烹饪试吃,落座举杯,世间所有的情感铺洒在诱人的饭菜之上,金谷别墅可以体验人世间最美妙的生活独有之感。
卧室是家里最令人放松的地方,一天的工作不管是繁忙还是烦躁都可以交给一个柔软的床,一个眺望的窗,一个安稳的梦。泛白的墙纸没有一丝刺眼的感觉,即使是睡眼惺忪的早上也会给你很柔和的感觉。加上整齐又不拥挤的摆件,这样的卧室足以满足你的所有的挑剔。
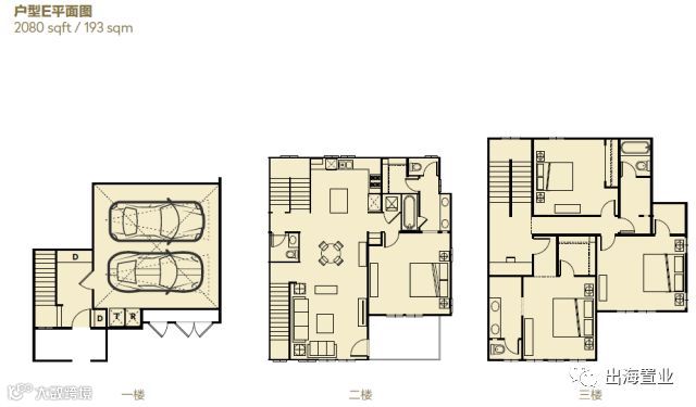
3房户型图,138㎡
4房户型图,193㎡
金谷别墅坐落于洛杉矶的第三大城市圣克拉丽塔市,交通十分的便捷。金谷别墅步行10分钟左右就可到达维斯塔谷开发项目新的地铁站(2020年开放)。
开车20分钟到达好莱坞和伯班克机场, 45分钟即可到达海边,距离LAX机场约1小时车程,通达世界。
2020年完工的地铁站紧邻美山谷广场(Sand Canyon Plaza),此站距离好莱坞站仅5站,距离洛杉矶联合车站仅8站;2024年洛杉矶将完成地铁升级工程,此举将大大缩短从维斯塔谷站到洛杉矶联合车站的交通时间。
小贴士
如果您无法参加本次活动,也可以点击下方“立即通话”按钮或拨打我们的出海热线:400-883-5552,我们将为您提供1对1的顾问服务,满足您海外置业的需求,助您智选有一套!
活动预告
2018年7月14日(周六),出海置业的合作伙伴——图蓝地产携CORE Executive Collection Development LLC荣誉开发的金谷别墅项目,诚挚邀请各位出席《洛杉矶金谷别墅出海智业会》,届时将为与会嘉宾全面解读美国洛杉矶地区房产投资前景,深度解析融合人性、自然、和谐三大主题的金谷别墅,总价54.5万美元起,首付仅5%。
洛杉矶金谷别墅出海智业会
7月14日(周六)
13:00 ~ 17:00
活动主题
▲ 深度解析洛杉矶房地产投资环境
▲ 金谷别墅项目介绍
▲ 美国置业的流程以及税费详解
▲ 美国置业相关问题现场答疑
交通路线
地铁路线:
① 地铁1号线 衡山路站4号口
② 地铁7、9号线 肇嘉浜路站2号口
停车场:
① 岳阳路170弄
② 岳阳路200弄
③ 岳阳路217号岳阳公寓
④ 建国西路422号建业里车库
特别提示:
① 停车场收费标准: 10~30元/小时
② 岳阳路是由南向北行驶的单行道,
车辆从建国西路或肇嘉浜路转入岳阳路
报名方式
敬请点击下方“我要报名”按钮填写报名信息,
即可报名参加本次活动!
我要报名
小编广而告之时刻
2018年8月1日~8月5日,由国内知名财经评论家、财经专栏作家——叶檀女士亲手打造的《叶檀财经》联合国内专业的海外置业机构——出海置业,携手多家东南亚顶尖开发商,为大家提供可靠且专业的海外资产配置服务。本次活动名额有限,报满即止。赶快点击下方图片或按钮,获取更多活动资讯吧!
海外置业房贷计算不求人
购房成本、贷款利率、持有成本
只需一键,轻松搞定
海外置业有风险,入市需谨慎
项目价格有效期自本文发布之日起一个月内

