上周与大家分享了墨尔本最有高度、最富活力、最具魅力新城区---南岸(Southbank)的区域优势以及坐落于南岸区核心区域内的南岸云鼎(MSQ)的项目特点。
还没看过?那你的损失就大了,给你一个传送门↓↓↓↓↓↓快去了解一下,看完记得回来,这次的文章也很精彩。
澳洲墨尔本丨南岸云鼎:毗邻CBD,近看繁华,近享便利,融入艺术人文的气质生活
5月17日
阅读全文
还记得下面这张地图吗?
这就是上周微信图文中所介绍的南岸云鼎(MSQ)项目所独有的“一公里半径都市生活配套”概念示意图,到底有多完美?今天大家就跟着小编的步伐,一同去领略南岸云鼎其所独有的“繁华、便利、艺术”的气质生活。
唯美艺术人文之旅
从南岸云鼎出发,向东南方步行仅260米左右,我们就来到了今天的艺术人文之旅的第一站,澳洲当代艺术中心(ACCA)。这是一座由棕黄色倾斜的铁墙构成的建筑,成立于1984年。其独特的外部造型以及艳丽的外墙颜色非常引人注目。ACCA在墨尔本艺术世界扮演了一个重要角色,其功能主要是为了吸引和培养澳大利亚艺术家特别是那些对装置作品感兴趣的人,这里新式独特的委托专题和展览使其成为享誉世界的艺术馆之一,为当代艺术家创作的新艺术作品提供展示机会。
澳洲当代艺术中心
澳洲当代艺术中心
澳洲当代艺术中心内部展区
继续往北行进,步行约380米左右,就可以达到仅次于维多利亚艺术中心的墨尔本第二大音乐厅---墨尔本演奏中心了(Melbourne Recital Centre)。这里是专为表演、录音、广播和欣赏小型合奏音乐会而设计, 一流的表演场地吸引了世界各地伟大的艺术家,也为本地富有艺术天分的人提供了平台。墨尔本演奏中心外观设计现代感十足,曾获得维多利亚建筑奖、公共建筑类的William Wardell奖、室内建筑类的Marion Mahony奖、城市规划类的Joseph Reed奖等四项最高荣誉的建筑大奖,夜幕下更加璀璨夺目。
墨尔本演奏中心
墨尔本演奏中心内部演奏大厅
走出墨尔本演奏中心,仅仅过个马路,你就会来到刚刚才提到的,墨尔本最大的艺术中心---维多利亚艺术中心(Victorian Arts Centre)。维多利亚艺术中心(又名墨尔本艺术中心)于1984年竣工首演,中心内有一个2677座位的音乐厅和拥有2000个座位的大剧院及420个座位的小剧场画廊、博物馆等在内的一系列演出场所及艺术展馆组成。澳洲歌剧团、澳洲芭蕾舞团、墨尔本剧团、墨尔本交响乐团皆是其长期演出合作伙伴。维多利亚艺术中心的本体建筑荣列于维州的维多利亚时代遗产名录;艺术中心被人形容为旋舞而轻扬的裙摆——造型独特的162米尖塔业已成为墨尔本的标志性建筑,这也使她保持着世界最高艺术中心的记录。
维多利亚艺术中心
虽然维多利亚艺术中心从外表上看只有五层楼,但实际建筑楼面共有十层。原因是其中的五层楼面建在地下,这是维多利亚州艺术中心的一个骄傲的特点。建在地下的好处是严密隔音,听不到外面的任何杂音,音响效果特别好。设计师设计它的时候还借鉴了钟乳洞音响的特点,摒弃了钟乳洞内有回声的缺点。因此,艺术中心内的墙面和椅子都使用羊毛以用来收录回声。
维多利亚艺术中心看台
维多利亚艺术中心墨尔本当地人最常光顾,也是全世界游客必打卡之处,人们在这里进餐,闲话家常,或是做着观看表演前的准备,或是缓解游览后的疲乏,在悠闲中又忙着充实,调整自己。
维多利亚艺术中心夜景
阳光休闲惬意之旅
提起墨尔本的夜生活,有个无人不知、无人不晓、同时也是不得不去的地方,那就是从南岸云鼎往西北方向步行600米,闻名全世界的皇冠娱乐中心(Crown Entertainment Complex)啦!
皇冠娱乐中心
这是一个充满奇迹和惊喜的地方,皇冠娱乐中心占地面积约为50万平方米,现已发展为南半球最大的娱乐中心之一,由澳大利亚首富凯利·派克所拥有。这幢39层楼的建筑物中,除了拥有350张赌台和2500部老虎机之外,还有500套超五星级标准的客房、40家餐厅、19间酒吧、3个夜总会、14个剧场和500米的名品购物长廊。它集顶尖娱乐场所、豪华酒店、世界级疗养温泉,以及汇聚20多种品牌购物、各地美食于一身,其内部豪华的享受及高科技的设施尤其为人所津津乐道。
皇冠娱乐中心沿岸夜景
小编当年可是坐船去滴
如果你想体验最墨尔本最具特色的餐厅,那火车餐厅绝对是您的不二之选。火车餐厅顾名思义就是在火车上的餐厅啦,但与众不同的是这个火车会围绕着市区转一圈,走过墨尔本最有特色的地方,而你可以在看美景的同时,品尝到澳洲特色的美食,上车地点就在皇冠娱乐中心旁边哦。
继续沿着雅拉河往西步行760米,就可以到达墨尔本最著名的地标建筑之一的墨尔本会展中心(Melbourne Convention and Exhibition Centre)。
墨尔本会展中心
墨尔本会展中心由墨尔本展览中心和墨尔本会议中心组成,墨尔本会议中心是世界上第一个也是唯一一个获得“六星级绿星”(6 Star Green Star)环保评级的场馆。馆内大量采用各种先进技术,能够提供令人耳目一新的高水准餐饮接待以及丰富的服务选择。墨尔本会展中心周边还聚集了几百个各种类型的商铺,其中不乏名牌商家,绝对值得耗费你一整天的时间来购物。
墨尔本会展中心
墨尔本会展中心内景
说到购物,距离墨尔本会展中心仅百米之遥的南岸码头奥特莱斯购物中心(South Wharf DFO)绝对是血拼一族的最爱。
South Wharf DFO
如果你的家庭成员中有小朋友的话,那雅拉河北岸的墨尔本水族馆(Melbourne Aquarium)绝对是个寓教于乐的好地方。墨尔本水族馆通过12个精彩主题探索区带游客踏上一段奇妙的旅程,全家老少皆宜。这里有数以千计的水生动物,包括澳大利亚体型最大的咸水鳄、全球种类最丰富的海马和叶龙群,以及威风端庄的帝企鹅和巴布亚企鹅。独树一帜的先进展示设施,有趣的动物喂食和潜水员表演,集娱乐性、教育性、参与性于一身,绝对不容错过。
墨尔本水族馆沿岸风光
墨尔本水族馆内部展馆
回到雅拉河南岸,河边的步行街同样有很多可以逛的地方,这里有除了各式各样的餐厅和酒吧以外,还有个世界最高的住宅楼---墨尔本尤里卡大厦(Eureka Skydeck 88)。
墨尔本尤里卡大厦
位于墨尔本尤利卡大厦88层的观景台,离地面高达285米。观景台专用电梯在不到40秒的时间内就可以把你送至大厦的88层,通过望远镜,可以一一观赏墨尔本的标志性建筑。最佳观景时间是在傍晚,此时太阳没有那么炽烈了,不会反射在玻璃上刺眼,恰好可以在视野极佳的位置观看夕阳,日落余晖氤氲下的整个墨城分外的温柔。再晚去就比较黑了,视线没有那么好。有个刺激点的玩法,是站在一个玻璃房间内被推出楼体外,脚下透过玻璃看到285米的地面,看着脚下的街道和楼房,感叹生命的渺小。
尤里卡大厦88层全透明悬崖箱
逛了那么大一圈,如果你还有精力,可以往东南方到达墨尔本皇家植物园,这可是澳大利亚、也是世界上最好的植物园之一。当然你也可以步行15分钟,回到南岸云鼎,回到自己理想的居所。
◆ ◆ ◆ ◆
南岸云鼎
打造墨尔本都市生活新地标
◆ ◆ ◆ ◆
南岸云鼎(MSQ)占地20,200平方米,相当于含有2,610个公寓单位的小城市。开发商罕见的将规划用地中约18.5%的土地开发为绿色休憩空间,包括1,860平方米的「城市公园」及950平方米的露天广场。而且南岸云鼎本身周围就环绕着完美的自然环境,再加上自身大面积茂盛的绿化带,可完美享受澳洲独有的自然风景。
项目名称:南岸云鼎(MSQ)
房产类型:精品豪华公寓
开发商:OSK Property
所在城市:Melbourne
项目区域:Southbank
项目地址:93-119 Kavanagh Street,Southbank,VIC3006
项目产权:永久产权
交房时间:2021年
主力户型:1房、2房
南岸云鼎不仅配备了各项高品质的生活设施,大楼包含了游泳池、健身房、水疗、桑拿、瑜伽、电影院、乒乓球馆、模拟高尔夫球场、私人会所、麻将室、超级市场、幼儿园等等,让您体味到前所未有的顶级奢华和享受!尤其是幼儿园和超级市场的贴心配置,对刚有小宝宝的年轻家庭尤其是有正职工作的年轻父母们来说,自家公寓里设有幼儿园真可谓是十分方便和安全;既不影响工作,也不必花费额外的费用来请专人照料孩子。
配套设施:
◆ 54层的豪华酒店
◆ 37层办公大楼
◆ 超过一万平米商场超市,餐厅,幼儿园
平台8楼:露天花园,无边泳池,BBQ烧烤区
东塔8楼:私人影院,公共厨房,宴会厅,功能厅,棋牌室,休息室,瑜伽馆,迷你高尔夫球场
东塔54楼:私人餐厅,住户酒吧,会议室,天空泳池,健身房,休息室
西塔8楼:桑拿房,水疗中心,蒸汽房,健身房,瑜伽中心,乒乓球中心
空中泳池
空中花园
南岸云鼎毗邻墨尔本CBD,依偎雅拉河畔,一公里半径都市生活圈内不仅有大型娱乐场所皇冠娱乐中心,还有各种精品时装店铺、尖端美食餐厅、世界级艺术中心,尽享繁华都市和绿色生活的绝妙。
一公里半径都市生活配套示意图
1.皇冠娱乐城 --- 南半球最大的娱乐中心
2.尤里卡88 --- 墨尔本地标观景台
3.维多利亚州艺术中心 --- 大型交响及古典作品演奏会的专用演出场地
4.墨尔本演奏中心 --- 荣获维多利亚最高建筑荣誉大奖
5.墨尔本皇家植物园 --- 世界上最好的植物园之一
6.澳洲当代艺术中心 --- 墨尔本最前沿的艺术中心
7.奔驰销售中心 --- 墨尔本最大的奔驰车展销中心
8.Clarendon St购物街 --- 墨尔本著名购物街
9.Coles超市 --- 澳大利亚大型连锁超市
10.ALDI超市与Woolworths超市 --- 澳大利亚大型折扣连锁超市
11.南墨尔本集市 --- 墨尔本鲜蔬集市
12.墨尔本国际会展中心 --- 墨尔本城市地标
13.南岸码头奥特莱斯购物中心 --- 世界名牌折扣店集中地
14.希尔顿酒店 --- 世界知名五星级豪华酒店
15.南十字星火车站 --- 墨尔本最重要的交通枢纽
16.墨尔本水族馆 --- 探索海底的奥秘
17.弗林德斯火车站 --- 墨尔本古典建筑代表
18.联邦广场 --- 开放式的多功能广场
19.澳网公开赛罗德拉沃尔球场 --- 大型网球竞技场
20.墨尔本战争纪念馆 --- 具有独特的金字塔型屋顶的古典设计风格纪念馆
南岸云鼎附近拥有澳洲最顶级的教育机构,例如墨尔本大学、皇家理工大学、墨尔本文法中学、卫斯理中学等著名学府都可在30分钟内到达。真可谓是工作求学的最佳住所。
◆ RMIT墨尔本皇家理工大学
◆ Melbourne University墨尔本大学
◆ Monash University莫纳什大学CBD校区
◆ Victoria University维多利亚大学
◆ State Library of Victoria维多利亚州图书馆
◆ University High School墨尔本大学附属中学
◆ Wesley College卫斯理私立中学
◆ Taylors College泰勒学院
◆ Melbourne Grammar School墨尔本文法中学
南岸云鼎由马来西亚上市开发商OSK Property携手国际著名建筑设计事务所Cox Architecture和室内设计名家Carr Design Group共同打造的大型城市综合体。南岸云鼎的设计理念正是用镜面的外观在完美的角度反射出墨尔本的繁华面貌与海天一线的自然景象。
建筑事务所Cox Architecture --- 是澳大利亚最大的跨学科建筑事务所之一,在全球拥有400多名员工,承接国际化项目。Cox拥有世界级项目规划和项目交付的丰富经验,对当今市场的规模、建造能力和复杂程度具有深入了解。他们通过与来自其他专业人士的跨学科交流,力求创新的建筑设计理念,并致力于拓宽商用领域的设计。
室内设计名家Carr Design Group --- 是澳洲最具有影响力的多功能设计公司之一,拥有40年的丰富经验。其设计思想和理念领先同行,成为行业的精英企业之一。
65层西南方向实景
65层南方实景
由三大龙头企业打造的南岸云鼎不仅拥有霸气外观,更是赋予室内优雅,高贵的气质,让你轻松享受百分百的舒适~!南岸云鼎的整体规划中,东塔和西塔分别为67层和52层;站在悬于半空中的落地窗前俯瞰全城,便可以将海、天、城的无限风光一览无余。
南岸云鼎的每一户设计,都精致到了细节。每一面墙,每一个转角,都创造了现代家居应有的舒适与华丽,更有着不会随着岁月流逝的经典。英伦设计风格,满足你与生俱来的小资情调。
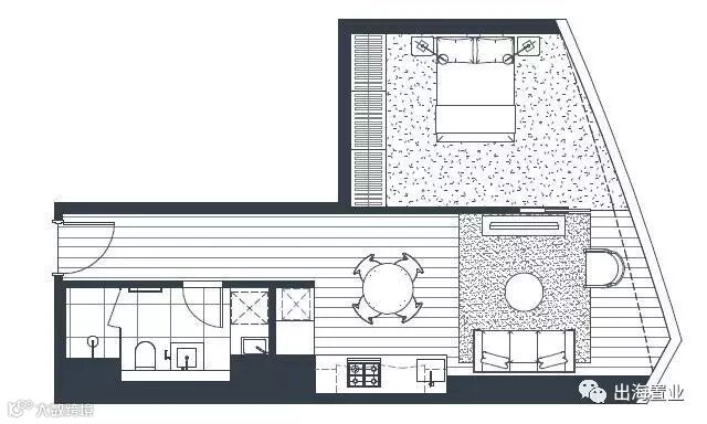
1房,49.9㎡ - 52.2㎡
2房,68.7㎡ - 73㎡
活动预告
出海置业将于6月17日举办《墨尔本南岸云鼎出海智业会 · 北京站》活动,届时将为您深度解析墨尔本房地产市场投资环境及维州房地产新政出台后的投资策略,解读南岸云鼎其无与伦比的宜居体验,系统全面的讲解澳洲置业流程以及相关税费问题,更有“一对一”澳洲置业顾问团队以及权威的澳洲房地产专家坐镇,为到场来宾答疑解惑,点击下方“我要报名”按钮,即可报名参加!
墨尔本南岸云鼎出海智业会
北京站
2017年6月17日(周六)
13:30 ~ 17:00
北京市朝阳区光华路1号
北京嘉里大酒店3层
活动主题
▲ 深度解析墨尔本南岸区投资环境
▲ 南岸云鼎(MSQ)项目介绍
▲ 澳洲置业的流程以及税费详解
▲ 澳洲置业相关问题现场答疑
交通路线
地铁路线:
北京地铁10号线金台夕照站D出口
报名方式
敬请点击下方“我要报名”按钮填写报名信息,
即可免费参加本次活动
我要报名

