墨尔本,澳大利亚维多利亚州的首府,全年平均气温在12-25摄氏度左右,城市绿地率约达40%。曾连续多年被联合国人居署评为“全球最适合人类居住的城市”之一。南岸,隶属南墨尔本区,它坐落于被当地人亲切的称为“墨尔本母亲河”的雅拉河南侧,是集合了餐饮,娱乐,商业,住宅为一体的综合社区。雅拉河横穿市中心而过,相对于北岸的紧张繁忙,南岸则更多展示给世人一片宁静优雅的旖旎风情。毫不夸张的说,雅拉河两岸浓缩了整个墨尔本的城市精华。
今天就跟着出海置业栏目摄制组的镜头,亲临墨尔本南岸地区地区,一起感受别样的南岸风情吧。
请在wifi环境下收看
土豪请随意
Shark 置业顾问
我们项目是这两栋楼,双子楼。
这个项目所有朝南的户型可以看到海平面,南边是海景房,北边是河景房。从实际角度说,海景更吸引人。
这个项目到海边的距离差不多在三到五公里左右。这个项目大概所在的区域,我们在图中标红的地方,就是现在墨尔本整个CBD的位置;这个标蓝的框,就是我们项目所在的South Bank(南岸)。
South Bank(南岸)和CBD的距离只隔了一座桥,隔了一(条)雅拉河。
如果从很多居住的角度来说,南岸其实也是非常不错的选择。
据澳洲官方数据统计局统计,墨尔本的家庭平均收入为94,553澳币,而南岸的家庭平均收入为116,381澳币,以约2000澳币的优势高于墨尔本大区。
Shark 置业顾问
这张表,表示了目前这个区域有54%左右的房屋属于出租的状态。
有这么多房子出租是因为现在墨尔本CBD的房子不够住。也就是说,有很多人在墨尔本CBD找不到房子住以后,选择了最近CBD的区域,South Bank(南岸)。因为从第二张图可以看到整个墨尔本,特别是南岸,租金收益可以达到5%之多。5%的租金收益对很多老房东来说,更乐意把房屋出租掉。
因为这个现金流其实是非常可观的,这个数据全部是由(澳洲)最大的数据统计公司得到的,而不是我们自己在网上搜索的。现在整个墨尔本大区的话,它的租金收益是在4.1%左右。
南岸云鼎位于南岸中心,步行指数可达91分,在400至500米的距离内即可至雅拉河边,人们都享受在河边漫步的生活节奏。并且在其一公里步行范围内,可至皇冠娱乐城,维多利亚美术馆、墨尔本皇家植物园、澳网公开赛罗德拉沃尔球场、音乐厅、展览中心等多处著名场所,艺术人文氛围浓郁。
本周六(11月25日)上午10点到下午5点,我们将在岳阳路190号出海置业VIP会所举办《墨尔本南岸云鼎出海智业会》活动,有兴趣的置业者可以当面交流提问,同样也欢迎拨打出海热线:400-883-5552,我们在线为您答疑解惑!
◆ ◆ ◆ ◆
南岸云鼎
打造墨尔本都市生活新地标
◆ ◆ ◆ ◆
南岸云鼎(MSQ)占地20,200平方米,相当于含有2,610个公寓单位的小城市。开发商罕见的将规划用地中约18.5%的土地开发为绿色休憩空间,包括1,860平方米的「城市公园」及950平方米的露天广场。而且南岸云鼎本身周围就环绕着完美的自然环境,再加上自身大面积茂盛的绿化带,可完美享受澳洲独有的自然风景。
项目名称:南岸云鼎(MSQ)
房产类型:精品豪华公寓
开发商:OSK Property
所在城市:Melbourne
项目区域:Southbank
项目地址:93-119 Kavanagh Street,Southbank,VIC3006
项目产权:永久产权
交房时间:2021年
主力户型:1房、2房
南岸云鼎不仅配备了各项高品质的生活设施,大楼包含了游泳池、健身房、水疗、桑拿、瑜伽、电影院、乒乓球馆、模拟高尔夫球场、私人会所、麻将室、超级市场、幼儿园等等,让您体味到前所未有的顶级奢华和享受!尤其是幼儿园和超级市场的贴心配置,对刚有小宝宝的年轻家庭尤其是有正职工作的年轻父母们来说,自家公寓里设有幼儿园真可谓是十分方便和安全;既不影响工作,也不必花费额外的费用来请专人照料孩子。
配套设施:
◆ 54层的豪华酒店
◆ 37层办公大楼
◆ 超过一万平米商场超市,餐厅,幼儿园
平台8楼:露天花园,无边泳池,BBQ烧烤区
东塔8楼:私人影院,公共厨房,宴会厅,功能厅,棋牌室,休息室,瑜伽馆,迷你高尔夫球场
东塔54楼:私人餐厅,住户酒吧,会议室,天空泳池,健身房,休息室
西塔8楼:桑拿房,水疗中心,蒸汽房,健身房,瑜伽中心,乒乓球中心
空中泳池
空中花园
南岸云鼎毗邻墨尔本CBD,依偎雅拉河畔,一公里半径都市生活圈内不仅有大型娱乐场所皇冠娱乐中心,还有各种精品时装店铺、尖端美食餐厅、世界级艺术中心,尽享繁华都市和绿色生活的绝妙。
一公里半径都市生活配套示意图
1.皇冠娱乐城 --- 南半球最大的娱乐中心
2.尤里卡88 --- 墨尔本地标观景台
3.维多利亚州艺术中心 --- 大型交响及古典作品演奏会的专用演出场地
4.墨尔本演奏中心 --- 荣获维多利亚最高建筑荣誉大奖
5.墨尔本皇家植物园 --- 世界上最好的植物园之一
6.澳洲当代艺术中心 --- 墨尔本最前沿的艺术中心
7.奔驰销售中心 --- 墨尔本最大的奔驰车展销中心
8.Clarendon St购物街 --- 墨尔本著名购物街
9.Coles超市 --- 澳大利亚大型连锁超市
10.ALDI超市与Woolworths超市 --- 澳大利亚大型折扣连锁超市
11.南墨尔本集市 --- 墨尔本鲜蔬集市
12.墨尔本国际会展中心 --- 墨尔本城市地标
13.南岸码头奥特莱斯购物中心 --- 世界名牌折扣店集中地
14.希尔顿酒店 --- 世界知名五星级豪华酒店
15.南十字星火车站 --- 墨尔本最重要的交通枢纽
16.墨尔本水族馆 --- 探索海底的奥秘
17.弗林德斯火车站 --- 墨尔本古典建筑代表
18.联邦广场 --- 开放式的多功能广场
19.澳网公开赛罗德拉沃尔球场 --- 大型网球竞技场
20.墨尔本战争纪念馆 --- 具有独特的金字塔型屋顶的古典设计风格纪念馆
南岸云鼎附近拥有澳洲最顶级的教育机构,例如墨尔本大学、皇家理工大学、墨尔本文法中学、卫斯理中学等著名学府都可在30分钟内到达。真可谓是工作求学的最佳住所。
◆ RMIT墨尔本皇家理工大学
◆ Melbourne University墨尔本大学
◆ Monash University莫纳什大学CBD校区
◆ Victoria University维多利亚大学
◆ State Library of Victoria维多利亚州图书馆
◆ University High School墨尔本大学附属中学
◆ Wesley College卫斯理私立中学
◆ Taylors College泰勒学院
◆ Melbourne Grammar School墨尔本文法中学
南岸云鼎由马来西亚上市开发商OSK Property携手国际著名建筑设计事务所Cox Architecture和室内设计名家Carr Design Group共同打造的大型城市综合体。南岸云鼎的设计理念正是用镜面的外观在完美的角度反射出墨尔本的繁华面貌与海天一线的自然景象。
建筑事务所Cox Architecture --- 是澳大利亚最大的跨学科建筑事务所之一,在全球拥有400多名员工,承接国际化项目。Cox拥有世界级项目规划和项目交付的丰富经验,对当今市场的规模、建造能力和复杂程度具有深入了解。他们通过与来自其他专业人士的跨学科交流,力求创新的建筑设计理念,并致力于拓宽商用领域的设计。
室内设计名家Carr Design Group --- 是澳洲最具有影响力的多功能设计公司之一,拥有40年的丰富经验。其设计思想和理念领先同行,成为行业的精英企业之一。
65层西南方向实景
65层南方实景
由三大龙头企业打造的南岸云鼎不仅拥有霸气外观,更是赋予室内优雅,高贵的气质,让你轻松享受百分百的舒适~!南岸云鼎的整体规划中,东塔和西塔分别为67层和52层;站在悬于半空中的落地窗前俯瞰全城,便可以将海、天、城的无限风光一览无余。
南岸云鼎的每一户设计,都精致到了细节。每一面墙,每一个转角,都创造了现代家居应有的舒适与华丽,更有着不会随着岁月流逝的经典。英伦设计风格,满足你与生俱来的小资情调。
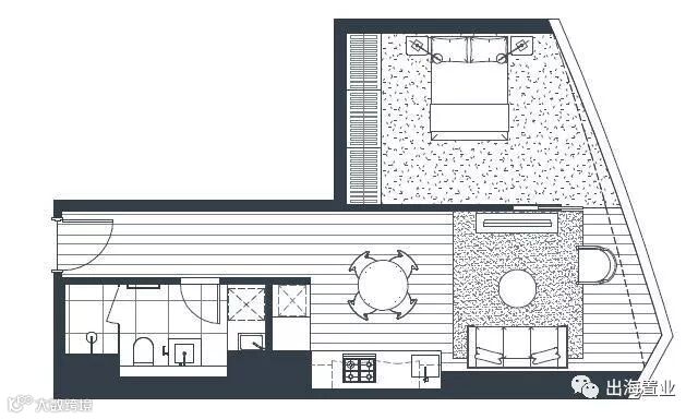
1房,49.9㎡ - 52.2㎡
2房,68.7㎡ - 73㎡
小贴士
如果您无法参加本次活动,也可以点击下方“立即通话”按钮或拨打我们的出海热线:400-883-5552,我们将为您提供1对1的顾问服务,满足您海外置业的需求,助您智选有一套!
活动预告
出海置业将于11月25日举办《墨尔本南岸云鼎出海智业会》,届时将为您深度解析墨尔本房地产市场投资环境,解读南岸云鼎其无与伦比的宜居体验,系统全面的讲解澳洲置业流程以及相关税费问题,更有“一对一”澳洲置业顾问团队以及权威的澳洲房地产专家坐镇,为到场来宾答疑解惑。点击下方“我要报名”按钮,即可报名参加!
墨尔本南岸云鼎出海智业会
11月25日(周六)
10:00 ~ 17:00
上海市徐汇区岳阳路190号
活动主题
▲ 深度解析墨尔本南岸区投资环境
▲ 南岸云鼎(MSQ)项目介绍
▲ 澳洲置业的流程以及税费详解
▲ 澳洲置业相关问题现场答疑
交通路线
地铁路线:
① 地铁1号线 衡山路站4号口
② 地铁7、9号线 肇嘉浜路站2号口
停车场:
① 岳阳路170弄
② 岳阳路200弄
③ 岳阳路271号岳阳公寓
特别提示:
① 停车场收费标准: 10元/小时
② 岳阳路是由南向北行驶的单行道,
车辆从建国西路或肇嘉浜路转入岳阳路
报名方式
敬请点击下方“我要报名”按钮填写报名信息,
即可免费参加本次活动
我要报名
海外置业有风险,入市需谨慎
项目价格有效期自本文发布之日起一个月内

