本文项目简要:
项目名称:安可雅苑
所属区域:曼彻斯特
项目性质:850年产权公寓
交房时间:2021年
项目总价:¥204万起
套内面积:45㎡起
项目亮点:
◆ 本项目按套内面积计算,相当于国内60㎡起;
◆项目所在曼彻斯特市中心偏东北部的Ancoats区域,曾是工业革命的摇篮,经济基础雄厚,区域文化氛围浓厚,历史和时尚相互交融;
◆交通方面,处于极佳的地理位置,距离目前曼彻斯特最为著名的维多利亚站直线距离500米左右,皮卡迪利站直线距离1公里左右;
◆项目距离曼彻斯特大学仅1.5公里左右,为项目带来大量稳定是租赁群体并且租赁需求也非常大;
◆项目步行5分钟时间即可抵达曼彻斯特市中心,是真正的出则繁华,入则宁静的宜居之地。
英国,这个拥有200年稳健历史的不动产市场,一直都是世界房产投资避风港。在当前形势下,很多投资者为了抢占此良机。纷纷把目光投向了英国房产作为传统的热点投资城市。
说到投资,首先想到便是伦敦。其实,作为老牌的经济强国,英国并非仅有伦敦一枝独秀。在当前的经济发展趋势下,全英最为炙手可热的房产投资城市,也已经从老牌劲旅伦敦,逐渐转变为强势的新兴城市曼彻斯特。曼彻斯特不但投资收益率与发展前景可观,相较伦敦,没有那么高的入市门槛。更多人将房产投资转向了这个热点城市。这座英格兰北部的经济引擎,正以破竹之势引领属于投资者的成功时代。
经济权利优先
催生投资新热潮
曼彻斯特作为曼城是全世界客运铁路的发源地,是英国铁路网上的重要的枢纽,连接着英国的主要大动脉。沟通世界大城市的曼彻斯特机场是英国第三繁忙的旅客机场,很多人都是在这里第一次踏上英国土地。这里也是伦敦之外唯一有直飞中国航班的城市。市内的还拥有更为便利快捷的火车、巴士,以及被称为英国最成功的轻铁系统,纵横交错的贯穿着曼彻斯特城市的各个角落。
除了占据重要地位的交通,世界第一个工业化城市的曼彻斯特如今是英国第二大经济体,曼彻斯特在过去的20年间实现了经济的翻倍增长。30英里半径的曼彻斯特,贡献整个西北部52%的经济总量。有金融时报评选出全球前100的企业有65家全球知名企业在之其中,随着经济的增长,现已超过了英国的其他地区,大曼彻斯特展示着其重要的区域发展潜力。
这种卓越的市场潜力,不但吸引了多个全球化项目的投资和多家跨国企业的入驻,如今,曼彻斯特现已成为外商直接投资最热门目的地之一。随着各项大型商业扩建项目的逐渐开展,这座城市正呈现出前所未有的稳固态势。
便利的交通、完善的基础设施、曼彻斯特吸引更多的投资与专业人士入住,为这里的房市带来更多的活力与更大的需求。现如今曼城拥有高达596亿英镑的经济价值,而在未来的几年里,无论是来自英国政府支持款项或机构投资,多数仍将流向英格兰北部,而曼彻斯特已然成为投资的焦点,正在吸引一批又一批人群涌入。
人口涌入英国最宜居榜首城市
作为英国的第二人口大城,曼彻斯特有着超过500万总人口,10万以上在校大学生。曼彻斯特的人口在近年来一直保持着持续攀升之势,其增长速度比英国主流城市的平均水平快17%。而接近六成毕业生的留驻率,也为这里增加了成千上万的新就业岗位。
预计至2025年,曼城人口还将增长近13万人。市中心人口预计到2024年将达到8万人。完善的城市建设,出色的投资就业机会,创造出一个令人向往的居住地。
曼彻斯特的便利和舒适吸引更多的留学生和专业人士入住,为这里的房市带来更多的活力与更大的需求,在不断助力曼彻斯特成为一个绝佳的英国房产投资的首选城市。人口推动经济发展。但庞大的人口为城市带来矛盾与问题,人口与房屋相比之下,导致了该市的房屋短缺。房屋市场出现供不应求的现象成为了曼彻斯特房产市场强劲的推力。
可预见的发展趋势,强劲的租赁需求,曼彻斯特房产市场成为如今海内外投资者纷纷抢滩的圣地,不足为奇。而在整个曼彻斯特房产市场之中,拥有大量中小企业和青年专业人才的Ancoats区域房产深受投资者的青睐。
Ancoats区域位于曼彻斯特市中心沿线,曾是工业革命的摇篮,经济基础雄厚,区域文化氛围浓厚,历史和时尚相互交融。整个区域无论白天还是夜晚,街道车水马龙,人群熙熙攘攘,灯火通明,喧闹繁华置身其中仿若处在市中心一般。该区域还紧邻市中心艺术文化潮流聚集地Northern Quarter区域,以及曼城市中心核心商业区和办公区,可坐享市中心核心商圈和CBD的配套便利。
此外,Ancoats区域和北区也是数码、创意和英国的科技初创企业增长最快的集中地核心。这里的数码公司的数量在3年里增长了70%。经济基础为带动整个区域的消费水平。区域内创意餐馆、咖啡馆以及世界各地的美食数不胜数。这里是年轻人无限向往的居住区,租赁群体大多为年收入30到50万的金领,同时高端的企业外派人员最喜欢扎堆集聚的区域。在房屋供不应求的当下,便利的Ancoats区的房产最为吸睛。安可雅苑就坐落于此。
安可雅苑距占地20余英亩,投资8亿英镑的英格兰西北最大规划区NOMA不到300米,极具投资升值潜力。项目距离曼彻斯特大学仅1.5公里左右,为项目带来大量稳定是租赁群体并且租赁需求也非常大;步行5分钟时间即可抵达曼彻斯特市中心,安可雅苑是真正的出则繁华,入则宁静的宜居之地。
Ancoats区域,被纽约时报评选为英国20个最值得居住的地方之一。这里不但有庞大的人群,蓬勃发展的经济, 还有舒适温柔的清风等你。
◆ ◆ ◆ ◆
安可雅苑
曼彻斯特市中心宜居品质公寓
◆ ◆ ◆ ◆
安可雅苑位于曼彻斯特市Ancoats区域,紧邻市中心Northern Quarter区域,以及曼彻斯特市中心核心商业区和办公区,项目步行5分钟时间即可抵达曼彻斯特市中心,曼彻斯特其他著名场所都相距不远,如曼彻斯特著名的购物中心;曼彻斯特大学;城市绿肺;皮尔迪花园等等大型公共设施还有四通八达的交通网络交错纵横。不管是配套设施还是投资价值,安可雅苑都是最佳选择。
项目名称:安可雅苑(Ancoats Garden)
所属区域:曼彻斯特Ancoats区
项目地址:11-13 Rochdale Road
项目性质:850年产权公寓
完工时间:2021年交房
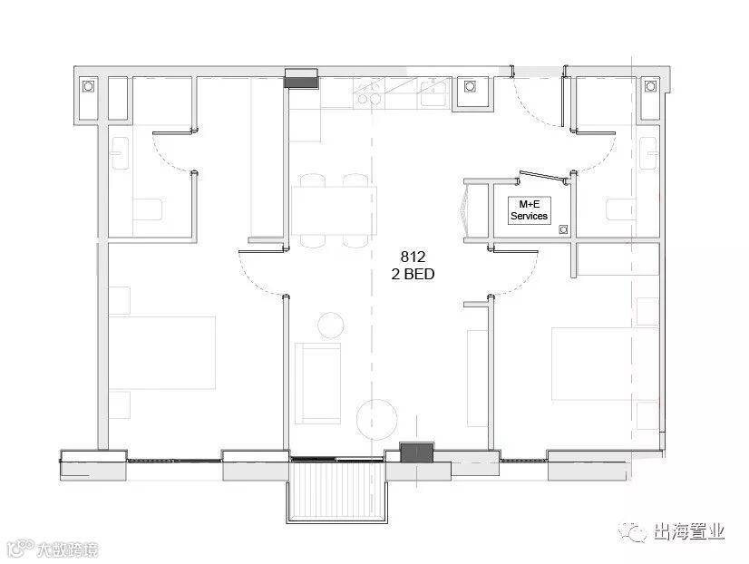
主力户型:1房、2房、3房
房屋面积:45㎡ - 113㎡
开发商:Beech holdings
安可雅苑落位于曼彻斯特市Ancoats区域,紧邻市中心Northern Quarter区域,以及曼彻斯特市中心核心商业区和办公区。Ancoats区域是一个文化氛围十分浓厚的区域,也是众多海外留学生的集聚之地,随着近年,曼彻斯特房产市场强劲的发展势头,Ancoats区凭借便利的交通,紧邻市中心繁华地段的优势,又加之深受留学生们的青睐,在曼彻斯特房产市场中,脱颖而出,成为众多投资置业者的投资新宠。
安可雅苑的外表是比较大众化的设计,而设计师真正精心设计则是给住户赋予舒适之感,项目配有私家花园、专属健身房、咖啡厅、共享社交空间等等,满足住户的生活所需。最令设计师满意的当属顶楼的全景设计,配有舒适沙发,简单茶几,在这里眺望唯美的夕阳,繁华的市中心,构成一个诗意的远方。
安可雅苑的整体装修风格和所处的区域的风格十分相似,具有安静古朴之美。在公共休憩的空间采用是木质纹理的地板,大面积的使用显的整个空间都非常具有质感。加上色彩明艳的摆件,强烈的色彩对比显示的十分和谐,具有动感;就连健身房都是采用大量的彩色,用以表达运动给人的直观感受。
安可雅苑的整体装修风格算是简约一派,但在严肃的简约风格又加了些活泼的成分,比如颜色稍微活泼的摆件,不那么深沉的壁纸,而这些细微的变化却平衡了房间的冷暖,令你感觉家始终都是四季如春。
卫生间相对客厅就会稍微严肃些,整体的色系十分统一,没有过多的颜色掺杂,看上去十分的整洁,干净。
如果你的卧室没有窗,难免有美中不足的感觉,安可雅苑的卧室有宽大的落地窗,明亮而开阔,只要有太阳的日子,每个早上都会阳光和你说早安。
1房45㎡起
2房60㎡起
安可雅苑的地理位置十分优越,落位于曼彻斯特市著名的Ancoats区域,紧邻市中心繁华商圈以及曼彻斯特市中心核心商业区和办公区。Ancoats区域是一个文化氛围十分浓厚,项目周边有城市绿肺、曼彻斯特大学、著名的皮卡迪利花园、曼彻斯特最大购物中心Arndale阿黛尔购物中心、英国历史最悠久且免费对公众开放的图书馆Chetham's Library切塔姆图书馆。曼彻斯特美术馆、曼彻斯特市政厅、Spinning Fields商务区都环绕在安可雅苑的周围,生活休闲都十分的便利。
项目斜对面就是曼彻斯特又一大工程项目NOMA,占地20英亩,2015年开始开发,预计开发周期10年,由大量不同规模且风格各异的项目组成,会打造成为曼彻斯特又一个集聚住宅、办公、酒店、零售、餐厅和酒吧等功能的居住、办公和商业一体化区域,项目旨在打造出全新的企业周边区域,满足现代企业的需求和渴望,在全球公司总部,媒体企业和专业及财务服务的现有集群之上打造而成。
曼彻斯特大学(The University of Manchester)
英国著名的六所“红砖大学”之一,英国“常春藤联盟”罗素大学集团创始成员之一,作为世界顶尖的科研与教学机构之一,曼彻斯特大学为人类社会发展做出了举世瞩目的贡献,在国际社会享有极高声誉。曼彻斯特大学现任及过往教职员和学生中共有25位诺贝尔奖得主;现任全职教职员中有3位诺贝尔奖得主,位列全英之冠。作为一所享有百年美誉的英国精英学府,曼彻斯特大学在国际各大主流排名榜单中稳居英国前十。此外,曼大还是英国获得女王周年奖次数第二多的大学,仅次于牛津。
曼彻斯特美术馆(Manchester Art Gallery)
曼彻斯特美术馆(Manchester Art Gallery)是英国的一个公立美术馆,美术馆创建于1824年,美术馆现在包括了三座建筑,其中最古老的一座是由查尔斯·巴里设计,被列入英国一级保护建筑。曼彻斯特美术馆是英国最具代表性的美术馆之一,收藏有众多前拉斐尔派的美术作品。
曼彻斯特市政厅 (Manchester Town Hall)
曼彻斯特市政厅(Manchester Town Hall),是英国英格兰城市曼彻斯特的市议会所在地。曼彻斯特市政厅修建于维多利亚时期,是一座新哥特式建筑,竣工于1877年。1938年,市政厅进行了扩建。1952年2月25日,曼彻斯特市政厅成为英国的一级保护建筑。这座建筑是哥特复兴式建筑的代表作。
维多利亚火车站
曼彻斯特在铁路史上占有重要位置。市中心有2个主要干线火车站——维多利亚火车站和皮卡迪利火车站,曼彻斯特市虽然没有地下铁路系统,市内仍然有轻铁系统连接市内各区,包围著曼彻斯特的市中心。
皮卡迪利火车站
在曼彻斯特大的交通框架下,安可雅苑的交通更是十分的便利,项目仅仅距离维多利亚火车站500米左右,皮卡迪利火车站也在数步之遥。等英国政府重金投入400多亿英镑的HS2英国高速铁路2号完工后,去往伦敦时间将从现在的2小时左右,缩短一半时间至1小时左右。
看了又看
>>>查看更多
海外置业房贷计算不求人
购房成本、贷款利率、持有成本
只需一键,轻松搞定
海外置业有风险,入市需谨慎
项目价格有效期自本文发布之日起一个月内

