本文推荐项目介绍
本文项目简要:
项目名称:堪培拉之星
所属区域:堪培拉
项目性质:永久产权公寓
交房时间:2020年年底
项目总价:¥143万起
套内面积:50 - 120㎡
项目亮点:
◆ 主打“小户型、高品质”
◆ 精致奢华的一居或两居公寓
◆ 项目临近堪培拉大学
◆ 独一无二的居住体验及投资回报
优惠政策
投资堪培拉理由
稳健市场
堪培拉作为澳大利亚的首都,虽然仅有40多万人口,但是很大一部分是受雇于澳大利亚各大政府机构,也就是公务员。这些人的工作相对于私营部门来说更为稳定,因此市场抗风险能力强。相较于全国平均水平,堪培拉的失业率低、平均工资高。同时,当地人口更为年轻化且高等教育率高。
放眼澳大利亚全国的住宅租赁市场,堪培拉的独立屋租赁价格力压悉尼和墨尔本,全国最高。
堪培拉公寓的租赁价格仅此于悉尼,位居全国第二。
配套齐全
堪培拉之星Nightfall项目,作为GEOCON这个堪培拉市场占有率超过47%的当地最大开发商,在整个首都最大的力作The Republic precinct城市综合体中的最后一期,配套成熟,周边生活配套极为齐全。
1、开发商Geocon是堪培拉最大的开发商,规模有点类似Meriton在悉尼的角色。
2、位置极佳,在堪培拉大学旁边,走路即可到达。
3、总价低,30万不到就可以买1套,首付仅需10%,1年后交房付尾款。
4、公寓的套内面积50平米,完全满足贷款对面积的最小要求。
5、可任选两种包租方案:2年7% 或 5年6%。
6、堪培拉最大的综合体项目。
地图预览
Republic Precinct城市综合体中:
第一阶段的Republic和Dusk项目目前已经完工;
第二阶段的High Society项目将在2020年内完工;
第三阶段的堪培拉之星(Nightfall)预计在2021年底完工。
Republic Precinct综合体项目阶段图
此综合体项目北向俯视堪培拉第二大湖Lake Ginninderra,沿湖的餐饮区域,目前政府将此片区域升级改建提上了议事日程,目标打造成类似悉尼woolloomooloo的水滨休闲餐饮娱乐区。
东侧毗邻堪培拉大学,这个超过12000人的高等学府,步行10分钟可达校区,校区内刚新建完毕的医院也将提供大量的常驻就业。社区对面的公交快车7分钟直达CBD。
堪培拉大学
南向的山区,由于气候原因,冬季的清晨会有一层积雪,在太阳升至正午后又慢慢褪去,形成一道亮丽的清晨风景。
西面步行5分钟距离内可达全堪培拉最大的westfield---Belconnen Westfield。
Westfield 购物中心
包括澳洲统计局ABS,移民局在内的多家政府机构也常驻于此。
The Republic城市综合体项目会包含总共5000平米的商业中心,其中确认入住的有Woolworths,Precinct Cafe,Belconnen distillery bottle shop, Buena Tapas Bar, Fromage Fine Cheese& Deli meats, Harvest market和 The Loch Gastropub,满足平时生活的一切需求。
项目所到各重点地点距离
Ginninderra湖 – 步行1分钟
Westfield购物中心 – 步行5分钟
Calvary医院 – 车行5分钟
堪培拉CBD – 车行15分钟
堪培拉机场 – 车行20分钟
周边设施
学校:
Radford College、Totom House Early Childhood Centre、Christine Faron、Act Junior Chess League、Wombats Playschool
餐厅:
The Pommy Tree B&B、Rocksalt Restaurant、Dewok Noodle Bar、钻石酒家、Kingsley's Chicken Belconnen
医院:
Calvary Bruce Private Hospital、Calvary Public Hospital Bruce、North Canberra Family Practice、University of Canberra Medical and Counselling Centre、Jamison Medical and Skin Cancer Clinic - My Healthy Life Medical
银行:
CBA ATM (Branch)、Bendigo Bank、BOQ Belconnen、NAB branch、Beyond Bank
住宿:
堪培拉、堪培拉阿里维奥旅游公园酒店、普瑞米尔公寓及酒店、贝尔肯之路酒店及服务式公寓、The Pommy Tree B&B
购物:
Westfield Belconnen、Swanson Plaza、Belconnen Churches Centre、panda crepes&tea、Super Emoji
交通:
Belconnen Community Station、Belconnen Community Bus Station、Belconnen Interchange Arrivals、Belconnen Interchange Plt 3、Belconnen Interchange Plt 4
项目介绍
住户可俯瞰绝美景色,绿意盎然的山湖美景尽收眼底,独拥豪华配套设施,包括电影院、专用商务办公中心及尊贵洗车服务等,享受顶级的奢华住宿体验。
外观:作为Republic Precinct城市综合体的一部分,堪培拉之星与楼下的便民商业中心很好的融合在一起。在堪培拉之星,下楼放松即享繁华,上楼入户即享宁静。
楼下有供住户活动的广场区域。趁着清朗的天气带着孩子去楼下走走逛逛,和社区的其他住户聊天交友,逛累了就坐在长椅上稍事休息,慢下来,感受生活吧。
公共空间:堪培拉之星设有高端酒店级别的休闲区域,宛如一片都市绿洲,带来全年都能畅享的度假般闲适体验。
舒适的沙发,供多人就餐的桌椅,葱葱郁郁的植物与盛开的花朵,约上你的三五好友,带一瓶好酒,在城市的风与光之间尽情放松吧。
室内空间:通透的落地式观景窗,尽揽公园绿意与清澈湖景。想和这座城市一起,慢慢看尽四季花开花落,记录日出与日落。
开放的室内设计、布满自然光的客厅和露台,简单的几个元素,为堪培拉之星构建起温馨和乐的家居生活。
天然的装修选材,精致高品质的细节设计,让阳光溢满生活。明亮敞阔的起居室任身心放松,享受宁静隽永的闲适居家生活。
温馨又充满设计感的室内装潢,用质感与色泽兼具的材料诠释出自然高雅的现代家居典范。无论是躺在沙发上欣赏城市景色,还是去厨房区域一展厨艺,你都会深深爱上这里.
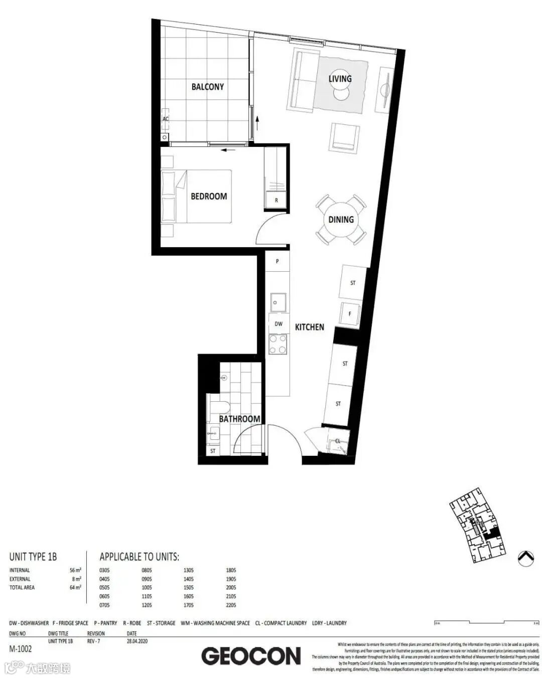
推荐户型
一房一卫
面积:56㎡+8㎡ 价格$394,000
两房两卫
面积:66㎡+8㎡ 价格$585,900
小贴士
如果您想了解更多澳洲房产情报,也可以点击下方“立即通话”按钮或拨打出海热线:400-883-5552,我们将为您提供1对1的顾问服务,满足您海外置业的需求。点击“更多信息”按钮还可查看更多项目详情哦!
看了又看
>>>查看更多
海外置业有风险,入市需谨慎
项目价格有效期自本文发布之日起一个月内

