

你在做实验时,实验室里各种难闻的、有腐蚀性的、有毒的或易爆的气体扑鼻而来。这些有毒有害气体如不及时排除室外,就会造成实验室空气污染,进而影响实验人员的健康与安全。。。怎么办?如何减少有毒有害气体对实验猿的危害?
局部通风是有害物质产生后就近排出,能以较少的风量排走大量的有害物质,能量省且效果好,能够改善现有的实验室条件,经济且可行。。。
包括:
通风柜通风
桌面式通风柜通风
生物安全柜通风
原子吸收罩通风
万向排气罩通风
不锈钢排气罩通风
排风试剂柜通风
排风药品柜及其他实验室排风的仪器设备通风


对整个房间进行通风换气,用送入室内的新鲜空气将房间里的有害气体浓度稀释到卫生标准的允许范围之内,同时,将室内污染的空气直接或经过净化处理后排放至室外大气中。
包括:
自然通风
机械通风
※常用于室内不设通风柜而且又需排出有害物质的房间。
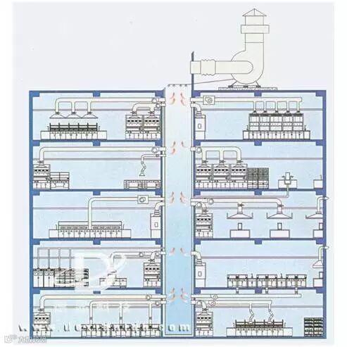
实验室通风系统一般由通风设备、通风管道、消声器、风机、控制系统组成。。。
实验室常用通风设备主要有:
排毒柜、原子吸收罩、万向排气罩、桌面式通风罩等。。。
(1)排毒柜是安全处理有害、有害气体或蒸汽的通风设备,作用:用来捕捉、密封和转移污染物以及有害气体,放置其逃逸到实验室内,这样通过吸入工作区域的污染物,是操作者吸入接触的污染物最小化。
排毒柜内的气流是通过排风机将实验室内的空气吸进排毒柜,将排毒柜内污染的气体稀释并通过通风系统排到户外后,可以达到低浓度扩散。
(2)万向抽气罩是进行局部通风的首选,安装简单、定位灵活。通风性能良好,能有效保护实验室工作人员的人身安全,适用于液相色谱、气相色谱或废气量不大且没有高温的实验。
(3)原子吸收罩主要适用于原子吸收仪等涉及高温且需要局部通风的大型精密仪器,要求定位安装,也是整体实验室规划中必须考虑的因素之一。
(4)桌面通风罩主要适用于有机化学或需要长时间蒸馏的实验室,在解决这类实验室的整体通风要求中,它是必不可少的装备之一。
对于一般的普通建筑,若室内排出的气体没有腐蚀性,通风管道可以采用镀锌钢板,对于产生有腐蚀性气体的实验室,风管应采用耐腐蚀材料的PVC风管或玻璃钢风管。
在一般的实验室通风工程,室内大多采用PVC风管、室外采用玻璃钢风管。对于室内层高不足的实验室或采用大型风管的实验室,一般采用矩形风管,以便与现场空间匹配,在满足风管要求的前提下,尽量减小风管占用空间。
圆形风管采用插件连接,矩形风管采用法兰方式连接,根据实际情况也可采用插件方式连接。
风机主要有轴流风机、斜流风机、离心风机。轴流风机、斜流风机适用于风压小、管路短的通风系统,如,直接排至窗外或墙外的通风系统,简称:直排;玻璃钢离心风机适用于管路长的通风系统,如,通过风管井或外墙接管排至屋顶,简称:屋顶排放。
风机的材质:一般分为玻璃钢、PP、PVC等。分估计的型号根据风量和风压选择。
通风控制系统可根据不同的情况采用不同的控制方式,如,单台通风设备定风量通风控制系统、多台通风设备变频控制系统、多台通风设备变频+变风量通风控制系统。
安全要素能够保证实验室内操作人员安全,以及保证实验室周边环境安全。各国关于实验室安全都有较为细致的标准,而安全也是实验室最为重要的目的之一。
为了保证实验室内操作人员安全,我们需要对各种实验室设备的气流准确控制,例如,常用的通风柜、生物安全柜、万向排风罩以及实验动物设备当中的动物笼架等,其控制目的是保证明验当中产生的有毒有害气体不会溢出而危及人员安全。关于实验室周边环境安全的保证,则通常是经过保证实验室的负压来完成的。
通常的生物化学实验室都要求保证实验室负压,防止实验室产生的毒害气体流入临近的办公区域,形成穿插污染。
在能源问题越发慌张的今天,节能曾经成了实验室管理者十分关怀的一个内容。通常的商用建筑物,为了节约能耗,采用的仅仅是15%的新风,而且建筑物是每周5天,每天10小时运作。而关于实验室,采用的常常是100%全新风,每周7天,每天24小时运作,因而能耗宏大,必需在保证平安的前提下,尽量降低能耗。
保证实验室适宜并且稳定的温湿度,气流稳定无异味,为实验室的工作人员提供一个温馨的工作环境,以进步工作效率。
过于复杂的系统,常常需求定期维护,维护程序复杂并且费用高。所以一个良好的控制系统应该尽量简单牢靠,维护简单或者不需定期维护。
控制系统的设计应该尽量思索日后的改造和扩建。使得通风柜等设备的更新、移位、增加,实验室压力极性的变换等尽量简单。
附:部分实验室通风系统设计案例
案例一:

案例二:

案例三:

案例四:

案例五:

文章部分参考:
现代检测实验室设计指南,张桂玲主编

