上周临时接到巴厘岛六善通知,卖的太火了,预售提前结束。这里回复私信来问还有没有的朋友们:是真的售罄了。
但今天这两家顶奢酒店,能让你的巴厘岛之旅直达巅峰。
巴厘岛面积约为10个普吉岛的大小,南部多景点海滩,中北部为山地雨林,多样的地形,造就了巴厘岛丰富的酒店类型。旅行鉴赏家们多会选择2晚海边+2晚乌布,本次预售刚好能满足这样的要求。

▲巴厘岛金巴兰湾四季度假酒店

▲巴厘岛乌布山妍四季度假酒店
巴厘岛金巴兰湾四季度假酒店和乌布山妍四季度假酒店分别选址拥有“全球最美十大落日海滩”的金巴兰湾和乌布爱咏河岸郁郁葱葱的热带河谷。两家酒店均以绝妙的设计和出色服务等顶级设置获奖无数:
· 巴厘岛乌布四季:2018《Travel+ Leisure》全球最佳酒店 NO.1
· 巴厘岛金巴兰湾四季:2019 Condé Nast《Traveller》巴厘岛最佳度假酒店TOP 20
此次预售,包含2大2小入住及早餐,可用至明年3月底,9月30日前可免费取消。预订一酒店4晚或两酒店2+2组合,都可再享受95折优惠,只花不到12000元即享受5天4晚巴厘岛顶奢。
如因疫情导致了旅行延期或限制,可免费改期。(疫情逐渐好转,各国旅游有计划恢复中,今天的预售很可能是巴厘岛四季最便宜的价格了,且规定日期内可免费取消,建议先囤)

▲2021年1月初为例,入住2晚价格,仅供参考
巴厘岛金巴兰湾四季度假酒店
酒店为全别墅、全泳池房型,沿3公里海岸线展开,拥有14万平米的幽静花园,略高于海岸的坡地设计让度假客人有更广阔的视角俯视海岸。别墅设计深受巴厘岛传统建筑的启发,掩映在围有石墙的私人庭院中,以独立的茅草屋顶亭楼为特色。每栋别墅均设有超大室内外起居空间、葱翠花园、私人泳池和日光浴平台。



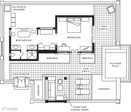
▲园景/海湾别墅平面图
金巴兰四季园景别墅
私人单卧室泳池别墅,250平米超大的室内外空间和13平米的无边际泳池。别墅的设计以典型的巴厘岛乡村房屋为灵感,茅草覆盖的屋顶之下是睡眠、沐浴和起居餐饮亭楼,环抱在有围墙隔断的私人热带花园之中。卧室和浴室配有空调,起居区为露天设计。
· 床型:特大床/双床
· 加床:备有1 张折叠床/1张婴儿床
· 景观:花园景观
· 面积:250平米室内外空间
· 浴室:配有深浸式浴缸及室内外淋浴设备
👉6折预订:250平,巴厘岛金巴兰四季园景别墅,6200元/2晚


金巴兰四季海湾别墅
拥有海景景观,250平米超大的室内外空间和13平米的无边际泳池。茅草覆顶,根据经典的巴厘岛庭院房屋风格设计,别墅被私密的围墙花园包围,形成一片隐秘的天地。宽敞的卧室与浴室都配有空调,别墅中还有露天的休息起居区域。
床型:特大床/双床
加床:备有1 张折叠床/1张婴儿床
景观:部分海景
面积:250 平方米室内外空间
浴室:配有深浸式浴缸及室内外淋浴设备
👉6折预订:250平,巴厘岛金巴兰四季海湾别墅,7176元/2晚


巴厘岛乌布山妍四季度假酒店
酒店隐藏在乌布的山谷之中,位于高地,掩映在一片浓荫之下,隐秘幽静的氛围充满自然气息。度假村别致的屋顶莲池恍若悬浮于空中,尽展爱咏河及周边景致。酒店的套房和别墅,坐落在18英亩的葱郁梯田之上,依次排开。与自然相伴,环绕于梯田、山丘及河畔。



▲单卧/河畔单卧别墅平面图
乌布四季单卧别墅
单卧别墅位于浓荫密布的坡地上,享有稻田及热带丛林景观,在设计上彰显自然与传统,呈现巴厘岛原始生态。别墅内设泳池与开放式客厅,并提供私家莲池景观及一处隐秘冥想区,让入住者享有更为宽敞、自由的空间。
· 床型:特大床/双床
· 加床:备有1 张折叠床/1张婴儿床
· 景观:花园景观
· 面积:234平米室内外空间
· 浴室:1间设备齐全的浴室及户外淋浴花洒
👉6折预订:234平,巴厘岛乌布四季单卧别墅,8160元/2晚


乌布四季河畔单卧别墅
沿河岸建起的河滨单卧别墅户外起居区配有餐桌、舒适休闲椅和一个冷水池,享有爱咏河景观。宽敞的卧室里配有一张睡床,精美的木雕屏风和纯白的华盖营造出浪漫的氛围,木板镶嵌的步入式衣橱和配有独立浴缸的豪华大理石浴室让客人放松身心。
· 床型:特大床
· 加床:备有1张折叠床/1张婴儿床
· 景观:爱咏河与花园
· 面积:213平方米室内外空间
· 浴室:1间设备齐全的浴室及户外淋浴花洒
👉6折预订:213平,巴厘岛乌布四季河畔单卧别墅,9760元/2晚


↓↓↓查看折扣详情↓↓↓
同一酒店连住4晚或两酒店2+2组合再享95折优惠
更多超值套餐推荐👇👇👇


感觉超值的话,戳这里↓↓


