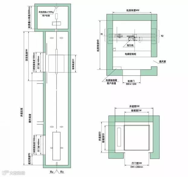
电梯的土建勘察离不开三大方向——底坑、井道和机房。

一、底坑测量:
在做底坑测量的时候,我们不仅需要精确测量底坑的各种数据,同时也必须确认底坑是否有下层空间。
二、井道测量:
第一步确认井道的结构。除全混泥土结构井道外,均需确认圈梁分项并现场确认圈梁数量,同时记录实际数据。
第二步确认井道的宽和深。
第三步预留门洞勘查。除确认门洞宽、高及相对位置外,还需确保对门头梁结构、大小、牛腿有无其数据也进行了勘查和记录;门立柱固定钢筋预留也非常重要。
第四步测量并记录外呼、楼层显示孔洞预留和其尺寸。
第五步测量井道总高、提升高度、顶层高度、层间距离、层站和门数。这里小编给大家两个公式:
层间间距(层高)=该层楼高+楼面厚度提升高度=井道总高-底坑深度-顶层高度
第六步了解开门方式的定义,并核对、记录现场开门方式。
三、机房测量:
测量完底坑和井道后,我们就需要对机房的各组数据进行测量。机房高度、宽度、深度,预留孔的位置、尺寸,机房吊钩的测量都是机房测量部分必不可少的步骤。
无机房电梯需要特别关注的事项无非三大件:控制柜顶层预留孔、顶层承重圈梁和底坑支架圈梁的结构、位置、大小测量与确认。
小贴士
当无机房载重>1000kg时,井道顶层需要预留搁机大梁孔。



