本文项目简要:
项目名称:金谷别墅
所属区域:美国洛杉矶
项目性质:永久产权联排别墅
交房时间:2019年9月
项目总价:¥358万起
套内面积:138㎡~193㎡
项目亮点:
◆ 本项目按套内面积计算,相当于国内178㎡起;
◆ 总价人民币358万起,户型宽阔、环境优美;
◆ 洛杉矶是美国第二大城市,经济实力雄厚,发展机遇众多,其稳健楼市受到了全球投资者的热捧;
◆ 金谷别墅项目位于洛杉矶圣克拉丽塔市,为洛杉矶郡的第三大城市。被金融时报誉为“最宜居的城市”,CNN评价“商业发展最适合的城市”;
◆ 圣克拉丽塔。被当地人公认为“最适合生活的地方之一”,安全指数在全美排名也是处于领先地位,同时又是“加州最受保护的桃园仙境”环境十分优美;
◆ 本项目开发商提供一站式的房屋租赁管理服务;
◆ 本项目由图蓝地产(AtlasBlue)提供售中、售后服务。
项目说明会时间:7月14日(周六)13:00~17:00
作为美国第二大城市,洛杉矶凭借着宜人的气候、完善的高等教育以及发达的经济和娱乐产业,成为全球置业的焦点。今天出海置业要给大家呈现的就是位于美国洛杉矶圣克拉丽塔市的豪华联排别墅——金谷别墅。
作为美国第二大城市,洛杉矶是世界大众娱乐产业中心之一,高等教育发达,是加州大学洛杉矶分校,南加州大学和佩珀丁大学等学校所在地。
本次金谷别墅项目位于洛杉矶圣克拉丽塔市,为洛杉矶郡的第三大城市,作为高科技、影视行业的核心城市,该地区有良好的居住环境与学校资源,被金融时报誉为“最宜居的城市”,CNN评价“商业发展最适合的城市”,同时在FBI全美十万人口最安全城市评比中,该城市排名全美第六。
过去五年,该市房价平均年增长率8.8%,人口增长领先洛杉矶平均水平一倍。受加州土地规划的控制,其楼市呈现出高资本增长和高租金回报的特点。
金谷别墅为联排别墅项目,由150栋精装3房、4房三层单位组成。项目紧邻城市商业中心,周边配套完善,一公里内有4所高分学校。
项目交通便利,出门即可搭乘洛杉矶轻轨,紧邻加州高速出入口。
金谷别墅十分钟车程内将有大量商业及办公空间建成。作为航空技术行业、生物医药和影视制作行业的核心区域,该地区在过去几年吸引了大量相关企业入驻,高速的高薪人口增长和房屋供应量不足将近一步推动房产市场的发展。
在过去几年,近500部影视片在该区域完成拍摄制作,迪士尼新建影视园距离项目仅五分钟车程,将拥有3000余名全职员工,投资近5.2亿美金。大量高薪白领将进一步带动房产租售市场,为此本项目将有一站式的租赁管理服务。
只需首付折合人民币25万元起
即可拥有洛杉矶优质海外房产
金谷别墅
是您自住 投资的重要选择
投资美国房产,还有哪些注意事项? 7月14日(周六)13:00-17:00,图蓝地产将在岳阳路190号举行《洛杉矶金谷别墅智业会》,对美国房产有兴趣的置业者可以当面交流提问,同样也欢迎拨打出海热线:400-883-5552,我们在线为您答疑解惑!
洛杉矶金谷别墅出海智业会
7月14日(周六)
13:00 ~ 17:00
上海市徐汇区岳阳路190号
活动主题
▲ 深度解析洛杉矶房地产投资环境
▲ 金谷别墅项目介绍
▲ 美国置业的流程以及税费详解
▲ 美国置业相关问题现场答疑
交通路线
地铁路线:
① 地铁1号线 衡山路站4号口
② 地铁7、9号线 肇嘉浜路站2号口
停车场:
① 岳阳路170弄
② 岳阳路200弄
③ 岳阳路217号岳阳公寓
④ 建国西路422号建业里车库
特别提示:
① 停车场收费标准: 10~30元/小时
② 岳阳路是由南向北行驶的单行道,
车辆从建国西路或肇嘉浜路转入岳阳路
报名方式
敬请点击下方“我要报名”按钮填写报名信息,
即可报名参加本次活动!
我要报名
◆ ◆ ◆ ◆
金谷别墅
洛杉矶圣克拉丽塔高品质豪华联排别墅
◆ ◆ ◆ ◆
金谷别墅项目坐落于加利福尼亚州最宜居住的地方——洛杉矶圣克拉丽塔市市中心的美山谷广场内,是以度假村式风格打造的豪华三层联排别墅项目。整个美山谷广场占地87.5英亩,包括118套高级别墅,150套金谷联排别墅,312套住宅公寓,“Sprouts”有机新鲜市场,30,000平方英尺的优质商店和餐厅,以及包括豪华俱乐部,游泳池,水疗中心,私人公园和健走步道在内的五星度假式设施,畅享一站式生活娱乐新体验。
项目名称:金谷别墅
所属区域:美国洛杉矶圣克拉丽塔市
产权类别:永久产权联排别墅
项目规模:150套
交房时间:预计2019年9月
主力户型:3房、4房
金谷别墅是美山谷广场社区内的豪华联排别墅项目,由10栋典雅设计的庭院式联排别墅单元组成,每个单元建有15套三层附带车库的联排别墅。
整个美山谷广场社区包含了6万平方英尺的商业中心,为居民提供非常便利的娱乐生活设施, 包括私人花园及社区内绿化, 社区会所, 会所内游泳池、 红酒吧、 健身房、 SPA、 壁球馆、 宠物乐园及健身步道一应俱全。
金谷别墅每栋单元设计有5种不同的别墅户型,面积从1489到2080平方英尺,3到4间卧室,2车库,户外露台和阳台,可欣赏享受雄伟的峡谷、清新的空气和蓝天。别墅内有宽敞的空间家居摆件都有宽敞的摆放位置,也有紧凑的时刻是一家人一起居住在一起,拉近心与心的距离。
别墅的厨房一般都比较宽敞,这点也是讨喜欢烹饪美食的达人欢心的地方,一应俱全的厨具让你在脑海里不断勾勒出一个又一个美味佳肴,烹饪试吃。落座举杯,世间所有的情感铺洒在诱人的饭菜之上,金谷别墅可以体验人世间最美妙的生活独有之感。
卧室是家里最令人放松的地方,一天的工作不管是繁忙还是烦躁都可以交给一个柔软的床,一个眺望的窗,一个安稳的梦。泛白的墙纸没有一丝刺眼的感觉,即使是睡眼惺忪的早上也会给你很柔和的感觉。加上整齐又不拥挤的摆件,这样的卧室足以满足你的所有的挑剔。
3房户型图,138㎡
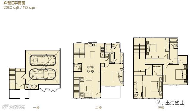
4房户型图,193㎡
金谷别墅坐落于洛杉矶的第三大城市圣克拉丽塔市,交通十分的便捷。金谷别墅步行10分钟左右就可到达维斯塔谷开发项目新的地铁站(2020年开放)。
开车20分钟到达好莱坞和伯班克机场, 45分钟即可到达海边,距离LAX机场约1小时车程,通达世界。
2020年完工的地铁站紧邻美山谷广场(Sand Canyon Plaza),此站距离好莱坞站仅5站,距离洛杉矶联合车站仅8站;2024年洛杉矶将完成地铁升级工程,此举将大大缩短从维斯塔谷站到洛杉矶联合车站的交通时间。
小贴士
如果您无法参加本次活动,也可以点击下方“立即通话”按钮或拨打我们的出海热线:400-883-5552,我们将为您提供1对1的顾问服务,满足您海外置业的需求,助您智选有一套!
活动预告
2018年7月14日(周六),出海置业的合作伙伴——图蓝地产携CORE Executive Collection Development LLC荣誉开发的金谷别墅项目,诚挚邀请各位出席《洛杉矶金谷别墅出海智业会》,届时将为与会嘉宾全面解读美国洛杉矶地区房产投资前景,深度解析融合人性、自然、和谐三大主题的金谷别墅,总价54.5万美元起,首付仅5%。
洛杉矶金谷别墅出海智业会
7月14日(周六)
13:00 ~ 17:00
上海市徐汇区岳阳路190号
活动主题
▲ 深度解析洛杉矶房地产投资环境
▲ 金谷别墅项目介绍
▲ 美国置业的流程以及税费详解
▲ 美国置业相关问题现场答疑
交通路线
地铁路线:
① 地铁1号线 衡山路站4号口
② 地铁7、9号线 肇嘉浜路站2号口
停车场:
① 岳阳路170弄
② 岳阳路200弄
③ 岳阳路217号岳阳公寓
④ 建国西路422号建业里车库
特别提示:
① 停车场收费标准: 10~30元/小时
② 岳阳路是由南向北行驶的单行道,
车辆从建国西路或肇嘉浜路转入岳阳路
报名方式
敬请点击下方“我要报名”按钮填写报名信息,
即可报名参加本次活动!
我要报名
海外置业房贷计算不求人
购房成本、贷款利率、持有成本
只需一键,轻松搞定
海外置业有风险,入市需谨慎
项目价格有效期自本文发布之日起一个月内

