本文项目简要:
项目名称:南岸云鼎
所属区域:墨尔本南岸区
项目性质:永久产权公寓
交房时间:2021年
项目总价:¥221万起
套内面积:53㎡起
项目亮点:
◆ 本项目按套内面积计算,相当于国内70㎡起;
◆ 项目位于墨尔本南岸地区核心位置,搭乘电车10分钟左右即可到达墨尔本CBD;
◆ 区域内不仅有大型娱乐场所皇冠娱乐城,还有各种精品时装店铺、尖端美食餐厅、世界级艺术中心,尽可享受繁华都市和绿色生活的居住体验;
◆ 南岸云鼎是墨尔本罕有的城市综合体项目,公寓内拥有超市、幼儿园、餐厅、咖啡店等生活配套设施;
◆ 开发商大手笔地规划项目内约有18.5%的土地成休憩空间,包括1,860平方米的「城市公园」及950平方米的露天广场;
◆ 项目周边教育资源丰富,墨尔本大学、皇家理工大学、墨尔本文法中学、卫斯理中学、黑利博瑞学院,都可在30分钟内到达。
项目说明会时间:11月17日(周六)14:00~17:00
金秋9月,我们的“海外项目售前尽职考察团”一行人远赴大洋彼岸的澳大利亚墨尔本,开展了为期一周的墨尔本房产项目实地调研考察。其中最重要的一站,莫过于在去年大卖的墨尔本公寓明星项目——南岸云鼎的施工进度考察了。
南岸云鼎项目效果图
南岸云鼎位于墨尔本最年轻的城区——南岸区(Southbank)的核心区域,毗邻墨尔本CBD,依偎于雅拉河畔,一公里半径都市生活圈内不仅有大型娱乐场所皇冠娱乐中心,还有各种精品时装店铺、尖端美食餐厅、世界级艺术中心,尽享繁华都市和绿色生活的绝妙。
既然是实地勘察嘛,就要考虑到方方面面的因素,交通和地段向来都是项目考察的重中之重。为此我们特意从墨尔本CBD搭乘TRAM(有轨电车),耗时10分钟左右我们便到达了紧邻南岸云鼎项目,位于南岸区的墨尔本著名地标建筑——维多利亚艺术中心(Victorian Arts Centre)。听当地向导介绍,从此站步行至南岸云鼎也就几分钟的路程,所以,我们当然是开11路出发啦。
步行真是明智的选择,短短几分钟的步行时间,就深深的感受到南岸浓厚的文化艺术气息;干净宽敞的街道上车水马龙,道路两旁带有季节色彩的树木,新奇极具创意的建筑,还有很多文艺范十足的小哥哥小姐姐。置身南岸,仿佛深吸一口气,就能感受到沁人心脾的文艺气息。
南岸的秀美还未尽览,我们就到达了此次目的地——南岸云鼎项目的售楼中心啦。
南岸云鼎售楼中心
考察施工进度嘛,当然是先看工地啦。但当我们要进入施工现场的时候,却被安保人员拦截下来。叽里咕噜的说了一大堆,大致的意思就是说:为了安全起见,非工作人员不能进入施工现场。好吧,也不得不承认,澳洲人安全意识还挺强的,但不让进怎么“实地勘察”呢?
嘟嘟嘟,无人机备胎上线!
南岸云鼎施工现场
通过无人机航拍传回的画面清晰可见,南岸云鼎项目目前已经完成了地基建设阶段,开始建造地面建筑部分,目前已建到三层楼左右,且开发商采用的双塔同时开工的建造方式,看着施工现场的工人们不顾严寒(9月的墨尔本正值冬季),依然投身紧锣密鼓的施工中的样子,按时交房是绝对不成问题的啦!
航拍画面
细心的朋友可能发现,南岸云鼎东西两座高塔之间挨得有点近,栋距貌似不是很大。以小编为代表的国人对“栋距”还是非常在意的,毕竟谁都不想过着整天拉着窗帘、终年不见阳光、说句话都生怕人家听见的日子。小编当时就通过无人机航拍画面就发现了这个问题,于是乎赶紧向开发商的工作人员求证,建筑师自信满满的告诉小编两栋楼之间的栋距宽达20米,且双塔均采用椭圆形的外立面设计,最大限度的保障每层住户的光照以及生活隐私,完全不会相互干扰。
不仅如此,南岸云鼎作为南岸区乃至整个墨尔本都罕有的城市综合体项目,开发商还将项目规划用地中18.5%左右的面积改建成公共休憩空间,包括1,860平方米的“城市公园”及950平方米的露天广场。连澳洲最大的连锁超市——Woolworths超市都已确定入驻,另外还囊括了休闲、娱乐、购物、从中式餐厅到西式糕点等众多商铺,俨然是一座中小型的商业中心有木有!
Woolworths超市
更值得一提的是,南岸云鼎竟然还设有一座可以容纳180位小朋友的幼儿园。这可不是像建个游泳池一样简单,因为在澳洲建造幼儿园需要有教育部门的正式批文,申请流程极其繁琐。这对刚有小孩子的年轻家庭,尤其是有正职工作的妈妈们来说,自家公寓楼里设有托儿所十分方便和安全:既不影响工作,也不必花额外费用请专人照料孩子。所以单自带幼儿园这一个优势,就吸引大批置业者纷至沓来。
此次我们也非常有幸邀请到了南岸云鼎资深置业顾问Ivy小姐出镜,为大家详细解读南岸云鼎项目唯美生活体验,话不多说,看视频!
REC
点击上图查看视频资料
怎么样,看完之后是不是更加心动了呢?不仅如此,南岸云鼎的开发商还为出海置业的用户定制了一份贴心的智能家居升级大礼包,感兴趣的朋友可以报名参加我们于11月17日(本周六)举办的《墨尔本南岸云鼎出海智业会》活动现场咨询。
墨尔本南岸云鼎出海智业会
11月17日(周六)
14:00~17:00
活动主题
▲ 墨尔本房地产市场分析
▲ 南岸云鼎项目介绍
▲ 澳洲置业的流程以及税费详解
▲ 澳洲置业相关问题现场答疑
交通路线
地铁路线:
① 地铁1号线 衡山路站4号口
② 地铁7、9号线 肇嘉浜路站2号口
停车场:
① 岳阳路170弄
② 岳阳路200弄
③ 岳阳路217号岳阳公寓
④ 建国西路422号建业里车库
特别提示:
① 停车场收费标准: 10~30元/小时
② 岳阳路是由南向北行驶的单行道,
车辆从建国西路或肇嘉浜路转入岳阳路
报名方式
敬请点击下方“我要报名”按钮填写报名信息,
即可报名参加本次活动!
◆ ◆ ◆ ◆
南岸云鼎
打造墨尔本都市生活新地标
◆ ◆ ◆ ◆
南岸云鼎占地20,200平方米,相当于含有2,610个公寓单位的小城市。开发商罕见的将规划用地中约18.5%的土地开发为绿色休憩空间,包括1,860平方米的「城市公园」及950平方米的露天广场。而且南岸云鼎本身周围就环绕着完美的自然环境,再加上自身大面积茂盛的绿化带,可完美享受澳洲独有的自然风景。
项目名称:南岸云鼎(MSQ)
房产类型:精品豪华公寓
开发商:OSK Property
所在城市:Melbourne
项目区域:Southbank
项目地址:93-119 Kavanagh Street,Southbank,VIC3006
项目产权:永久产权
交房时间:2021年
主力户型:1房、2房
南岸云鼎不仅配备了各项高品质的生活设施,大楼包含了游泳池、健身房、水疗、桑拿、瑜伽、电影院、乒乓球馆、模拟高尔夫球场、私人会所、麻将室、超级市场、幼儿园等等,让您体味到前所未有的顶级奢华和享受!尤其是幼儿园和超级市场的贴心配置,对刚有小宝宝的年轻家庭尤其是有正职工作的年轻父母们来说,自家公寓里设有幼儿园真可谓是十分方便和安全;既不影响工作,也不必花费额外的费用来请专人照料孩子。
配套设施:
◆ 54层的豪华酒店
◆ 37层办公大楼
◆ 超过一万平米商场超市,餐厅,幼儿园
平台8楼:露天花园,无边泳池,BBQ烧烤区
东塔8楼:私人影院,公共厨房,宴会厅,功能厅,棋牌室,休息室,瑜伽馆,迷你高尔夫球场
东塔54楼:私人餐厅,住户酒吧,会议室,天空泳池,健身房,休息室
西塔8楼:桑拿房,水疗中心,蒸汽房,健身房,瑜伽中心,乒乓球中心
空中泳池
空中花园
南岸云鼎毗邻墨尔本CBD,依偎雅拉河畔,一公里半径都市生活圈内不仅有大型娱乐场所皇冠娱乐中心,还有各种精品时装店铺、尖端美食餐厅、世界级艺术中心,尽享繁华都市和绿色生活的绝妙。
一公里半径都市生活配套示意图
1.皇冠娱乐城 --- 南半球最大的娱乐中心
2.尤里卡88 --- 墨尔本地标观景台
3.维多利亚州艺术中心 --- 大型交响及古典作品演奏会的专用演出场地
4.墨尔本演奏中心 --- 荣获维多利亚最高建筑荣誉大奖
5.墨尔本皇家植物园 --- 世界上最好的植物园之一
6.澳洲当代艺术中心 --- 墨尔本最前沿的艺术中心
7.奔驰销售中心 --- 墨尔本最大的奔驰车展销中心
8.Clarendon St购物街 --- 墨尔本著名购物街
9.Coles超市 --- 澳大利亚大型连锁超市
10.ALDI超市与Woolworths超市 --- 澳大利亚大型折扣连锁超市
11.南墨尔本集市 --- 墨尔本鲜蔬集市
12.墨尔本国际会展中心 --- 墨尔本城市地标
13.南岸码头奥特莱斯购物中心 --- 世界名牌折扣店集中地
14.希尔顿酒店 --- 世界知名五星级豪华酒店
15.南十字星火车站 --- 墨尔本最重要的交通枢纽
16.墨尔本水族馆 --- 探索海底的奥秘
17.弗林德斯火车站 --- 墨尔本古典建筑代表
18.联邦广场 --- 开放式的多功能广场
19.澳网公开赛罗德拉沃尔球场 --- 大型网球竞技场
20.墨尔本战争纪念馆 --- 具有独特的金字塔型屋顶的古典设计风格纪念馆
南岸云鼎附近拥有澳洲最顶级的教育机构,例如墨尔本大学、皇家理工大学、墨尔本文法中学、卫斯理中学等著名学府都可在30分钟内到达。真可谓是工作求学的最佳住所。
◆ RMIT墨尔本皇家理工大学
◆ Melbourne University墨尔本大学
◆ Monash University莫纳什大学CBD校区
◆ Victoria University维多利亚大学
◆ State Library of Victoria维多利亚州图书馆
◆ University High School墨尔本大学附属中学
◆ Wesley College卫斯理私立中学
◆ Taylors College泰勒学院
◆ Melbourne Grammar School墨尔本文法中学
南岸云鼎由马来西亚上市开发商OSK Property携手国际著名建筑设计事务所Cox Architecture和室内设计名家Carr Design Group共同打造的大型城市综合体。南岸云鼎的设计理念正是用镜面的外观在完美的角度反射出墨尔本的繁华面貌与海天一线的自然景象。
建筑事务所Cox Architecture --- 是澳大利亚最大的跨学科建筑事务所之一,在全球拥有400多名员工,承接国际化项目。Cox拥有世界级项目规划和项目交付的丰富经验,对当今市场的规模、建造能力和复杂程度具有深入了解。他们通过与来自其他专业人士的跨学科交流,力求创新的建筑设计理念,并致力于拓宽商用领域的设计。
室内设计名家Carr Design Group是澳洲最具有影响力的多功能设计公司之一,拥有40年的丰富经验。其设计思想和理念领先同行,成为行业的精英企业之一。
65层西南方向实景
65层南方实景
由三大龙头企业打造的南岸云鼎不仅拥有霸气外观,更是赋予室内优雅,高贵的气质,让你轻松享受百分百的舒适~!南岸云鼎的整体规划中,东塔和西塔分别为67层和52层;站在悬于半空中的落地窗前俯瞰全城,便可以将海、天、城的无限风光一览无余。
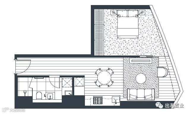
南岸云鼎的每一户设计,都精致到了细节。每一面墙,每一个转角,都创造了现代家居应有的舒适与华丽,更有着不会随着岁月流逝的经典。英伦设计风格,满足你与生俱来的小资情调。
1房,49.9㎡ - 52.2㎡
2房,68.7㎡ - 73㎡
小贴士
如果您无法参加本次活动,也可以点击下方“立即通话”按钮或拨打出海热线:400-883-5552,我们将为您提供1对1的顾问服务,满足您海外置业的需求。点击“更多信息”按钮还可查看更多项目详情哦!
活动预告
出海置业将于11月17日(周六)举办《墨尔本南岸云鼎出海智业会》,届时将为您深度解析墨尔本市中心地区房地产市场投资环境,解读南岸云鼎其无可比拟的宜居体验,系统全面的讲澳洲置业流程以及相关税费问题,更有“一对一”澳洲置业顾问团队以及权威的澳洲地产专家坐镇,为到场来宾答疑解惑,点击下方“我要报名”按钮,即可报名参加!
墨尔本南岸云鼎出海智业会
11月17日(周六)
14:00~17:00
上海市徐汇区岳阳路190号
活动主题
▲ 墨尔本房地产市场分析
▲ 南岸云鼎项目介绍
▲ 澳洲置业的流程以及税费详解
▲ 澳洲置业相关问题现场答疑
交通路线
地铁路线:
① 地铁1号线 衡山路站4号口
② 地铁7、9号线 肇嘉浜路站2号口
停车场:
① 岳阳路170弄
② 岳阳路200弄
③ 岳阳路217号岳阳公寓
④ 建国西路422号建业里车库
特别提示:
① 停车场收费标准: 10~30元/小时
② 岳阳路是由南向北行驶的单行道,
车辆从建国西路或肇嘉浜路转入岳阳路
报名方式
敬请点击下方“我要报名”按钮填写报名信息,
即可报名参加本次活动!
看了又看
>>>查看更多
海外置业房贷计算不求人
购房成本、贷款利率、持有成本
只需一键,轻松搞定
海外置业有风险,入市需谨慎
项目价格有效期自本文发布之日起一个月内

