澳洲房产市场以其稳定的增长、良好的投资环境,成为全球最受瞩目的房地产投资市场之一。而墨尔本作为全澳人口增长量之首的城市,其住宅租赁市场的竞争愈见激烈。今天就跟随出海置业栏目摄制组的镜头,一同探访位于墨尔本南岸区的地标性豪华公寓项目南岸云鼎。
请在wifi环境下收看
土豪请随意
墨尔本,澳大利亚维多利亚州的首府,全年平均气温在12-25摄氏度左右,城市绿地率约达40%。曾连续多年被联合国人居署评为“全球最适合人类居住的城市”之一。
南岸,隶属南墨尔本区,它坐落于被当地人亲切的称为“墨尔本母亲河”的雅拉河南侧,是集合了餐饮,娱乐,商业,住宅为一体的综合社区。雅拉河横穿市中心而过,相对于北岸的紧张繁忙,南岸则更多展示给世人一片宁静优雅的旖旎风情。毫不夸张的说,雅拉河两岸浓缩了整个墨尔本的城市精华。
冯嘉栋 置业顾问
“我们项目就是标M的这两栋双子楼,这是从整个墨尔本南面往那边望过去的感觉。我们这个项目所有朝南的户型其实是可以看到海平面的,北边是河景房,南边是海景房。从实际角度说海景更吸引人,这个项目到海边的距离差不多在三到五公里左右。”
冯嘉栋 置业顾问
“这张图我们也可以看一下这个项目大概所在的区域,我们在图中标红的地方就是现在墨尔本整个CBD的位置,这个标蓝的框就是我们项目所在的South Bank(南岸)。”
“South Bank(南岸)其实和CBD的距离,只隔了一座桥,就隔了一(条)雅拉河,如果从很多居住的角度来说,南岸其实也是非常不错的选择,距离CBD一公里两公里是比较适宜的距离,也不要超过三公里,那就不方便了。”
据澳洲官方数据统计局统计,墨尔本的家庭平均收入为94,553澳币,而南岸的家庭平均收入为116,381澳币,以约2000澳币的优势高于墨尔本大区。
冯嘉栋 置业顾问
“像我们前面有说过这个区(南岸)为什么现在比较适合投资,左边这张图表示了整个目前这个区域其实有54%左右的房屋它是属于一个出租的状态的。为什么有这么多房子出租?就是因为现在墨尔本CBD它的房子不够住,那也就是说有很多人在墨尔本CBD找不到房子住以后,我就选择了最近CBD的区域South Bank(南岸)。”
“因为从我们第二张图可以看到,整个墨尔本特别是在南岸的话,它的租金收益可以达到5%之多。5%的租金收益对很多老房东来说,他更乐意把房屋出租掉,因为这个现金流其实是非常可观的,是真正的现金奶牛。”
“这个数据全部是由(澳洲)最大的数据统计公司得到的,而不是我们自己在网上搜索的,然后现在整个墨尔本大区的话它的租金收益是在4.1%左右。”
南岸云鼎位于南岸中心,步行指数可达91分,在400至500米的距离内即可至雅拉河边,人们都享受在河边漫步的生活节奏。并且在其一公里步行范围内,可至皇冠娱乐城,维多利亚美术馆、墨尔本皇家植物园、澳网公开赛罗德拉沃尔球场、音乐厅、展览中心等多处著名场所,艺术人文氛围浓郁。
冯嘉栋 置业顾问
“这张图我为大家勾勒了一下整个项目所在半径一公里的生活圈,它包括哪些东西呢?第一个就像我刚才说的大概四百米左右的皇冠娱乐城;第二个的话,就是整个墨尔本现在的地标,它叫尤里卡88。在南岸的话,这部分的文艺气息是非常足的,像维多利亚艺术中心、墨尔本演奏中心包括澳洲当代艺术中心,其实都在我们的步行范围以内,差不多在两三百米就可以直接步行到了。”
“在整个项目东边有块很大的绿地叫墨尔本皇家植物园,距离我们项目步行的话也就在七百米左右就可以直接到了。皇家植物园在整个墨尔本包括CBD包括南岸也好,它是最近也是最大的一块休闲绿地了。可以说皇家植物园就是墨尔本的城市绿肺。”
项目南岸云鼎占地20,200平方米,是一个集合了6座摩天高楼于一体的大型城市综合体。住宅发售的双子塔,分别为68层的东塔以及50层的西塔。在规划用地中3700平方米的土地将开发为绿色休憩空间,其中包括1,860平方米的城市公园。而剩余地区则打造配套商业用地,在塔楼的下方便有零售商店。
冯嘉栋 置业顾问
“这两栋最高的楼就是我们现在正在发售的东塔和西塔,高楼是东塔,它的总高是在68层左右;矮的这栋是西塔,现在总高是在五十层左右,全部是玻璃幕墙。整个项目是邀请了澳大利亚非常知名的一家设计公司叫Cox。所以说在整个项目那一半,就是我们所说的南边的话,可以看到整个菲利普港非常漂亮的景色。”
“整个项目你只要是西南面的,包括整个正南的户型其实可以全部看到那边的海景。其实澳洲有景色的是最贵的,它各个朝向的单价是差不多的。比如说西南面它风景很好,但是如果你说我一定要太阳好,那我只能选择东北或者西北。其实对澳洲本地人来说,他们更喜欢是风景,哪里景色好我去哪里。说实话,有景在澳洲当地是最受欢迎的,整个澳洲来说有风景的房子在(澳洲)不管是出租也好,还是转售也好,都是非常非常好的。”
“这边的话就是整个往西南边,包括南面的一个景观。它下面都是矮房子,没有什么高楼遮挡,不像CBD里全是一栋栋的高楼会挡在你的眼前。这样的话你可以看出去是高处心旷神怡的感觉,非常非常的舒服。而且它的设计全部是由落地玻璃窗,因为这整个两栋楼它全部是呈一个椭圆形的造型,所以说它基本上所有的窗都是带弧面的。”
除了项目内的娱乐购物设施,向南步行八九百米即可至著名购物街DFO、南墨尔本集市等大众化超市,和奥特莱斯购物中心,居家生活十分方便。
冯嘉栋 置业顾问
“那这个就是我们现在知道整个维多利亚州从7月1号以后针对海外人士增长了一部分的印花税税收。如果现在海外买家要买澳大利亚的房子或者是买墨尔本的房子的话,您是需要支付全额12.5%的印花税,那这个比例非常之高。”
“开发商这次也给我们了一个很强烈的补贴,和我们出海置业合作以后,他们愿意帮助客户去补贴5%的印花税的费用。就拿一个简单的一房来说,例如这个一房是50万澳币的话,5%就差不多有25,000澳币左右,25,000澳币就要十几万人民币。如果说您买的房屋面积更大的话,这个差额会更加大。”
“所以说这次开发商也是给了一个非常好的福利,并且这次(对)开发商来说FIRB(澳洲投资审批委员会),开发商也是帮所有客户都免掉了,一般来说现在市面上的房子这个费用是需要客户买家自己支付的。那这部分的费用,我们开发商也是帮你全部免掉了,双重福利。”
项目周围有墨尔本大学,莫纳什大学CBD校区,墨尔本皇家理工大学主校区等。由于优越的地理位置、便利的生活设施,深受CBD上班族和留学生的青睐,租赁市场活跃。
冯嘉栋 置业顾问
“这个楼盘在当地的去化率,其实现在和海外的比例差不多,也是五五开。整个项目它在当地的话,地理位置还是不错的。当地人买这个楼盘主要用于出租,租金高。整个澳洲来说,你在墨尔本CBD的公寓,包括南岸的公寓,它的租金收益5%是非常高的。如果你是拿周边一些生活区的别墅去出租的话,您的租金收益也就3%到4%,并且公寓现在贷款比别墅更好贷。”
重磅福利!
重磅福利!
重磅福利!
你或许正在后悔没有在新政实施前下手,你或许正在纠结现在还要不要出手。咳咳咳,现在你不用后悔与纠结了,出海置业与墨尔本南岸云鼎项目开发商OSK Property携手送福利啦,购买墨尔本南岸云鼎任意户型,可享受总房价5%的印花税以及FIRB申请费用减免的双重福利!
依照人民币兑澳元平均 1 : 5.3 的汇率计算:
1房户型合计减免 15.15万人民币起
2房户型合计减免 21.2万人民币起
分分钟省下一辆B级车有木有?本次优惠活动有效期仅30天!且开发商根据实际销售情况可能会随时停止该项福利。
7月末,出海置业在岳阳路190号活动现场成功举办了《墨尔本南岸云鼎出海智业会》。虽然魔都的7月持续高温,酷暑难耐,但活动当天宾客仍纷纷如约而至,现场座无虚席,气氛火爆。
活动现场
活动当天,出海置业特邀的澳洲房地产专家为与会宾客详细讲解了澳洲房地产新政影响以及南岸云鼎项目印花税和FIRB申请费用减免的双重福利的细则,活动现场反响热烈。这也让很多因故无法到达现场参加活动的朋友懊悔不已,纷纷致电出海置业,询问活动详情。
因此,出海置业特应广大宾客的要求,于8月12日(周六)增开一场《墨尔本南岸云鼎(西塔)出海智业会》,届时还有南岸云鼎项目澳方开发商代表Scott Jessop亲临活动现场,为与会嘉宾答疑解惑。错过7月底那场的朋友,可别再错过本场了哦!
Scott Jessop
Sales & Marketing Director
OSK Property
墨尔本南岸云鼎(西塔)
出海智业会
2017年8月12日(周六)
上午场:10:00 ~ 12:00
下午场:14:00 ~ 17:00
上海市徐汇区岳阳路190号1楼
活动主题
▲ 深度解析墨尔本南岸区投资环境
▲ 南岸云鼎(MSQ)项目介绍
▲ 澳洲置业的流程以及税费详解
▲ 澳洲置业相关问题现场答疑
交通路线
地铁路线:
① 地铁1号线 衡山路站4号口
② 地铁7、9号线 肇嘉浜路站2号口
停车场:
① 岳阳路170弄
② 岳阳路200弄
③ 岳阳路271号岳阳公寓
特别提示:
① 停车场收费标准: 10元/小时
② 岳阳路是由南向北行驶的单行道,
车辆从建国西路或肇嘉浜路转入岳阳路
报名方式
敬请点击下方“我要报名”按钮填写报名信息,
即可免费参加本次活动
我要报名
◆ ◆ ◆ ◆
南岸云鼎
打造墨尔本都市生活新地标
◆ ◆ ◆ ◆
南岸云鼎(MSQ)占地20,200平方米,相当于含有2,610个公寓单位的小城市。开发商罕见的将规划用地中约18.5%的土地开发为绿色休憩空间,包括1,860平方米的「城市公园」及950平方米的露天广场。而且南岸云鼎本身周围就环绕着完美的自然环境,再加上自身大面积茂盛的绿化带,可完美享受澳洲独有的自然风景。
项目名称:南岸云鼎(MSQ)
房产类型:精品豪华公寓
开发商:OSK Property
所在城市:Melbourne
项目区域:Southbank
项目地址:93-119 Kavanagh Street,Southbank,VIC3006
项目产权:永久产权
交房时间:2021年
主力户型:1房、2房
南岸云鼎不仅配备了各项高品质的生活设施,大楼包含了游泳池、健身房、水疗、桑拿、瑜伽、电影院、乒乓球馆、模拟高尔夫球场、私人会所、麻将室、超级市场、幼儿园等等,让您体味到前所未有的顶级奢华和享受!尤其是幼儿园和超级市场的贴心配置,对刚有小宝宝的年轻家庭尤其是有正职工作的年轻父母们来说,自家公寓里设有幼儿园真可谓是十分方便和安全;既不影响工作,也不必花费额外的费用来请专人照料孩子。
配套设施:
◆ 54层的豪华酒店
◆ 37层办公大楼
◆ 超过一万平米商场超市,餐厅,幼儿园
平台8楼:露天花园,无边泳池,BBQ烧烤区
东塔8楼:私人影院,公共厨房,宴会厅,功能厅,棋牌室,休息室,瑜伽馆,迷你高尔夫球场
东塔54楼:私人餐厅,住户酒吧,会议室,天空泳池,健身房,休息室
西塔8楼:桑拿房,水疗中心,蒸汽房,健身房,瑜伽中心,乒乓球中心
空中泳池
空中花园
南岸云鼎毗邻墨尔本CBD,依偎雅拉河畔,一公里半径都市生活圈内不仅有大型娱乐场所皇冠娱乐中心,还有各种精品时装店铺、尖端美食餐厅、世界级艺术中心,尽享繁华都市和绿色生活的绝妙。
一公里半径都市生活配套示意图
1.皇冠娱乐城 --- 南半球最大的娱乐中心
2.尤里卡88 --- 墨尔本地标观景台
3.维多利亚州艺术中心 --- 大型交响及古典作品演奏会的专用演出场地
4.墨尔本演奏中心 --- 荣获维多利亚最高建筑荣誉大奖
5.墨尔本皇家植物园 --- 世界上最好的植物园之一
6.澳洲当代艺术中心 --- 墨尔本最前沿的艺术中心
7.奔驰销售中心 --- 墨尔本最大的奔驰车展销中心
8.Clarendon St购物街 --- 墨尔本著名购物街
9.Coles超市 --- 澳大利亚大型连锁超市
10.ALDI超市与Woolworths超市 --- 澳大利亚大型折扣连锁超市
11.南墨尔本集市 --- 墨尔本鲜蔬集市
12.墨尔本国际会展中心 --- 墨尔本城市地标
13.南岸码头奥特莱斯购物中心 --- 世界名牌折扣店集中地
14.希尔顿酒店 --- 世界知名五星级豪华酒店
15.南十字星火车站 --- 墨尔本最重要的交通枢纽
16.墨尔本水族馆 --- 探索海底的奥秘
17.弗林德斯火车站 --- 墨尔本古典建筑代表
18.联邦广场 --- 开放式的多功能广场
19.澳网公开赛罗德拉沃尔球场 --- 大型网球竞技场
20.墨尔本战争纪念馆 --- 具有独特的金字塔型屋顶的古典设计风格纪念馆
南岸云鼎附近拥有澳洲最顶级的教育机构,例如墨尔本大学、皇家理工大学、墨尔本文法中学、卫斯理中学等著名学府都可在30分钟内到达。真可谓是工作求学的最佳住所。
◆ RMIT墨尔本皇家理工大学
◆ Melbourne University墨尔本大学
◆ Monash University莫纳什大学CBD校区
◆ Victoria University维多利亚大学
◆ State Library of Victoria维多利亚州图书馆
◆ University High School墨尔本大学附属中学
◆ Wesley College卫斯理私立中学
◆ Taylors College泰勒学院
◆ Melbourne Grammar School墨尔本文法中学
南岸云鼎由马来西亚上市开发商OSK Property携手国际著名建筑设计事务所Cox Architecture和室内设计名家Carr Design Group共同打造的大型城市综合体。南岸云鼎的设计理念正是用镜面的外观在完美的角度反射出墨尔本的繁华面貌与海天一线的自然景象。
建筑事务所Cox Architecture --- 是澳大利亚最大的跨学科建筑事务所之一,在全球拥有400多名员工,承接国际化项目。Cox拥有世界级项目规划和项目交付的丰富经验,对当今市场的规模、建造能力和复杂程度具有深入了解。他们通过与来自其他专业人士的跨学科交流,力求创新的建筑设计理念,并致力于拓宽商用领域的设计。
室内设计名家Carr Design Group --- 是澳洲最具有影响力的多功能设计公司之一,拥有40年的丰富经验。其设计思想和理念领先同行,成为行业的精英企业之一。
65层西南方向实景
65层南方实景
由三大龙头企业打造的南岸云鼎不仅拥有霸气外观,更是赋予室内优雅,高贵的气质,让你轻松享受百分百的舒适~!南岸云鼎的整体规划中,东塔和西塔分别为67层和52层;站在悬于半空中的落地窗前俯瞰全城,便可以将海、天、城的无限风光一览无余。
南岸云鼎的每一户设计,都精致到了细节。每一面墙,每一个转角,都创造了现代家居应有的舒适与华丽,更有着不会随着岁月流逝的经典。英伦设计风格,满足你与生俱来的小资情调。
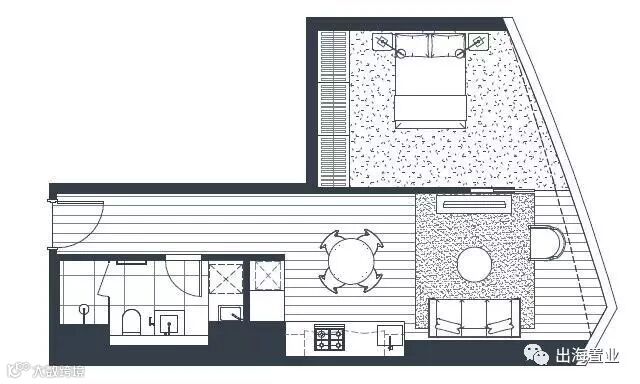
1房,49.9㎡ - 52.2㎡
2房,68.7㎡ - 73㎡
活动预告
出海置业将于8月12日举办《墨尔本南岸云鼎(西塔)出海智业会》,届时将为您深度解析墨尔本房地产市场投资环境及维州房地产新政出台后的投资策略,解读南岸云鼎其无与伦比的宜居体验,系统全面的讲解澳洲置业流程以及相关税费问题,更有“一对一”澳洲置业顾问团队以及权威的澳洲房地产专家坐镇,为到场来宾答疑解惑。现场签约还可享受总房价5%的印花税以及FIRB申请费用减免的双重福利!点击下方“我要报名”按钮,即可报名参加!
墨尔本南岸云鼎(西塔)
出海智业会
2017年8月12日(周六)
上午场:10:00 ~ 12:00
下午场:14:00 ~ 17:00
上海市徐汇区岳阳路190号1楼
活动主题
▲ 深度解析墨尔本南岸区投资环境
▲ 南岸云鼎(MSQ)项目介绍
▲ 澳洲置业的流程以及税费详解
▲ 澳洲置业相关问题现场答疑
交通路线
地铁路线:
① 地铁1号线 衡山路站4号口
② 地铁7、9号线 肇嘉浜路站2号口
停车场:
① 岳阳路170弄
② 岳阳路200弄
③ 岳阳路271号岳阳公寓
特别提示:
① 停车场收费标准: 10元/小时
② 岳阳路是由南向北行驶的单行道,
车辆从建国西路或肇嘉浜路转入岳阳路
报名方式
敬请点击下方“我要报名”按钮填写报名信息,
即可免费参加本次活动
我要报名

