普吉岛是亚洲首选旅游目的地,每年接待900万游客。在它的5小时航空半径内覆盖全球50%人口。迷人的沙滩以及濒临攀牙湾的地理位置是您休闲的好去处。不仅如此,普吉镇上的建筑历史风情以及巴东的夜生活都会使您流连忘返。加上现代的购物中心(江西冷、尚泰百货)等、世界级的私人医院——曼谷普吉国际医院、各种国际学校——英国国际学校、世界联合学院,这所有的一切构成了普吉岛高端的生活环境和投资环境。
关于乐古浪
自30多年前建立以来,普吉岛乐古浪(Laguna Phuket)已取得了长足的发展。它已经成为亚洲荣获多个奖项的综合度假和住宅社区,位于邦涛湾三公里长的原始风情海滩,占地超过1000英亩,拥有豪华度假村、豪华水疗中心、住宅开发项目和一个18洞高尔夫球场。
之前的几个礼拜,我们也做过普吉岛的项目。
现在,位于亚洲知名度假胜地的普吉岛乐古浪有一个新产品要问世。今天,这个令人激动的产品,终于可以向大家宣告它的名字——海天苑。作为乐古浪的全新品牌,这个经济型的公寓产品在未来会引发怎么样的购买热潮,真是不敢想象!
独特屋顶无边泳池及休闲区
海天苑由Laguna Resorts and Hotels公司(在泰国证券交易所挂牌交易)及其母公司悦榕集团(在新加坡证券交易所挂牌交易)共同开发,是一个令人激动的新概念项目,提供经济实惠的住宅及投资性房产。
普吉岛海天苑地理位置优越,坐落在普吉岛乐古浪度假区中心,不仅可以俯瞰高尔夫球场绿色景观,还可搭乘便捷的度假区班车前往豪华酒店和度假村、零售和餐饮区以及邦涛海滩。
这是目前普吉岛乐古浪最经济实惠的公寓产品之一。项目由3栋7层建筑组成,每栋约有140套公寓,将设有单独的服务楼、便利店、咖啡厅、接待处、礼宾服务台和储物柜。
该项目的灵感来自于泰国本土河畔村庄的本来面貌,由低层建筑组成。建筑的V形结构可以最大程度欣赏到高尔夫球场和泻湖的景色,并拥有延伸到项目四周自然环境的户外功能空间。项目的建筑物都通过人行天桥连接起来,被绿植、泻湖和大海景观包围。
最令人期待的是该项目的屋顶,精心规划的屋顶设施与天空相接,让住户充分享受自然风光。屋顶上还拥有一个带水力按摩浴池的无边际游泳池和独特的天空跑道,让居民和游客在享受美丽户外景致的同时能够保持身体健康。
此外,屋顶还可作为休闲区和社区聚会场所,露天社交中心还设有大型烧烤区、宽敞的空中甲板、瑜伽空间和空旷的草地休闲区,拥有绿色的环境景观和可饱览周围热带全景的观景点。项目还连接乐古浪熙园1期,邻近沙滩、酒店、高尔夫,步行可至商业配套Boat Avenue休闲购物街和Central Porto de Phuket商场以及餐饮市集。
“小而美”的户型
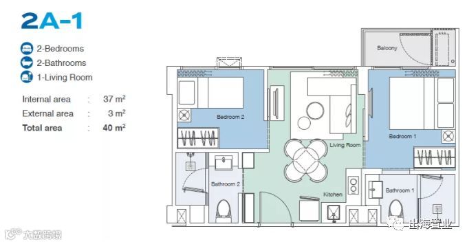
该项目共有3栋7层建筑,占地面积约13000平方米,建筑面积约25000平方米,房型包括一居室, 一卧室套房和二卧室套房,每栋约140户。项目预计于2020年第二季度开工,A栋完工时间预计在2022年第二季度。
所有公寓都设有生活、餐厅和厨房区,卧室配有独立浴室和私人阳台,底层单位还拥有独立花园区域。此外,提供多种装修方案,其中包括基本装修,含嵌入式家具和电器装修方案以及全装全配方案,为买家带来更大的灵活性。
普吉岛海天苑可满足第一居所或第二居所和投资性房地产买家的需求。单套总价低至250万泰铢,在市场上有明显的价格优势。
项目特享
@外国人可购买永久产权
@长达5年期的开发商贷款
@位于普吉岛乐古浪“心脏”位置
@3分钟可达海滩,距普吉国际机场20分钟车程
@专门多语种私人服务团队
@免费加入榕源会
@享受悦榕集团旗下度假村, SPA, 高尔夫, 艺品阁优惠折扣
@酒店活动及开业体验邀请
小贴士
如果您无法参加本次活动,也可以点击下方“立即通话”按钮或拨打出海热线:400-883-5552,我们将为您提供1对1的顾问服务,满足您海外置业的需求。点击“更多信息”按钮还可查看更多项目详情哦!
活动预告
出海置业将于9月7日(周六)举办《普吉岛海天苑出海智业会》,届时将为您深度解析泰国热门地带房地产市场投资环境,解读普吉岛其无可比拟的宜居体验,系统全面的讲泰国置业流程以及相关税费问题,更有“一对一”泰国置业顾问团队以及权威的泰国房地产专家坐镇,为到场来宾答疑解惑。点击下方“我要报名”按钮,即可报名参加!
普吉岛海天苑
出海智业会
9月7日(周六)
14:00~17:00
活动主题
▲ 普吉岛房地产市场分析
▲ 普吉岛海天苑项目介绍
▲ 泰国置业的流程以及税费详解
▲ 泰国置业相关问题现场答疑
交通路线
地铁路线:
① 地铁1号线 衡山路站4号口
② 地铁7、9号线 肇嘉浜路站2号口
停车场:
① 岳阳路170弄
② 岳阳路200弄
③ 岳阳路217号岳阳公寓
④ 建国西路422号建业里车库
特别提示:
① 停车场收费标准: 10~30元/小时
② 岳阳路是由南向北行驶的单行道,
车辆从建国西路或肇嘉浜路转入岳阳路
报名方式
敬请点击下方“我要报名”按钮填写报名信息,
即可报名参加本次活动!
看了又看
>>>查看更多
海外置业房贷计算不求人
购房成本、贷款利率、持有成本
只需一键,轻松搞定
海外置业有风险,入市需谨慎
项目价格有效期自本文发布之日起一个月内

