东京浅草精品民宅
浅草-吉诺屋
土地面积∶416.42㎡
建筑面积∶232.15㎡
建造规模∶铁筋混凝土10层
总户数∶50户(管理员室1户含)
户型∶1K,2LDK
专有面积∶25.76㎡~49.86㎡
阳台面积∶3.52㎡~5.75㎡
竣工日∶2020年2月
售价∶175-360万人民币
租金∶人民币6000~12000元/月
回报率∶4%
“麻雀虽小,五脏俱全"
东京最小的台东区
台东区是东京23区中面积最小的区域,西接文京区,南临千代田区,东边与墨田区隔河相望。区域面积仅10.11平方公里,人口密度高达20926.28/k㎡。1982年,政府在这里规划了上野 · 浅草副都心,并进行了大力的开发。
同时,作为日本东京热门的旅游景点,也是大量游客必去打卡的区域之一。浅草寺及雷门都是被游客所熟知的标志性景点。
爱吃?爱玩?爱休闲?必有一款适合您!
坐拥热门景点及核心商圈
台东区面积虽小却坐拥上野,浅草,秋叶原三大商业中心。该区域的旅游业同样也是非常发达。去往1400多年历史的浅草寺求签,在上野恩赐公园赏樱,和秋叶原购物几乎是每一个赴东京游客的必备旅游线路。
浅草寺周边生活方便,20分钟步行时间内即可抵达商店街,公园,购物中心和生活超市。
自入谷站乘坐日比谷线1分钟即可抵达上野。
上野的历史可以追溯至日本的战国时代,这里有著名的阿美横丁,是一座位于山手线下的大型市集。各式特色店铺云集于此。
大型百货公司松坂屋和丸井亦在此设有分店。上野站旁的上野恩赐公园每年吸引了上千万的外国游客前来观光赏樱。
自浅草站4分钟可直通秋叶原,作为动漫粉丝心目中的圣地,秋叶原汇集了全日本最多的二次元文化。
同时著名的秋叶原电器街亦是吸引了大量海内外的游客来此购物。
四通八达的轨交
想去哪,就去哪
地铁站∶
Tsukuba Express Line「浅草」站徒步10分
东京Metro日比谷线「三丿轮」站徒步12分
东京Metro日比谷线「入谷」站徒步13分
自入谷站乘坐东京Metro日比谷线1站即可抵达上野换乘上手线抵达东京各地。
日比谷线亦被称为游览东京最适乘坐线路。无论是前往银座与秋叶原买买买,或是前往筑地市场体验和风市集,亦或是前往上野赏樱,皆可一线直通,无需换乘。
周边换乘沿线更是可以到达东京都内40多所大学。
包括东京大学,应庆义塾,早稻田大学等一流名校。
那么好的位置,还担心土地不增值?
必须不!
据最新统计数据显示,台东区1-3年房龄的新房均价为116.82万円/㎡,在最近两年中维持上涨态势,两年合计涨幅高达25%。
在过去一年中,台东区地价上升名列东京都内第一,接近14%。在全国对比中亦名列第六位。其公式地价水平在都内排名第六,每平米土地价值已突破十万大关。
周边看好了,来看看里边吧~
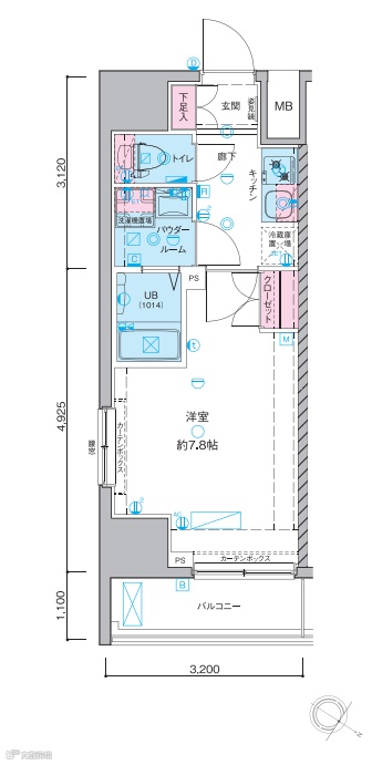
室内装修
即便是室内实用面积25平米的小户型,日本的设计师仍旧依靠着令人叹为观止的空间折叠技术使得房屋内部称得上麻雀虽小,五脏俱全。建于墙角的厨房操作台,干湿分离的卫浴,甚至盥洗室亦是于浴室隔开。
一人生活其中完全不会觉得拘束。
户型推荐
类型:Type C
户型:一室户
价格:2810万円起
类型:Type I
户型:两室一厅
价格:5170万円起
最近很多小伙伴和我们说,疫情期间,大家都没有办法去到当地了解房产,希望我们可以帮他们想想办法能不能做到安心的在海外直接选房和购房。
噔噔蹬蹬~出海对部分项目已经开放了在线看房的功能,如果您想了解更具体的信息,请随时拨打我们的400电话哦~
小贴士
如果您想了解更多日本的房产情报,也可以点击下方“立即通话”按钮或拨打出海热线:400-883-5552,我们将为您提供1对1的顾问服务,满足您海外置业的需求。点击“更多信息”按钮还可查看更多项目详情哦!
看了又看
>>>查看更多
海外置业房贷计算不求人
购房成本、贷款利率、持有成本
只需一键,轻松搞定
海外置业有风险,入市需谨慎
项目价格有效期自本文发布之日起一个月内

