东京酒店包租物业
物业价格:885万日币 (约56万RMB)
物业地址:川崎市南町12
交通路线:京浜東北線 川崎駅 徒歩9分
東海道線 川崎駅 徒歩9分
土地权利:终身所有权
房龄:1988年 楼层:3/7 种类:酒店
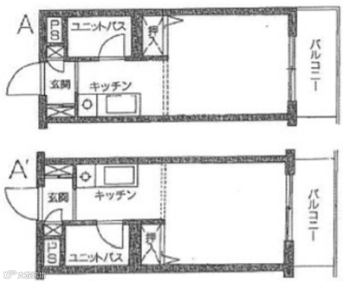
室内面积:15.84
月房租:49810/月
管理修缮费:8500/月
扣除每个月管理修缮,年回报率5.6% 日本酒店运营公司作为租客
物业位于东京首都圈的川崎市、临近东京各大商业商贸圈,多条地下铁可使用,羽田机场15分钟即可到达,东芝本部,川崎汽船,NEC等日本多数上市公司都在这里,所以来出差或者游玩认识都可入住。
物件外观及内景
房产为酒店运营公司包租,所以不需要担心空室率和拖欠租金等问题,十分放心的物业,回报率5.6%
大学学区房投资-回报率7%
神奈川県相模原市
价格:3720w日币 约合人民币239w
室内面积:16-17㎡
管理费:5600/月
修缮费:2400/月
月房租:28万9000/
建筑年:1988年3月
出租ing:租客主要日本大学生,信誉没问题
淵野辺站-四所大学所在地
1:青山学院大学
(百年日本老牌贵族学校-理科才子佳人多)
2:桜美林大学
(百年老校,起家的日本大学,跟中国政府关系也是最铁的,孔子学院在这里,中国留学生以及喜欢中国文化的日本人多)
3:麻布大学(盛产兽医等专科大学-高中后辈在这里念书)
4:和泉短大(体育艺术专门)
项目徒步可抵达四所大学,四所大学合计学生数为3w3704人(不能跟天朝比)每年来自海内外的留学生和日本地方来上大学的源源不断,所以租客需求这个可以肯定是稳定的。
淵野辺车站开始计算,路程40分钟内即可抵达新宿和横滨????,在这里生活念书没有不方便的,想都市的繁华热闹只需40分钟的车程,町田站更有羽田和成田机场的直通大巴。
车站周边的综合商场以及娱乐设施也跟着野村开发的家庭式住宅小区的开发而变的更加繁荣(值得期待)
9户捆绑式出售净回报7%
最近很多小伙伴和我们说,疫情期间,大家都没有办法去到当地了解房产,希望我们可以帮他们想想办法能不能做到安心的在海外直接选房和购房。
噔噔蹬蹬~出海对部分项目已经开放了在线看房的功能,如果您想了解更具体的信息,请随时拨打我们的400电话哦~
小贴士
如果您想了解更多日本的房产情报,也可以点击下方“立即通话”按钮或拨打出海热线:400-883-5552,我们将为您提供1对1的顾问服务,满足您海外置业的需求。点击“更多信息”按钮还可查看更多项目详情哦!
看了又看
>>>查看更多
海外置业房贷计算不求人
购房成本、贷款利率、持有成本
只需一键,轻松搞定
海外置业有风险,入市需谨慎
项目价格有效期自本文发布之日起一个月内

