作者 I 宋溪 选址960
全文2238字,约需3分钟
京东一贯走的是高举高打路线,连在城市建楼都一样。
01 南京:引入数万人的研发中心
京东南京研发中心 图源:南京发布
11月24日,南京市政府官方平台发布消息,京东集团南京研发中心项目在建邺区正式开工建设。该项目今年8月底刚刚签订落地协议,11月拿地,被归类为南京市“计划外新增项目”。
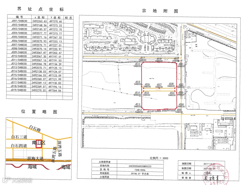
根据拿地公告,项目所用地块NO.宁2025Y05位于建邺区河西南部地区,即南京市重点打造的“河西中央科创区”,周边毗邻小米南京科技园、阿里巴巴江苏总部、58集团华东总部以及洋河股份总部、恒生电子江苏总部。
拿地公告和地块区位 图源:江苏公共资源交易平台 南京发布
地块以1.84亿底价成交,占地2.6万平方米(约39.4亩),建筑面积18.4万平方米,按此计算楼面价约999元/平方米,属性为科研用地,出让年限50年。
根据出让条件,该地块项目内容为“创新研发中心及区域总部办公”,土地及地上房屋仅能自持,建成后须导入不低于5000名的研发人员,注册后10年累计销售额不低于400亿人民币。
据悉,该项目投资规模35亿元,汇聚京东在零售、科技、金融、健康、家政等多个业务板块的研发力量,打造集区域总部办公与前沿科技研发于一体的综合性研发中心。
京东集团公共业务副总裁称:该项目将成为京东在长三角的区域总部,是京东立足南京、辐射华东、链接全球的“战略桥头堡”,未来计划引入核心业务研发团队,吸引数万名高端科技人才,并带动产业链上下游生态伙伴集聚,推动创新活力从“单点突破”升级为“集群爆发”。
值得关注的是,京东上海总部、深圳总部也同步在建,且同样是地标型、大体量。
02 上海:投资近百亿的综合体
京东上海总部效果图 图源:GA建筑
京东上海总部即京东上海中心项目。
该项目用地交易价格99.1亿,用途为住宅商业办公,由京东联手有“写字楼之王”之称的卓越集团竞得,位于普陀区真如城市副中心万里社区,靠近中环,与地铁20号线同站共建,是上海西站地铁上盖TOD综合体项目。
地块占地9.5万平方米,总建筑面积达54万平方米,2023年底开工,规划包括1栋高180米的超高层办公楼、1栋55米高的人才公寓、1栋6层大型商业综合体和4栋独栋商业体等。目前,住宅部分已经临近交付,180米的地标塔楼“京东中心”将在明年实现封顶,整体项目将在2028年陆续竣工收尾。
地块效果图与位置 图源:GA建筑 普陀自然资源与规划局官网
土地出让文件明确要求,拿地企业须引入世界500强网络服务与零售、金融科技、人工智能、物流服务、大健康等企业总部运营基地和新型智能经济研究机构,以及互联网服务与零售、在线新经济、数字经济、新一代信息技术类等上下游科技企业。
因此,不少分析认为,普陀区政府对京东助力真如板块商业更新寄予厚望。上海真如板块是继徐家汇、花木、五角场后上海第四个城市副中心,因上海西站与昆山、苏州、南京等长三角发达城市紧密连接,真如板块也是上海连通长三角其他区域的重要枢纽。
相比起南京、上海在建的总部,京东深圳总部目前已经初具轮廓。
03 深圳:华南地区重要战略支点
京东深圳总部效果图与实景
京东深圳总部位于深圳湾超级总部基地,毗邻深圳湾公园,周边落地有招商银行全球总部、TCL中心、中国电子深圳湾总部、中兴通讯全球总部、OPPO全球总部等。
该项目用地于2021年竞得,2022年开工,占地2.9万平方米(约44亩),交易价格31.09亿元,建筑面积约18.7万平方米,土地用途为商业服务业设施用地,出让年限30年,自持部分不少于60%。
地块详情 图源:深圳公共资源交易中心
据悉,项目由两栋摩天大楼(分别高200米、149米)和一栋商业办公楼(高60米)及地下空间组成,涵盖办公、酒店、商业、文化等多种业态,预计将于2027年底全面完工。
建成后,将承载京喜总部、京东国际总部、京东创新中心、京东大湾区人工智能研究院、京东高端人才基地五大板块,定位为京东在华南地区的重要战略支点。
另外,该地块出让公告明确,竞得企业须承诺5年内(2021年1月1日至2025年12月31日)累计纳入深圳核算产值不少于2580亿元。
有意思的是,以上京东斥巨资打造的三地区域总部,均由奥雷・舍人事务所操刀,因此整体风格呈现出统一性和呼应性特点。
那么,京东为何四处建区域总部?
事实上,以腾讯、阿里、小米、京东、华为等为代表的大厂在各城市建区域总部并不罕见,这一方面有当地政府招商引资的作用,另一方面也是企业自身深度参与城市、区域经济社会发展、不断扩大增量的选择。
此次京东一口气连建三处区域总部,除了政府对之寄予厚望,也和京东今年以来的大规模开拓增量步调相一致。
根据不完全统计,2025年以来,在原有业务基础上,京东陆续发力了外卖、七鲜小厨、咖啡、酒旅、评价体系、折扣超市、医美、收购海外电商平台近十个新业务。
近日,京东集团发布2025年三季度业绩。三季度,京东集团收入为2991亿元人民币,同比增长14.9%;核心零售业务市场地位持续加强,其中日百品类收入同比增长18.8%,增速约是行业平均增速的4倍;商超品类收入同比实现连续7个季度的双位数增长;外卖等业务三季度收入同比增长214%,环比二季度实现加速增长。
业绩报告
报告中特别提到,受益于多年投入建设的超级供应链持续释放创新动能,京东核心零售业务市场地位持续加强,外卖等业务稳步增长,活跃用户和购物频次保持强劲增长。数据显示,截至今年10月,京东年度活跃用户数量突破7亿,用户规模创新高。
不过,公司规模扩张的另一面,盈利能力遭遇了严重下滑。数据显示,三季度京东净利润同比下滑54.7%,归属于普通股东的净利润从117亿元降至53亿元,外卖业务高投入是主要拖累因素。

